項目基地位於橫須賀市秋穀的一處小山坡上。地塊背靠山丘,形狀狹長,可以俯瞰前方的大海。建築師第一次和業主一起參觀基地時被這一美景震驚,站在基地盡端久久不願離去。將這裏的景色牢記在心中,建築師考慮設計一棟植根於土地的住宅,與周邊環境產生連接。
業主在悉尼生活了很長一段時間,大海一直是他生活方式的一部分。為了找到一個可以感受大海和自然的地方,他們最終來到了這片基地。與現在這個時代相應,他將家庭住宅搬到了郊區,並且繼續在東京工作。帶著工作生活和家庭時光的對比,城市與自然環境的平衡,這裏會成為一個適於撫養孩子的場所,同時可以盡享大海風光。以上是業主的項目的要求,而這些在被建築環繞的城市空間中是不可能實現的。
基於最初的研究,設計提出了兩個方向。首先是創造一棟可以將人們對周邊自然環境的感知最大化的住宅。為此,項目不僅要提供朝向大海的視野,還要塑造海邊城鎮特有的寧靜氛圍,在室內外之間建立起連續性,並且尊重當地的植被。其次,設計需要讓住宅顯得盡可能寬敞,以巨大而開放的空間來適應業主優雅慷慨的人格與生活方式。設計延續一開始的研究,將上述兩個主題融合在一起,探尋可以滿足不同想法的空間品質。
最終,建築由朝向不同方向的盒子相互堆疊而成。這些盒子如同岩石,受到來自基地後部的山體的自然之力影響;盒子中部置入了一個輕盈明亮的體塊,向前方的大海開放。
這些盒子創造了豐富的視野,並且可以在一天的不同時段獲得來自不同方向的自然光照。設計在房間內部以及層疊的體量形成的縫隙中建造了一些光影空間,在內與外之間創造出或對比或連續的氛圍。建築師希望通過這種方式找出一些有趣的場所,並將其融入到住戶的日常生活之中。
設計還設想了體量交接處可能發生的趣味場景。暗空間和亮空間,開放空間和封閉空間,高空間和低空間。為了將這些不同的品質混合在一起,設計師創造了一個通向屋頂的連續中庭,形成了一個巨大的垂直空間。它不僅滿足了空間上的期待,還在多個方麵體現了設計之上的想法,如對環境的控製,以及影響居民的生活習慣等。
這些通過此手段混合在一起的場所可能以自己的方式形成交錯的空間。私密空間和公共 空間也許會被分開,而整棟住宅也許會變成一個巨大的立體開放空間。設計希望建築鼓勵探索,與住戶的生活方式產生關聯,以地方化的整體外觀成為其所處山丘景觀的一部分。
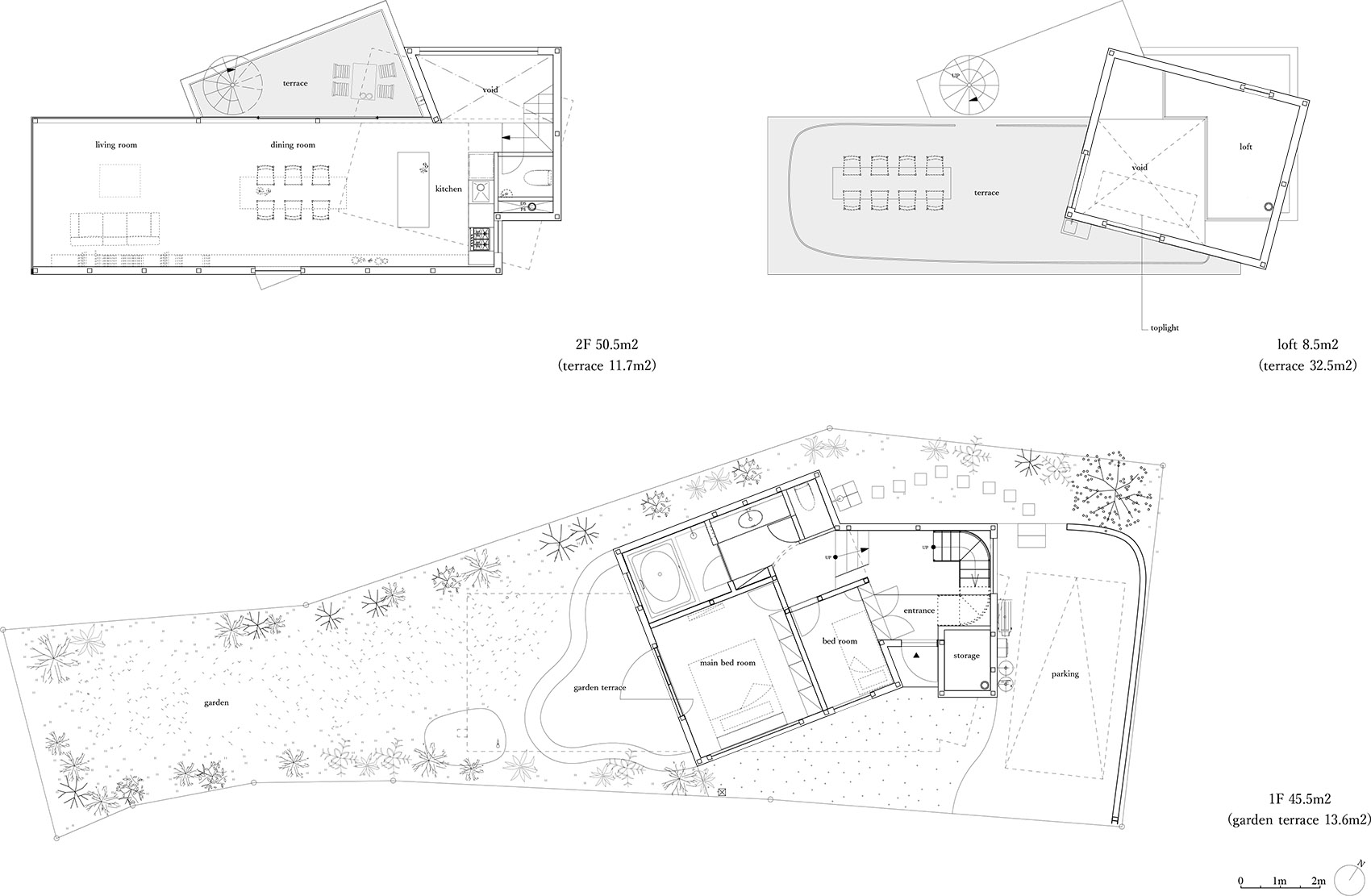
∇ 平麵圖
∇ 剖麵圖
項目信息
位置:橫須賀,日本
類型:房子
客戶:私人
設計師:Shogo Onodera、Hiroshi Uehara
場地麵積:200.14 平方米
總麵積:91.2 平方米
高度:7.8m
結構類型:木材
設計時間:2020 年 3 月 – 2021 年 1 月
建設期:2021年2月-2021年10月
主要材料:地板——樺木地板/混凝土; 牆 – 石膏板 + 油漆; 天花板 – 樺木地板 / 石膏板 + 油漆
圖片來源:©Ichiro Mishima









































