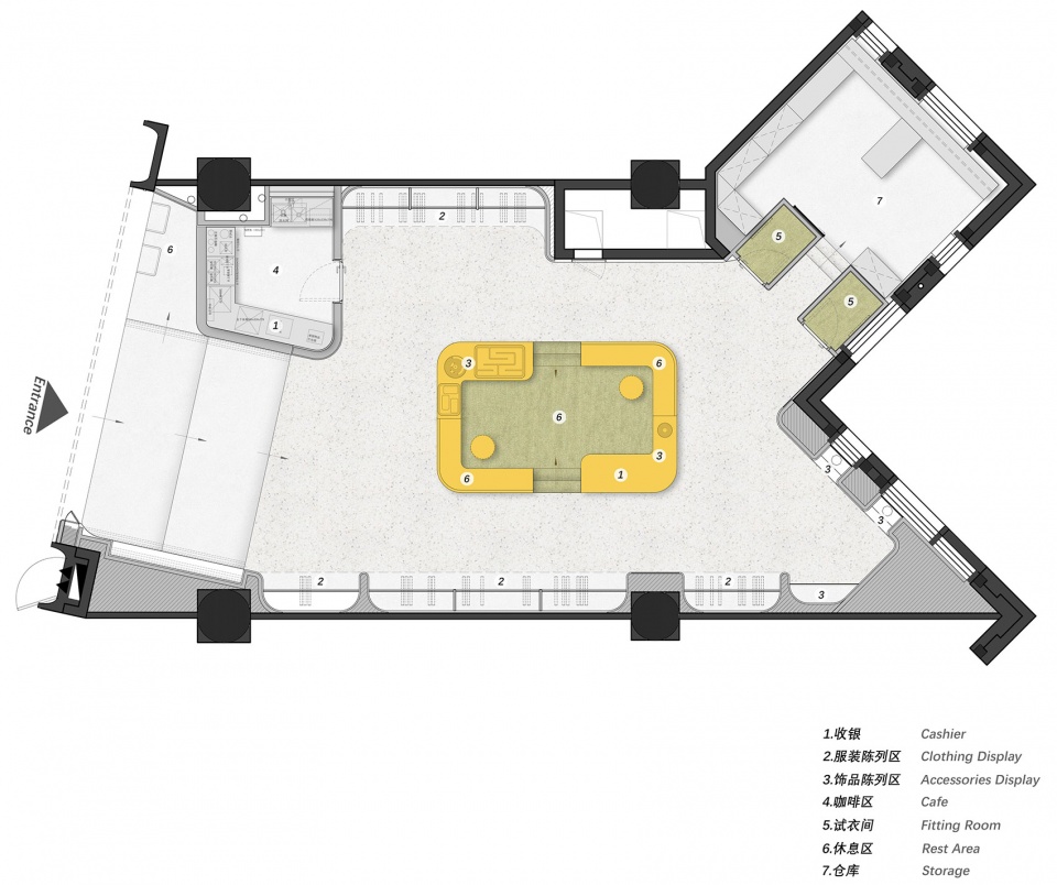
TU原創女裝精品品牌,創立於2015年,總部位於中國上海。TU以獨特的設計、利落的剪裁,配以精良的做工,表達現代女性獨立、自主、優雅的精神。
我們引入了三種公共空間中常見的元素:室外大台階、下沉廣場、街角咖啡店。通過對這三種元素的組合,營造一種置身於街邊樹蔭下,悠閑喝著咖啡交流的體驗。
巨大的入口台階 Huge entrance stairs
為了打消顧客的疑慮,我們在店鋪對外開口處設計了台階,借助台階的設計讓店鋪室內空間向千樹的內部“街道”開放,將人們從“室外”引入“室內”,模糊界限自由穿梭。
街角咖啡店 Corner coffee shop
業主希望在空間內置入一個即可對外售賣也能服務於vip會員的咖啡空間,並且希望日後可以孵化出一個獨立的咖啡自主品牌。經過我們的再三考量,“如何讓咖啡店融入進我們整個空間,與服裝售賣區形成一種相對獨立,但是彼此共存的狀態”成為了我們需要重點解決的問題之一。因此我們特地在入口地麵抬高處設計了兩個座位,其靈感來源於上海各色街邊精品咖啡店,我們希望這個小小的角落可以為來往的客人提供一個短時間休憩的場所,同時也能和入口的台階一起營造一個灰空間,過渡“室外”到“室內”場所的轉變。
∇ 軸測圖
針對TU女裝品牌在上海天安千樹的新店,我們希望在空間的設計上也可以繼承天安千樹的理念:綠色、自然、親和、開放。對此,我們決定將建築內部的整體空間當作室外公共空間進行處理,營造出穿梭城市街道旁的空間感受,以一個更加開放的姿態來麵向消費者,重新詮釋TU包容的品牌理念,歡迎路過的每一位顧客都可以駐足停留。
∇ 設計生成圖
下沉廣場 Sunken plaza
下沉空間的休息區我們特地選用了高飽和的橙色,配合著上方的巨大綠色吊頂,借此希望此區域成為整個內部空間的視覺中心點,同時也希望身處在下沉廣場的人們有那麼些許戶外大樹下的感覺。
∇ “街道”旁的TU
∇ 人流分析圖
∇ 平麵圖
項目信息
項目名稱:TU天安千樹店
項目地點:中國 上海
項目麵積:161㎡
業主單位:上海始然服飾有限公司(李芬芬,蘇薇茉)
設計公司:彈性設計工作室
設計總監:譚晨
項目設計:楊育杭
設計團隊:譚晨、楊育杭、牧之、亨博
施工單位:上海琢善工程管理谘詢有限公司
主要材料:微水泥、矽藻泥、水洗石、微水泥磚、不鏽鋼
完工時間:2022.01
項目攝影:禾謀製像


























