向陽而生.逐光而行
Live for the sun, walk for the light.
以目光描摹一座城市,慢慢地對焦,再慢慢按下快門,記錄這座城市裏的匆忙,感知過往的行人,不乏細致得體的著裝,還有向上而溫暖的靈魂-MODE COMMUTER。
Describe a city with eyes, focus slowly, then press the shutter slowly to record the hustle and bustle of the city. Perceive the passers-by, who have meticulous and decent clothes, as well as upward and warm souls-MODE COMMUTER
∇ 外立麵標識1 Façade identification one ©金戎
本案坐落於帶夢胡同,一個可以拿起工作又不放下生活的年輕園區。我們希望該空間也能呼應整個園區的節奏,即要有慢節奏地沉思,又能快節奏的去回響。
This case is located in the Dream Alley, a young park that can pick up work without putting down life. We hope that the space will also echo the rhythm of the whole park, with both slow-paced contemplation and fast-paced echoes.
原建築空間有5米8的高度,對於一個零售商業空間來說,這高度並非是最好的選擇。但單純的為了光效去壓低空間,又難免可惜。如何去利用這個高度的同時,又能有效的解決空間體量的比例。在推敲的過程中內建築這三個字應運而生,我們決定由內做始點,利用原建築的兩根柱子,在原空間基礎上做了一層飛簷結構。有效在保證建築體量的同時,增加了空間的層次感。為了盡可能的去體現飛簷的輕盈與懸空感,在結構的加固上花了不少功夫,得益於施工方的竭力配合。
The original building has a height of 5.8m, which is not the best choice for a retail space. However, it is a pity to lower the space simply for the sake of light effect. How to utilize this height while effectively addressing the proportion of spatial volume? In the process of deliberation, “internal architecture” has emerged. We decided to start from the inside, using the two pillars of the original building to create a layer of cornice structure on the basis of the original space. While effectively ensuring the building volume, it increases the sense of space hierarchy. In order to reflect the lightness and suspension of the cornice as much as possible, a lot of efforts have been spent on the reinforcement of the structure, thanks to the best cooperation of the construction side.
∇ 原門麵 The original facade ©慕尚集團
∇ 外立麵 The exterior ©金戎
∇ 外立麵取景框 Facade viewfinder frame ©金戎
∇ 側玻璃牆內看結構 The inside structure view from side glass walls ©金戎
∇ 造型頂的體塊處理1 Bulk treatment of molding top one ©金戎
∇ 造型頂的體塊處理2 Bulk treatment of molding top two ©金戎
∇ 造型頂的體塊處理3 Bulk treatment of molding top three ©金戎
生長的力量
The power of growth
退去原建築的外衣,裸露出粗糙的水泥柱,它所表達出來的那種與生俱來的力量感正是我們需要的。我們決定保留其原始的狀態,作為一種力量的支點,飛簷從柱子上衍生出來,向著陽光的方向生長。在飛簷的色彩上,我們選擇了暖色,一股帶著溫暖的力量迎向太陽。
When the original building’s outer covering was withdrawn, the rough concrete columns exposed, which expressed the inherent sense of strength just what we needed. We decided to leave its original state as a fulcrum of strength, derived the cornice from the columns, grew towards the sun. In the color of the cornice, we chose warm colors, like a warm power towards the sun.
∇ 原始柱與體塊的穿插結構1 Interspersed structure of original column and the block one ©金戎
∇ 飛簷外生長結構 Growth structure outside cornice ©Jhoneslee
∇ 入口右側結構 Structure of right side entrance ©金戎
∇ 入口左側結構 Structure of left side entrance ©金戎
結構與光的關係
The relationship between structure and light
解脫燈的束縛,迎接光的普照。為了最大程度的減少燈對造型的打擾,我們進行了往複推敲和測試,最終選擇了線型燈,利用不鏽鋼燈槽實現上下打光,使光能柔和的灑下來。
Free from the shackles of the lamp and welcome the full illumination of the light. In order to minimize the disturbance of the lamp on the design shape, we have repeatedly deliberated and tested. Finally, we chose the linear lamp, and utilized stainless steel lamp groove to achieve up and down lighting, so that the light can be soft.
∇ 照度報告1 Illumination report one ©光跡照明
∇ 照度報告2 Illumination report two ©光跡照明
∇ 光的處理方式 The processing method of light ©金戎
空調係統放置在試衣區的牆內和中島櫃子內。是在機電工程、結構工程、家具工程三方努力下完成的,空調的走管從清水泥地麵澆築時就預留在裏麵。
The air conditioning system is placed in the wall of the fitting area and the cabinet in the middle island, which is completed under the efforts of the mechanical and electrical engineering, structural engineering and furniture engineering. The air conditioning piping is reserved when it is poured from the clear cement floor.
∇ 入口左側結構1 Structure of left side entrance one ©金戎
地麵和牆體我們選擇了能體現原始狀態的材料,選用了清水泥和水泥磚。水泥磚能自然的呈現出來,得力於工程方的不斷嚐試和努力。我們把水泥磚的板材按單塊木紋鋸開,使其能交叉鋪開來,這樣解決了板材呆板的拚縫線。
For the floors and walls, we chose materials that can reflect the original state, using clean cement and cement bricks. Cement bricks can be naturally presented, thanks to the continuous attempts and efforts of the engineering side. We saw the slab of cement brick according to a single grain, so that it can be spread across, thus to solve the wooden stitching line of the plate.
∇ 水泥板磚牆的穿插結構1 Interspersed structure of cement slab brick walls one ©金戎
∇ 水泥板磚牆的穿插結構2 Interspersed structure of cement slab brick walls two ©金戎
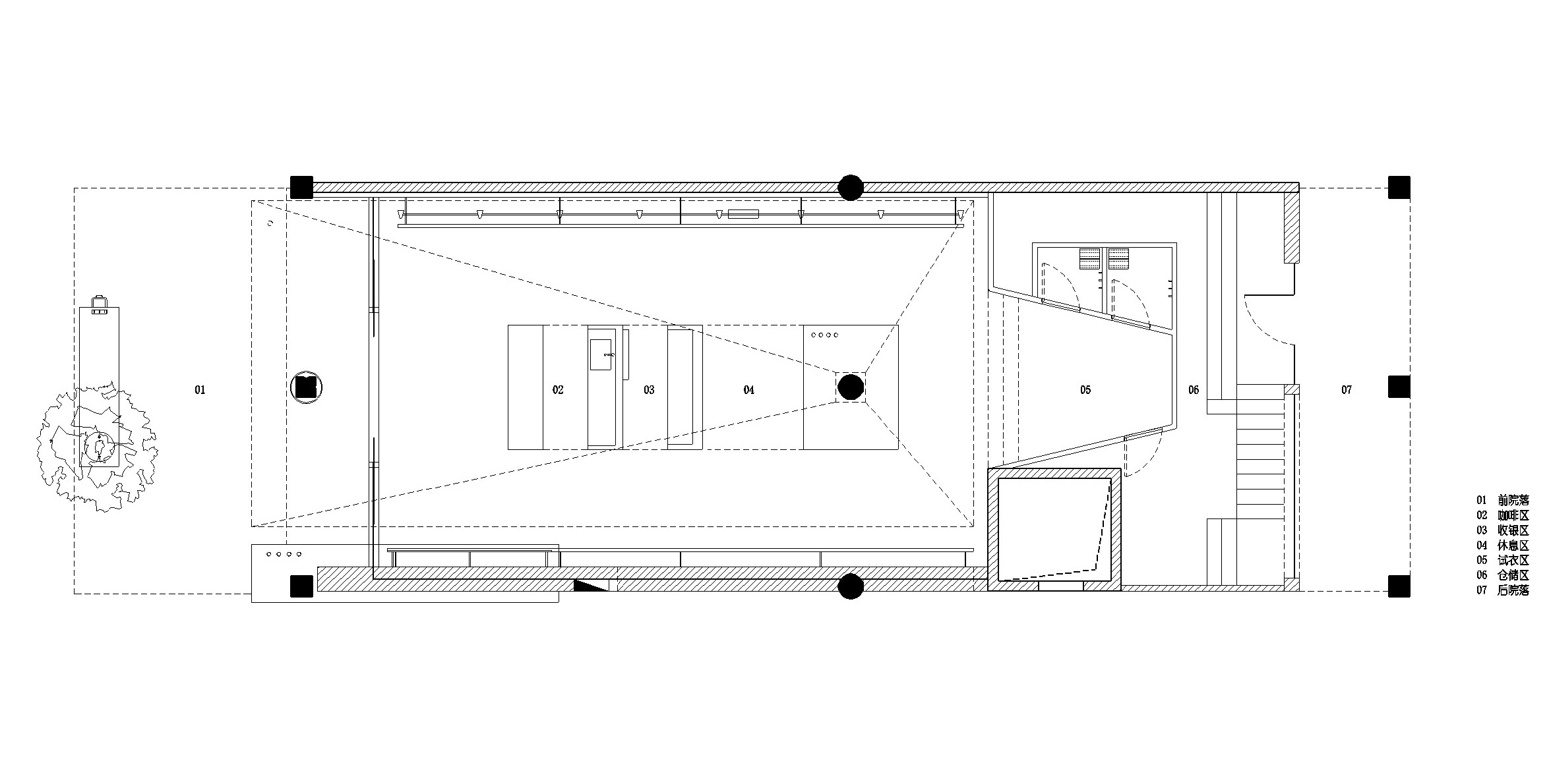
∇ 平麵圖 Plan ©慕尚集團
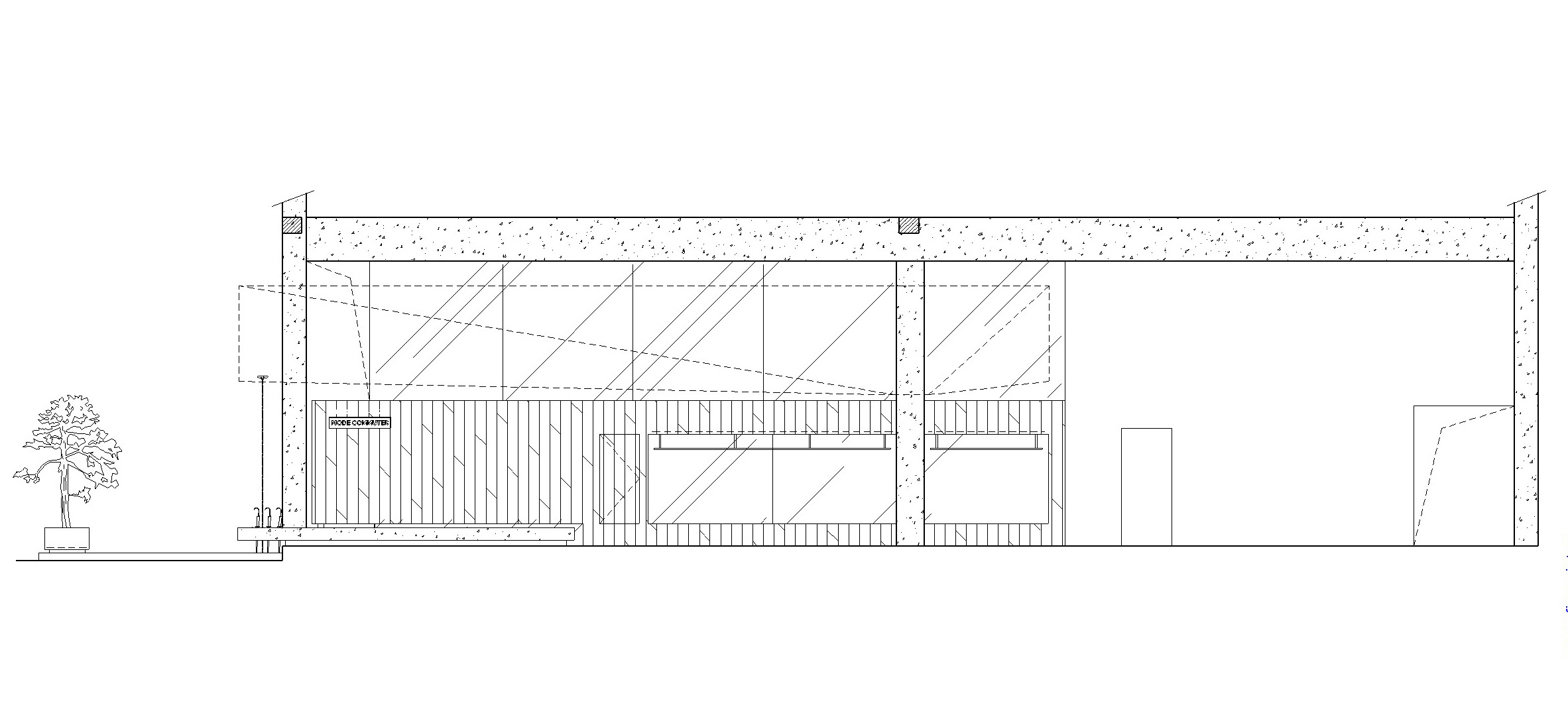
∇ 立麵圖1 Elevation one ©慕尚集團
∇ 立麵圖2 Elevation two ©慕尚集團
項目信息
項目名稱:MODE COMMUTER·帶夢胡同
Project name:MODE COMMUTER
項目類型:建築設計
Project type: Architectural design
設計方:慕尚集團控股有限公司
Designer: Mushang Group Holding Co., LTD
完成年份:2023.11
Year completed: November 2023
設計團隊:空間設計組
Design Team: Space Design team
項目地址:中國,寧波,帶夢胡同
Project address: MODE COMMUTER, Ningbo, China
建築麵積:168㎡
Building area: 168㎡
攝影:金戎
Photography:jinrong
施工製作:寧波一匠裝飾
Construction and production:Ningbo Yijiang Decoration Co. , Ltd.
道具製作:寧波今優的裝飾
prop fabrication:Ningbo Jinyou Decoration Co. , Ltd.
燈光設計:光跡照明
Lighting design: Light Trace Lighting Co. , Ltd.
主要材料:木紋鋁板、木紋水泥板、清水泥現澆
Main materials: wood grain aluminum board, wood grain cement board, cast-in-place cement






























