背景 Background
中國目前已經有2.4億的單身成年人,預計到2021年,獨居人數將上升到9200萬。30個城市的獨居人口統計中,排名前五的分別是上海、重慶、北京、廣州和深圳。在上海,這一數據接近300萬。
盡管 “空巢青年”的稱呼依然暗含著對獨居人群的揶揄,但不可否認的是,這一逐步擴大的人群以及相應的經濟已然成為新的市場。外賣,交友軟件,寵物…針對獨居人群的服務層出不窮,但市場上的戶型研發卻遠落後於時代。現有的單身公寓更像是宿舍放大版,而非針對成年人的定製化設計。
如何根據新興需求,設計一個與眾不同,高品質且舒適的獨居公寓,是我們在《CK Home》中想探討的問題。
項目概況 Project Overview
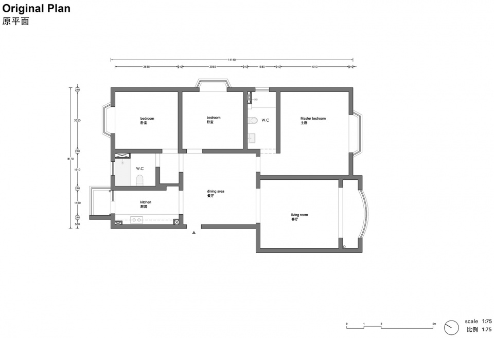
我們接手的公寓,是一規整的三房兩廳兩衛,各房間均靠中央的餐廳組織,流線簡潔。然而由於餐廳位於戶型中央且缺乏直接采光,導致這一區域昏暗,空間體驗不佳。公寓的另一硬傷是廚房,原設計為確保衛生間麵積,擠壓了廚房寬度,導致其操作及儲存空間有限。
這一並不完美的戶型,原為三口之家所設,現無法貼合獨居需求,因此團隊決定根據業主生活特征,對平麵及各處功能進行一係列調整。
設計策略 Design Strategy
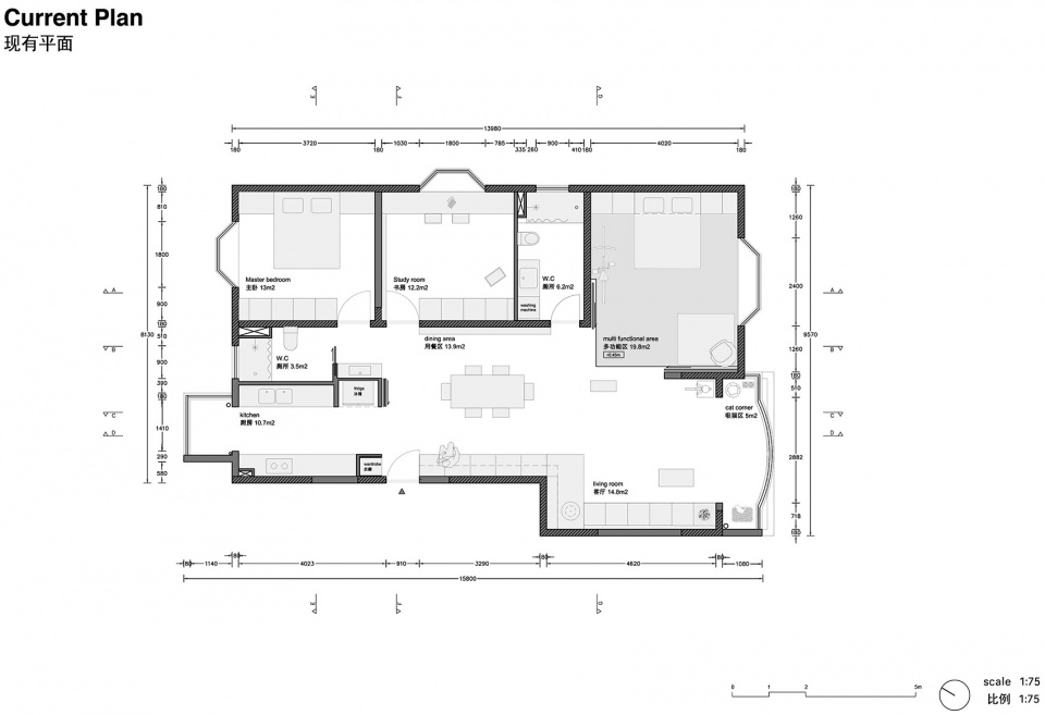
考慮到業主僅需一間臥室,朋友/父母偶爾的拜訪讓另外一間可有可無,因此設計首先拆除了原主臥牆麵,抬高其地麵,將其改為可開放/關閉的多功能室(儲藏,臥室,活動)。這一處理不但增加了中央餐廳區的采光麵,使得原本晦暗的用餐空間變得明亮舒適,也讓客廳的範圍得以拓展。原先相互隔離的功能區被打破,空間有了更多的層級及靈活性。
此外,由於兩個完整的衛生間對獨居的業主來說稍顯冗餘,因此設計對北側廚衛予以重新調整,拓展廚房空間,簡化衛生間功能。一個寬敞且功能齊全的廚房,不但讓一人食充滿了樂趣,也為邀請朋友前來聚餐派對提供了保障。
在室內設計上,如何選擇順應空間特征,又便於打理的家具成為設計重點。我們撇開了軟/硬裝的概念,而將家具視為空間係統一部分予以設計。沿著牆麵遊走的定製吊櫃,沙發及長桌簡潔高效,也給室內帶來了統一。燈具則盡量低調,以不打擾視線為佳。對整體性的追求也體現在家具的關係中,餐廳處的長桌與遠處邊櫃兩相呼應,而在椅子的選擇上則以硬朗線條為主,以契合長桌調性。
考慮到業主喜歡幹淨清爽的居住氛圍,色板選擇以白色木色為背景,藍色黑色為點綴,僅在臥室中啟用了酒紅色。此外,由於其愛好詠春健身,客廳處我們則啟用了落地鏡麵,方便練拳。這一材料選擇也給安靜的空間帶來一些有趣的亮點。
我們希望通過《CK Home》能打破主流社會對獨居的刻板印象,並為都市青年人,提供更高品質的選擇。
∇ 原始平麵圖
∇ 改造後平麵圖
項目信息
項目位置:上海
項目麵積:120㎡
設計團隊:王卓爾, Begoña Masiá, 王家鈞,餘若琪
攝影:yuuuunstudio
攝影協助:王磊
項目家具品牌:HAY
文字及翻譯:王卓爾



























