01 “雙宅”本質” Double house” essence
在我們已知的社會認知裏,生活和工作有著不可調和的內在矛盾,大都對此存在著雙重標準和不同的對待心態。但羅曼·羅蘭卻認為,“在工作與遊樂之間,似乎存在著一種和諧,兩者巧妙地結合起來,生活的藝術就顯現出來了。”對此,我們深以為然。基於業主工作方式以及居住的特殊性,如何將生活和工作有效的協調、無限的接近,“生活的藝術”成為我們探索的重要主題。在這個約莫100平米的空間裏,除了自由的辦公功能之外,同時滿足居住的需要,於是,原本常規的布局被我們打破並重新規劃。
因為北方生活習慣的切身體會,迥異於一般意義上的住宅,推門而入,這裏櫃體加厚到60公分,承擔著進門衣櫃收納的功用。一麵裸露的混凝土牆,奏響了入戶的第一重狂野樂章。粗糲的、“未經粉飾”的原始麵貌,與整體微水泥的光滑色澤形成戲劇性的鮮明對照。
02 主體用意 Subject intention
關於藝術家的定義,康定斯基說,“藝術家須時時心懷深切的主體用意,體察內心的精神靈感,且隻有能將藝術體驗化作個人心路曆程的人,才稱得上真正意義的藝術家。”亦然,具備了“主體用意”的設計師或者業主,空間才有了靈動的生命力。
由小及大,“才通人”的過道到達豁然開朗的開放區域,行進的節奏、情緒發生著起伏的變化,舒展出欲揚先抑的空間氛圍。櫥櫃與島台的結合、中心多功能長桌、麵窗的吧台區以及靠窗的書桌區,相互之間獨立又互相連通呈現出不同的形狀,聚餐、會議、辦公、聊天,以及可以遠眺北側室外的山林,建構出生活與工作彼此融合而趣味盎然的真實景象。
除了空間氛圍的主題營造,對於光量的控製,我們同樣有著深入的思考和對應邏輯,北側光弱,采用透光的紗簾;西側日曬嚴重,則采用木百葉達到更好的遮光效果。一虛一實,對應窗位,以麵的形式,生成微妙的視覺對比。
壁爐,在西式的生活方式裏,顯得不可或缺,但置於東方的語境,渾然多了幾分混搭的意味。京城的冬日,零下溫度,窗外飛雪,壁爐裏嗶哩吧啦細微作響,木炭香味清新撲鼻,散發出原始的、自然的熱量給人和空間以溫暖。
上世紀東德時期的Vintage防爆燈,舊貨店裏淘回來的木構,中古店的子彈箱,樓下拾取的半壁石墩,B’TWIN的平衡車,西式的或者東方元素的藝術畫作、美式複古以及工業風格的台燈……不同的器物展示著業主喜歡收藏的愛好、品味以及自由的性情。
人與自然之間,器物起到很好的緩衝和媒介作用。我們不斷地追求人與物二者關係的相互協調,消除彼此的界限,幫助我們更好地享受生活、適應自然。至於個人,器物成為了我們精神的映照和情感的紐帶,它所承載的是我們或者家族的基因、意誌、行為、喜好的真實反應。
“物我兩忘”不僅隻是哲學上追求的境界,也是我們審美趣味的另一種投射。器物不言,但它訴說著關於時間、情感、曆史的故事。一對戲院椅、“南豐”石雕、五鬥櫃和一尊佛像、古木梁換鞋長凳,不同的器物構成玄關隆重的“歡迎儀式”。
03 居住方式 Mode of residence
通過玄關,左右平麵根據行為人的路徑劃分為明顯的動靜分區,熱鬧之後,安靜於一隅的臥室和公衛開始浮現眼前。獨立洗手台和鏡櫃作為端景,有著折射、緩衝的作用,同時使有限的空間視覺體驗得到無限的延伸。
臥室同時具備多功能的作用,方便業主剪輯、觀影、休閑和平時客人的短暫留宿;公衛則做了分離式的幹濕分區,通道上一側滿櫃收納著洗衣機,一側矮櫃陳列著書籍等物什,兩扇藝術玻璃推拉門開啟閉合的隱約之間,豐富空間的趣味性和動態感。
04 “有用”之器 “Useful” tool
住宅具有高度私人定製化的屬性,雖然隨著設計和施工的完成,但是“家”的平衡狀態一直在持續、並在不斷完善,周期性的變換現有擺布位置或者更替以及補充新的物件,這種未完成的生長過程跟業主的活動息息相關,也是業主參與並賦予空間旺盛生氣和活力的重要因素。
故《道德經》裏,老子說,“埏埴以為器,當其無,有器之用。鑿戶牖以為室,當其無,有室之用。”這裏的“器”不是單純的“器物”用詞,而是作為生活的載體,需要不斷“填補、充實、容納”的狀態,以至“當其無”構成真實的“有室之用”的理想生活狀態。
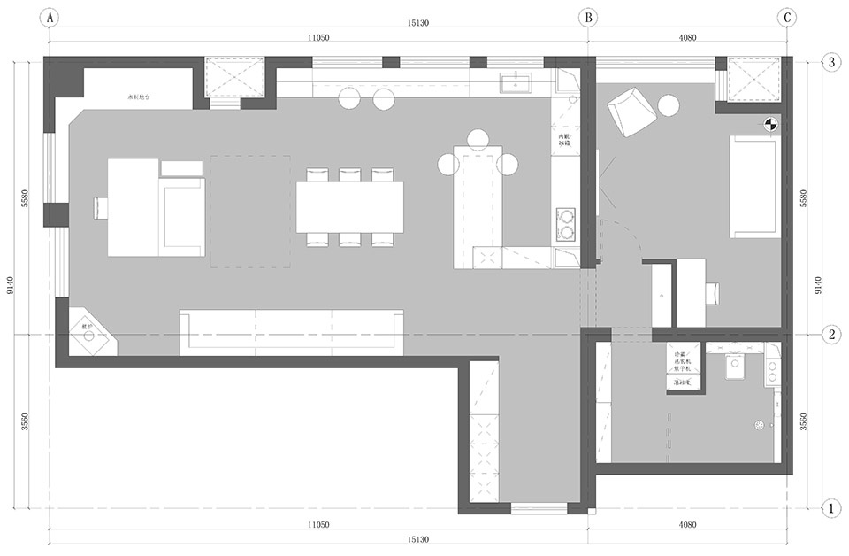
∇ 平麵圖
項目信息
項目名稱:京城-雙宅記
項目地點:中國·北京
設計機構:安之見舍空間設計事務所
項目攝影:高騰雲
項目撰文:無遠文字丨月球
項目麵積:141㎡
設計時間:2021年3月
完工時間:2021年12月



































