#01 CENTURY CLASSIC SALON
世紀精剪Century Classic Salon中華園旗艦店(以下簡稱CCS)位於成都桐梓林社區,90年代美領館由錦江賓館搬遷到領事館路,隨之而來的是大量外籍人士和外企人員,逐漸形成了該社區社群對高品質體驗的需求,也讓這家幾十年的老店擁有了一批注重品質的穩定客群。
#02 BREAKTHROUGHS
溝通店麵升級改造的過程中,借由品牌追求經典質感及創新的需求,打破對 “經典”的刻板印象成為設計的突破口。團隊整合長達20餘米的臨街外立麵,選擇線性設計語言構築“經典”與“現代”之間的微妙平衡,在連貫的線索中感受時代的影響。
#03 THRESHOLD
當我們談論起“世紀”時,無可避免的會以時間軸為載體展開對曆史的追溯與遐想,“Threshold”一詞的提出使得遐想的範圍更為具象。“Threshold”被譯為“閾”,在建築學語境中,通常取其抽象意義,被用來形容兩個性質差異鮮明的空間之間的地帶,此中間地帶通常伴隨著一係列物理與情感上的變化與流動。
“Threshold”作為設計語言在建築空間被使用時,無論東西方都有跡可循,如中國古典園林建築中的“月門”以其形式化的語言與象征性的隱喻,使得“穿越”這個行為被冠以吉祥的寓意。門不再成為一個物理界限,而是上升到精神與情感層麵。以詩意、細節著稱的威尼斯建築師卡洛斯卡帕在Tomba Brion項目裏對空間的形式與細節的處理,讓到訪者切身地感受到時間的流逝與生死的隱喻。
門洞也是第一個被置入此次設計的結構元素,作為連接不同區域的的中間地帶。綠色大理石結合簡化後的古典造型還原品牌“經典”的記憶感。門洞與導視係統的結合,明確了顧客的基礎動線,同時將整體空間進行功能分區。
#04 CONCEPT DEVELOPMENT
“過去”與“未來”一直是站在時間軸兩端的角色,通過門洞裏模糊的鏡麵,讓顧客在穿越的同時感受到內心的微妙變化,從而以顧客的行徑為媒介,在“過去”與“未來”之間建立一個精神性的對話。
#05 GRAPHIC DESIGN
保持經典與時尚的共存是Century Classic Salon的經營信仰,質感及簡潔表達便成為該品牌設計尤為重要的一環。“曲動的發絲”作為重要的設計元素概括英文及圖形LOGO的外觀,使用德國百年製紙品牌提供的號稱“世界之最黑紙張”作為印刷物料的基礎,極致深邃的黑色配合精致的製作工藝,品牌所表達的沉穩經典得以呈現。
∇ 軸測圖
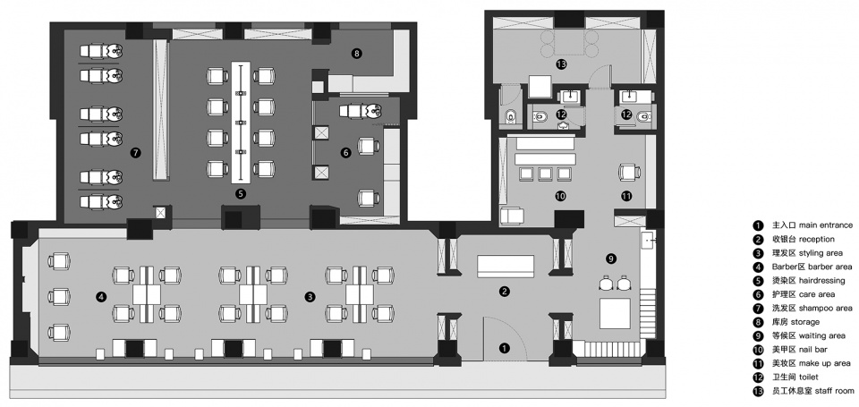
∇ 平麵圖
項目信息
項目名稱:世紀精剪美發沙龍
項目類型:沙龍
設計方:MOJO STUDIO
項目設計:2021
完成年份:2022
設計團隊:Mojo Wang,邱天
項目地址:成都市桐梓林北路5號附7號
建築麵積:300㎡
攝影版權:形在建築空間攝影-賀川
客戶:世紀精剪美發沙龍
材料:大理石、毛氈、不鏽鋼、銀鏡





























