“墉”義為城牆、高牆。高大的現代住宅緊鄰北京明清胡同,巨大的高差形成了獨特的視野景觀。新舊建築的關係是割裂的,也可以是延續的,交疊的;我們從周邊環境入手,通過改變布局和材質打造現代宜居住宅,同時也探索“現在”與“過去”的聯係。
該項目圍繞“引景入室”展開,意在突出、強化室外的獨特景致。端居而望,完成“現在”與“過去”的時空對話。
以方為窗,向景而居
起居室長窗是住宅內絕佳的觀景之處。為了突出強化室外獨特景致,我們利用低壓的梁體加以深色木飾麵的整體包裹,打造被拉長的框景效果,使空間具有場景感,延伸感。
脫離於屋內的材質,臨窗處用木飾麵營造一個介於“內”與“外”的灰空間,形成靜謐的精神性場所。
陽台暗藏收納空間和臨時床位,滿足了親友臨時住宿的功能需求。
開放廚房置於沿窗與客廳之間,深色岩板與延續的木飾麵形成整體,簡約而有質感。具有中古氣息的島台為廚房增加了收納空間,也使整個餐廚區在開放中獨立。
縱與橫的空間對話
為了實現空間優勢最大化,客廳朝向由東西調整為南北,形成進深近11米的“客廳中軸線”。通過這種橫向上的軸線關係不僅在時間上拉近了與窗外老建築的距離,在空間上也回應了京城古建的布局規劃,加強了與“過去”的聯係。空間劃分因此更加簡明,具備接待、休閑、用餐等功能。
縱向上,從沿窗到玄關通過地麵-地台-樓梯依次升高。居住者沿著“軸線”在不同場景穿梭,隨著高低變化與材質的不同產生多層次視覺體驗。
一入玄關,盤旋而上的樓梯成為矚目的端景。我們將樓梯一體化設計,殼薄而輕,呈螺旋形盤卷,殼的表麵呈乳白色,生長紋從殼的臍部輻射而出,宛如一顆巨大的“鸚鵡螺”。
“鸚鵡螺” 背後象征水滴的不鏽鋼擺件以失重的狀態慢慢向上彙聚,在頂部融彙在了一起。不鏽鋼曲麵和超白玻璃反射、過濾光線,隨著光照的不同使空間產生不可預料的微妙變化。
旋轉樓梯延續了整個空間飾麵材質的統一,又通過別致的造型為室內營造了律動感的變化,為空間增添建築氛圍和趣味性。
至簡至真,安然包容
在設計中,以大麵積淺色藝術塗料搭配氛圍燈點亮整個空間,摒棄非必要的過度裝飾,使其呈現一種更加包容,更具溫度的居家感受。隨著窗外日起日落,在喧鬧的城市中獲得內心的寧靜與治愈。
臥室改變原始的空間朝向以獲得更好的采光和視覺感受,開闊的視野得到無限延伸。綺坐窗前,靜看四季變換。
臥室用木質梳妝台替代成品床頭,完備的儲物與收納功能的置入,使屋主獲得使用上的便利與快捷。
衛生間采用整體防水材料,形成牆頂地一體的視覺感受。通過點、線、麵不同光源打亮空間,豐富視覺層次。
通過對空間、顏色、材質的塑造,“墉舍”既是一個連接“現在”與“過去”的居住空間,又是對生活的一種真實體現。
∇ 軸測圖
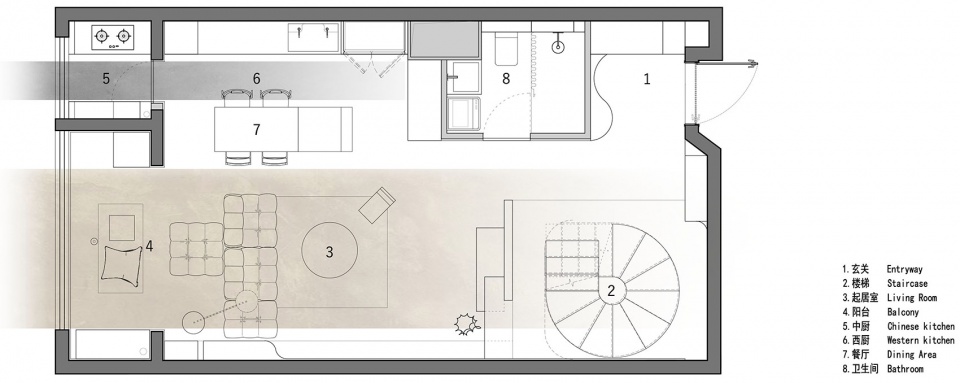
∇ 一層平麵圖
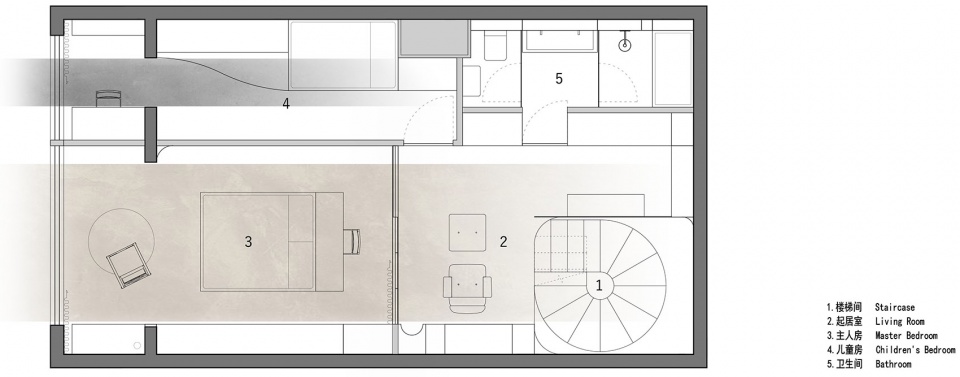
∇ 二層平麵圖
項目信息
項目名稱:墉舍
項目地點:北京市西城區
項目麵積:160㎡
主創設計師:劉俊辰
設計團隊:辰境設計
竣工時間:2021.12
主要材料:藝術塗料,木飾麵,不鏽鋼波紋板,顆粒板
攝影:立明


































