豐心設計〡中國·台中趣味親子大平層住宅
不論是秋千擺蕩時的爽朗笑聲,抑或是靜心閱讀的書香時光,每個時刻都揉入了一家人緊密相連的互動情感。這是屋主委由豐心設計打理規劃的家宅,簡約白淨佐入木質語彙,映現恬雅舒適的家宅輪廓,刻意將電視牆隱藏起來,留下寬敞環境讓小孩玩耍嬉戲。
女主人深知運動與培養孩子自律的重要性,體驗生活、感知生活的細節與家人間溫暖而親密交流,有助於成長期幼兒的各方麵發展,由「家」這個起點出發,陪伴彼此一段豐富的旅程。同樣育有子女的設計總監深知屋主的用心,以同為人母的細膩心思,梳理需求,蘊藏體貼一家大小的流暢動線與敞朗布局,構築一處友善幼兒並饒富趣味的宅邸。
回應屋主希望小孩在家中遠離3C,打破過往認定電視牆為客廳主體的常規,巧用拉門藏起影音渲染,回歸純淨無雜的公領域,還給居者不被打擾的家庭日常。玄關架設的秋千,是小孩們一回到家的運動天地,一旁偌大的空地,也能設置室內籃球架,常見爸爸陪著一起打球的歡樂畫麵。充分利用瑣碎畸零處,於玄關一側嵌入設置零食櫃,以內凹+層板方式直立陳列展示,這些具有獎勵性質的小點心是給孩子們的一點鼓勵。客廳與餐桌間的櫃體分界線,貼心地降低高度,設計為讓小朋友易拿取物件、書本與玩具等,自主的好習慣在慣常節奏中自然養成。
旋身一望,地坪悄悄自建商原本附的亮麵拋光石英磚,轉換為散發溫潤感的超耐磨木地板,略帶深褐色的底蘊,自帶一股穩定人心的力量,木係線條暈染為公領域的厚實基底。輕淺木紋門片以巴士門五金開合式巧妙遮蔽電視,女主人希望讓幼兒盡量避開影音聲光,保留寬敞領地彈性靈活運用,成排落地的抽屜收納櫃,同樣考量以適合幼童身高,便於孩兒自行取放玩具等物品。
移步邁向睡眠區,訴求簡潔優雅的新古典風格,班傑明摩爾漆刷出淡雅藍色調,具有耐刮、好清潔的特性,柔和雅韻中揉植沉靜氛圍,寧謐睡臥境地伴香甜入夢。精心丈量尺寸與仔細分配收納區域的係統櫃,是主人儲藏衣物的好幫手,隨著拚接雙色窗簾漫進的煦煦日光,床頭一盞典雅壁燈,泛起金屬光澤互相輝映。
另一側以淺色木皮框塑出臥榻區,睡前親子談心共讀相伴,創造全家共享的親密空間,濃濃親子情洋溢於朗讀笑語聲間,上方鑲嵌長條LED燈補足燈源。
本案規劃兩間兒童房,恰是一雙兒女各自的小天地,以油漆的手法隨性表現女孩柔和與男孩自由奔放的氣氛,同時挹注圓弧、曲線等元素,活絡視覺感官,增添活潑動感。
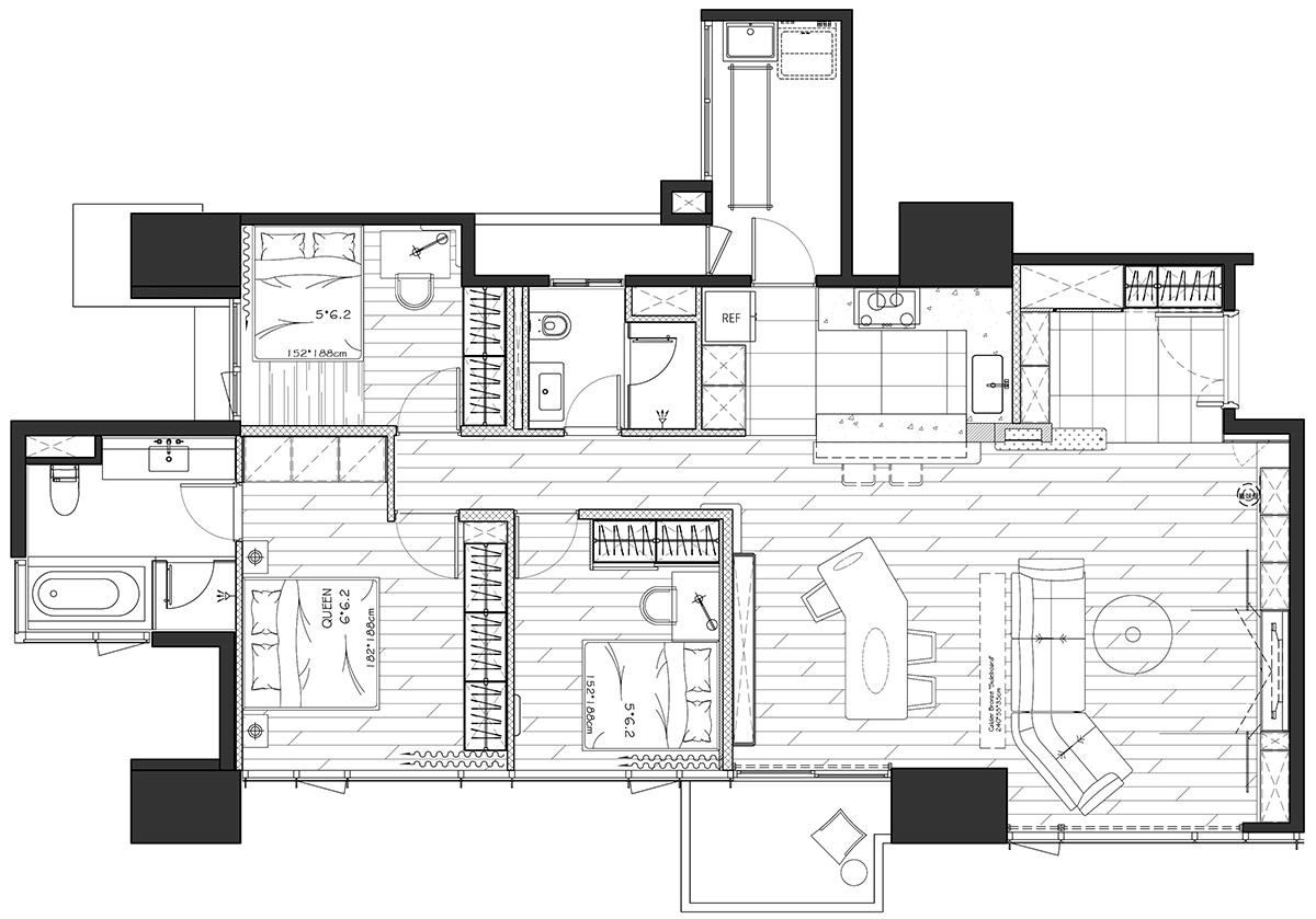
∇ 平麵圖































