項目是對成都二環路沿線一棟房屋的頂層進行改造,該房屋位於一座2004年開發的居住小區內。進入新千年,房地產市場狂飆突進的態勢還在繈褓之中,房產開發的套路還未定型,標準化流水線模式還未固化為通用法則,中小型開發商當中的個別甚至存有理想主義情節,造就的產品呈現出後來20年少見的豐富姿態,比如成都府南河畔的“上河城”就是其中一例,2003年開發的樓盤,多層住宅將底層架空,留出公共空間,住區裏還設計了一個小型美術館。本項目所在小區也是這個時期的此類特殊產物。
第一次進入項目所在小區,有一種不真實的觀感,建築和景觀並非我們常見的住宅小區範式。很多處空間、節點的設計不是以迎合標準化和既定規範條例而為,也非以效率優先為原則,單元從戶型到外立麵設計沒有千篇一律的無感複製,整個小區因為差異化產生的疏離感顯得別致清新,因為沒有作勢的精致顯得蓬勃生機。項目的委托方是一個三口之家,男主人從事廣告策劃工作,同時也是一位獨立藝術家和公益踐行者。他們從北京回到成都,在選擇居所的時候看到了這套房子,被它奇葩的戶型以及非標形態下的可能性所打動,邀請我們一起打造這個頂層生活居所。設計主要從生存空間、居住氛圍、生活方式三個方麵展開思考和推敲。
生存空間
設計通過對原始房屋平麵和豎向的拓展,創造出更加有效的生存空間。城市更新的話題主要集中在公共性較強的老舊商業體,或是更具傳播性的老舊廠房上,大量住宅成為被忽視的物業。我們常見的住宅改造多為以風貌為主的沿街立麵改造,俗稱“穿衣戴帽”,呈現出幹淨、整齊劃一的建築外觀,同時也帶來一些副作用:建築外立麵乃至街區底商招牌的機械統一,單調乏味,喪失多元化帶來的城市活力;一些案例采用統一封閉陽台的辦法來減少可能出現的“視覺汙染”,居民喪失了陽台晾衣、曬腸、吹風打望的生存活力;風貌改造著眼城市視角,居住建築視為被看的風景,忽略了居住者的切身感受,形式上的改頭換麵,並未對居住者實用的生存環境產生實質性改善。
∇ 軸測圖
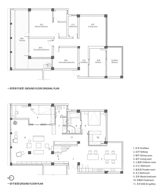
在住宅類型項目的改造中我們有一個質樸的觀點:盡量擴充使用麵積,更大、更有效的活動麵積是承載理想生活的基礎。設計在結構安全、水電管網及點位可調整、鄰裏關係和諧等基本條件允許的前提下,盡力擴大空間的使用範圍,優化其使用效率:封閉陽台——將原有易髒汙、不易清潔的陽台封閉,擴大起居活動的使用範圍;樓板打拆——拆除局部屋麵樓板,設計室內樓梯貫通上下樓層,提高上層空間可達的便捷性,從而提升上層空間的使用效率;板房改擴建——對原有屋頂板房進行改擴建,形成更可靠的頂層環境,以屋頂花園代替下層被封閉的陽台功能,提高屋頂空間的使用效率。
居住氛圍
設計通過對原始房屋材質的梳理,創造出輕鬆的居住氛圍。空間色調以黑、白、灰加木色為主導,木色部分為必要的固定家具、櫃體、房門和新建的輕質牆體;灰色部分為水泥地麵、裸露的原始建築梁柱構件;白色部分為天花吊頂、牆麵和部分固定櫃體;黑色部分以樓梯、扶手、入戶門套等細部構件為主。清晰的材質邏輯,從梁、柱到樓板、牆體到輕質牆、櫃再到局部構件,形成一套自然輕鬆的視覺係統。
生活方式
設計通過對原始房屋使用動線的重塑,創造出有趣的生活方式。項目原有的固化居室概念無法滿足主人對生活方式的要求,他們希望擁有一個結合休憩、社交、活動、工作、娛樂的綜合性空間。設計重新定義了原始房屋各部分的使用及動線關係,創造出更加流動、開放、寬敞、個性的居住場所,以此承載多元複義的生活方式。廚房和生活陽台打通形成餐廚一體的通透空間;原有的客臥、主臥重組,設計成開敞的入戶玄關、客廳和擁有夾層的挑高兒童房;頂層結合工作室和休閑健身房功能,設計成可分可合的靈活廳室。各個主題功能之間采用走道或樓梯串聯起來,成為氣韻貫穿的整體室內環境,為豐富的室內活動提供了多重可能性。
項目跨越了前後5年的建設時間,在這個相對較長的實施過程中並未產生過多的設計調整,著眼於生存空間、居住氛圍、生活方式等基本問題的設計,能夠承載時間的洗禮,能夠經得起生活的考驗。
∇ 改造前後平麵圖
項目信息
建築師: 凡築設計
麵積: 274 m²
項目年份: 2022
攝影師:孫海霆
主創建築師: 鍾梓洵
設計團隊: 李玲、薛傑元
施工方: 成都機礎建設工程有限公司
City: 成都

























