覓見MS.HU&VIEW
這裏不是關於商業的展示
而是基於品味的尋找
FEN+打造的這家買手店,並不是一個單純出售商品的服裝店,而是一個品味相近之人的誌趣場所。
業主希望在這裏遇到的,是能夠欣賞她的眼光,並與之意趣相投的朋友。
於是,場地的氣質就顯得十分重要。同時,展示空間和交流空間之間需要有一個恰當的比例關係,不僅能夠讓業主從全球挑選的服裝有一個充分的展示,也能夠讓來到這裏的客人安靜下來,慢慢挑選,慢慢體會,發現空間與器物的美好。
整個空間的設計並不追求第一眼的驚豔,而是在看似平常之中敘述返璞歸真的生活哲學,以感觀上的簡約整潔,呈現品味和思想上的豐富優雅。
質樸的空間呈現著極致的寧靜,空間本身以及家具、飾品與貨架,即使擁有不同的肌理,都呈現相似的格調——簡素、自然、詩意。
由panDOMO和微水泥構建的大地色塊麵營造著‘空’的意境,而這種意境,能夠最大限度地去呈現器物之美,去觸動人們內心的敏感。
同時這種色彩也寓意著廣袤與未知,在設計師看來,這個世界有太多未知的精彩等待我們發現,有太多的美好等待我們探索、尋覓、遇見。
如同一個導演,設計師控製著空間的節奏和秩序,理性且優雅地編織著細節的驚喜,或許是轉角的雕塑,或許是桌角的器皿,又或許是櫥窗上的點綴。
無一物中無盡藏,帶著時間的光澤,尋覓誌同道合的朋友,這裏是覓見,期待你來發現。
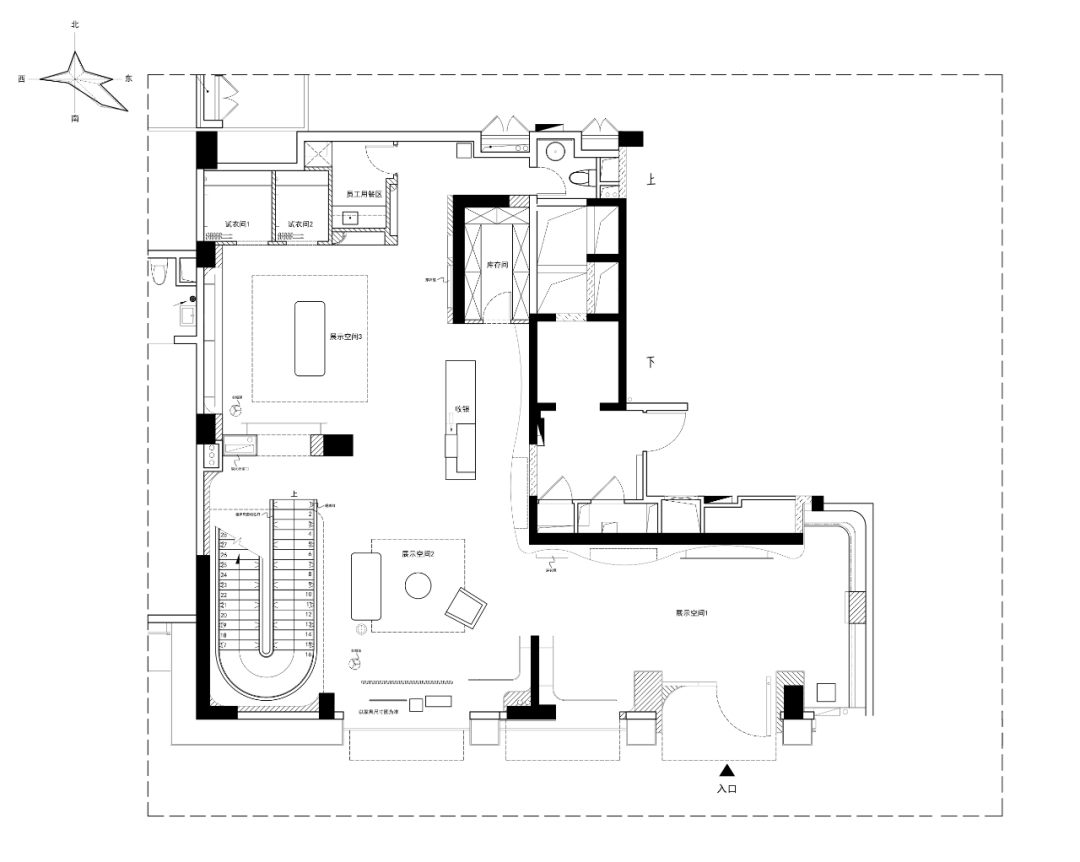
∇ 一層平麵圖
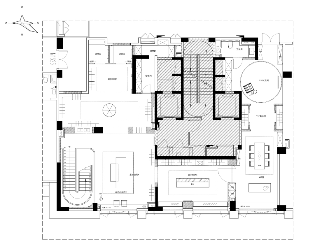
∇ 二層平麵圖
項目信息
項目名稱 | 覓見MS.HU&VIEW
空間類型 | 零售空間
項目麵積 | 500㎡
設計單位 | FEN+張奇峰設計工作室
設計總監 | 張奇峰
設計團隊 | 沈璐 賴綺夢 梁燕華 楊櫻
主要建材 | panDOMO(磐多魔) 、微水泥
項目攝影 | 劉鷹 鄔曉明
版權聲明:本站所有文章除投稿授權發布外,其他文字內容均為原創,享有著作權保護,未經許可不得以任何形式進行轉載(包括且不限於:媒體、網站、公眾號等)。所有項目照片/設計圖形版權歸原作者所有。本站部分內容源自網絡公開資源或用戶分享,如若侵犯了原作者的合法權益,可聯係我們進行處理。



































