Madcoffee 是一家位於墨西哥蒙特雷的特色咖啡店和設計工作室的混合體。受精品咖啡和對設計的熱愛的啟發,自助餐廳重新定義了傳統的設計工作室,是一個實體展示或陳列室,您可以在其中可視化工作室的技能和新的設計趨勢,促進創造刺激感官的空間,逐漸豐富當地社區。
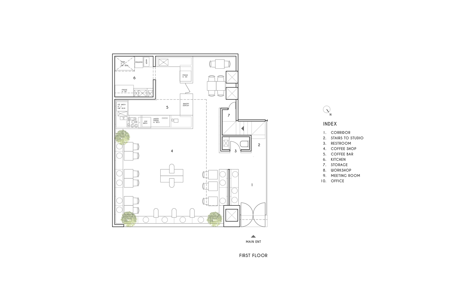
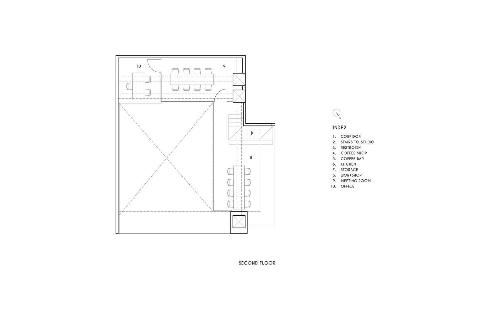
為了讓社區更容易接觸到它,該項目的基礎是在咖啡店和設計工作室之間創造一個混合體。與傳統的設計工作室不同,這兩個項目的結合創造了一個更開放的環境,遊客可以在喝杯咖啡的同時以更隨意的方式享受不同的功能。軌跡從主入口開始,在那裏您會看到一條隻有 2.3 米(7.5 英尺)高的走廊。在走廊的盡頭左邊是咖啡店和公共空間,高度為 6 米(19.7 英尺),給人一種輕鬆和寬敞的感覺。右側是通往會議室和設計工作室等私人空間的樓梯。
這個地方旨在將重點放在材料樣本上。這些是從各種尺寸和材料(如天然石頭、金屬、木材和其他材料)切割而成的樣品,在空間內顯示為焦點。客戶將能夠與他們互動並在他們未來的項目中可視化他們。除了與客戶互動外,樣品也是補充整個空間的視覺吸引力。
∇ 一層平麵圖
∇ 二層平麵圖
版權聲明:本站所有文章除投稿授權發布外,其他文字內容均為原創,享有著作權保護,未經許可不得以任何形式進行轉載(包括且不限於:媒體、網站、公眾號等)。所有項目照片/設計圖形版權歸原作者所有。本站部分內容源自網絡公開資源或用戶分享,如若侵犯了原作者的合法權益,可聯係我們進行處理。



























