韓國 / 釜山·機張郡 / 咖啡廳&麵包店 # mttb #
off.o Café是一家位於韓國釜山的咖啡館。總建築麵積588.17㎡,分兩層。入口位於第一層,是由3 座獨立建築組成的綜合體。入口位於中心大樓,入口設有咖啡廳和麵包店接待處,而兩座附樓則提供不同類型的座位空間。除了低層也為客戶提供多樣化的空間體驗外,該項目力求在整個空間中為客戶提供輕鬆而有趣的咖啡體驗。
由於該項目位於釜山機張海岸,三座建築均麵向海岸線。通過無盡的海洋相框豐富了空間體驗。與城市環境不同,該項目的郊區方麵,特別是被自然環境包圍,引導設計團隊創造最小和簡單的空間。雖然空間保持平靜,但自然環境更接近客戶。
針對現有空間的簡單線性形式,設計團隊在天花設計中加入曲線元素,營造出舒適的氛圍。對點、線、麵等幾何元素的重新詮釋不是複雜和動態的,而是激發了空間設計的靈感,營造出一種輕鬆而簡約的氛圍。
空間結構和形式是用一個簡單的形式來處理。在保留現有空間的簡單幾何形狀的同時,設計團隊引入了對比鮮明的各種家具類型。同時,選擇性材料調色板控製空間整體視覺效果,這可以防止項目出現裝飾性或華麗性。空間中整體使用環保木材和奶油色調,為客戶帶來舒適放鬆的體驗。
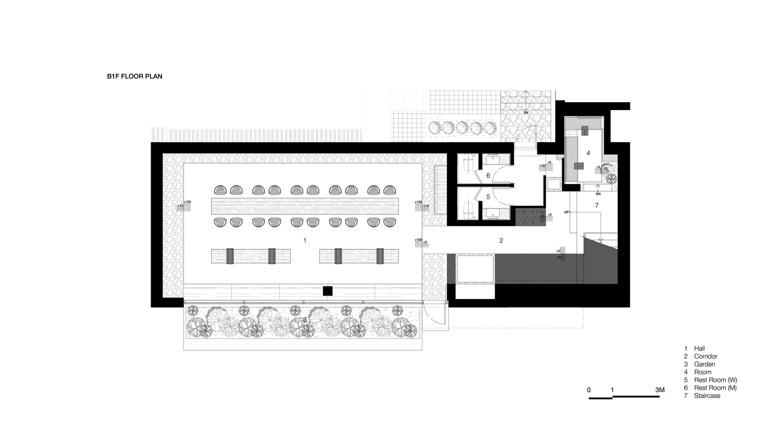
▽ B1F平麵圖
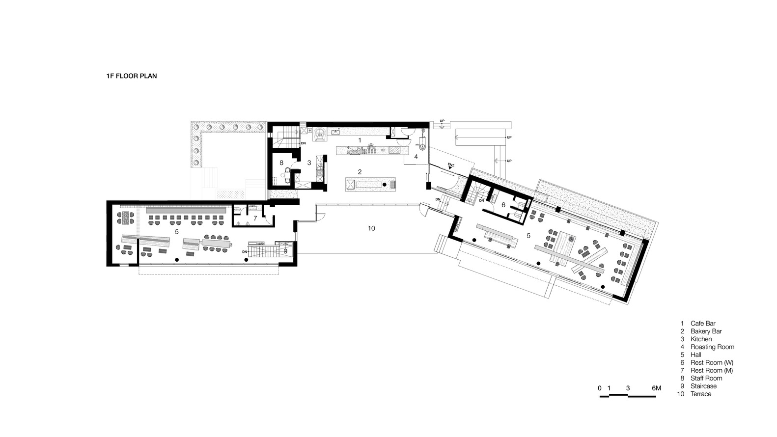
▽ 1F平麵圖
© Images / Yongjoon Choi
版權聲明:本站所有文章除投稿授權發布外,其他文字內容均為原創,享有著作權保護,未經許可不得以任何形式進行轉載(包括且不限於:媒體、網站、公眾號等)。所有項目照片/設計圖形版權歸原作者所有。本站部分內容源自網絡公開資源或用戶分享,如若侵犯了原作者的合法權益,可聯係我們進行處理。

























