ASWA 設計了一個具有不規則形狀結構的新辦公室,其靈感來自Sevenlakes 公司的產品,一種用於食品行業的真空包裝薄膜。未成形的功能空間傳達了遵循其包裹的對象形狀的可變外觀的概念。辦公室有兩個庭院;一個綠色庭院和一個水庭院,讓自然光充分照射到空間中。
Sevenlakes是泰國領先的食品包裝創意公司,是軟包裝熱成型包裝的專家。ASWA 提供了如何代表他們的新總部的想法,該總部在建築上從他們的產品開始。240㎡的室內空間,適合 6-8 個員工座位、10 個座位的會議室和總經理室。
場地約400㎡,靠近曼穀素萬那普機場,周圍是低層住宅樓和空曠的低地。新辦公室傾向於擴大他們的產品,即熱成型包裝,並傳達為一種建築語言。具有梯形平麵形狀的三角形體積來自熱成型包裝的想法,其次是功能性內部。最高6米的體量緊鄰路邊被設計為員工區,可容納6-8人,天花板向會議室和總經理室傾斜。
鋼結構被選作結構設計,在該項目中發揮突出作用,因為它可以提供大跨度的不規則形狀。黑色梯形體量的外部材料帶有兩個勺子庭院,是一種金屬黑色鋁複合材料,覆蓋在整個建築中,就像公司的熱成型包裝產品一樣,作為單片包裝材料。
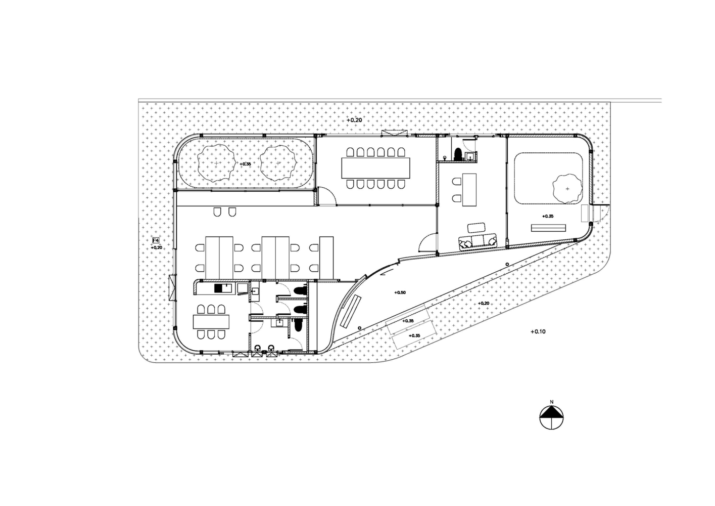
功能布局可分為三部分:左側為員工區,中間為會議區,右側為總經理室。入口位於梯形平麵的斜邊,設有迎賓區和弧形背景牆,讓員工在休息時間或下班後放鬆身心。當進入內部時,首先看到的空間是令人驚訝的綠色庭院,為員工區提供自然光,而會議室則在縮短的一側享有景觀。除了大院子外,這棟樓還有一個令人驚喜的球場,供管理人員和孩子們一起玩耍。
∇ 平麵圖
∇ 屋頂平麵圖
版權聲明:本站所有文章除投稿授權發布外,其他文字內容均為原創,享有著作權保護,未經許可不得以任何形式進行轉載(包括且不限於:媒體、網站、公眾號等)。所有項目照片/設計圖形版權歸原作者所有。本站部分內容源自網絡公開資源或用戶分享,如若侵犯了原作者的合法權益,可聯係我們進行處理。


































