重新定義幼兒教育空間
我們相信,自由與建造性的玩耍,浸潤與互動的學習環境,以及充足的愛、照顧與關注,會為兒童成長建立起最穩定的基礎。 ——綺朵
全球知名幼教品牌KIDO綺朵幼兒園,創立於2013年,總部位於英國倫敦,目前在全球5個國家和地區(英國、美國、迪拜、印度和中國)已開設30所幼兒園,正在服務全世界2000多個家庭。2021年,KIDO正式落地中國寧波,園所坐落於寧波東部新城核心區域,建築麵積約6500平方米。
REAL作為中國大陸首家KIDO旗艦園的設計師,希望綺朵校園不僅僅是一所幼兒園,它更將建立起一個社區。我們與綺朵團隊一起,重新定義幼兒教育空間。這裏的空間設計圍繞著藝術,想象力,文學,玩耍,這些與KIDO教學相關的理念展開。孩子們在這裏學習成長,玩耍交友,開放的園所設計,為他們提供了無限可能。
共享的校園 Campus for All
綺朵采用KIDO特有的“PPP“教學法,即“Project based learning項目式學習”、“Problem based learning 問題式學習”、“Play based learning玩樂式學習”。這樣的教學方式,更需要能夠自然融合學習與玩耍的成長空間,配合綺朵沉浸式的教學課程,完全喚醒孩子們對學習與生活的熱愛。
首先,我們創造了一個融合多場景使用的校園共享大廳。大廳以圓形布局展開,整體空間充滿了張力。這樣的布局也讓場地產生與生俱來的向心力,很好地增進各個區域之間的互動。這裏兼容了一個溫馨的接待展示區,一個能承載各種活動的開放式大廳,以及一條充滿想象力的藝術展廊。這些區域之間不設置硬性分割,空間靈活通透,便於場地聯動。
一部大台階通往夾層空間,這裏,我們布置了玩耍角和閱讀區。隱藏在夾層角落裏的旋轉滑梯,是孩子們的小秘密,迎合了他們發現、探索、冒險的天性。旋轉滑梯從孩子的視角聯係了不同層次的空間,大大地增加了場地的趣味性。孩子們在大台階與滑梯之間來來回回,這也無形之中加大了他們的運動量。
大廳裏的弧形牆體所定義出來的長廊空間,適合用作藝術品、以及小朋友們日常作品的展示。展廊牆麵上特別定製的洞洞板,也將滿足小朋友們不斷探索的好奇心。為了保持大廳空間整體的通透性,弧形牆體上開了寬窄不一的洞口,這也為孩子們創造出更多玩耍的可能性——捉迷藏,繞彎跑,這麵弧牆始終被孩子們的歡笑聲所圍繞。
實際上,為了更好地利用空間,我們在這麵弧形牆體中巧妙地融入了儲藏功能,將其設計成了上下兩層的櫃體,方便幼兒園大量教具和物品的儲藏。
位於大廳一角的教職工區域集合了辦公、休閑、接待功能。這個區域麵向多功能大廳展開,使得工作人員與孩子們的互動隨時展開,提高空間安全性,也豐富了教職工的辦公體驗。
探索的空間 Places to Explore
孩子們將在開敞明亮的教室中度過許多學習玩耍的時光,這裏,我們綜合考量了兒童的生活行為習慣,創造出舒適且激發孩子探索天性的教學環境。基於老師們對教室空間的使用習慣,我們對教室內的物品存放區、教師辦公區、午休區等進行合理布局,以實現整體環境使用的安全與便捷。
每個教室都設置了探索平台,由一部樓梯和一部滑梯連接上下層空間。平台下方擺放著孩子們的小床,圍合空間創造出靜謐的感受,非常適合孩子們午休;上層則用於各種使用場景——閱讀、玩耍、過家家——探索平台有效地擴大了教室內部的活動範圍,使空間的層次更為豐富。這樣的布置也非常受孩子們的歡迎,大大增加了他們的日常活動量。
在綺朵,有專為孩子們打造的國學教室、科學教室、手工作坊、心靈坊等專科教室。專科教室的設計圍繞著空間的特定功能展開,布局和陳設具有引導性,為特殊使用場景創造適宜的氛圍。
KIDO鼓勵孩子們的團聚與共享,也尊重他們獨處的意願。因此在設計中,我們創造出多個合班使用空間,以滿足班級間的交流、共同學習,與較大規模遊戲表演使用。同時,分布在校園內的多個小空間設計,為孩子們提供了安靜獨處、閱讀、獨立思考與休憩的場所。
關懷的體驗 A Caring Experience
KIDO相信,無微不至的愛與關懷,是兒童早期穩定性格形成的重要因素。我們對孩子們的關愛,也在設計中體現得淋漓盡致。無論是安全規範,選材,還是家具設計,我們都努力為綺朵的孩子營造充滿愛意的空間。
我們還為KIDO品牌特別定製了專屬家具,包括孩子們午睡的小床,國學坊的桌椅等等。從小床上名片卡槽的位置和材質選取,到儲物抽屜的高度與防夾手設計,我們都細致入微,既考慮到孩子們使用的安全性與舒適度,也考慮到老師們的體驗,為他們的教學和照料工作都提供了便捷。
∇ 共享大廳模型
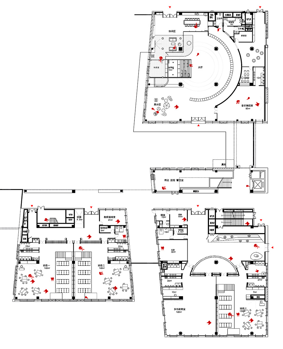
∇ 一層平麵圖
∇ 二層平麵圖
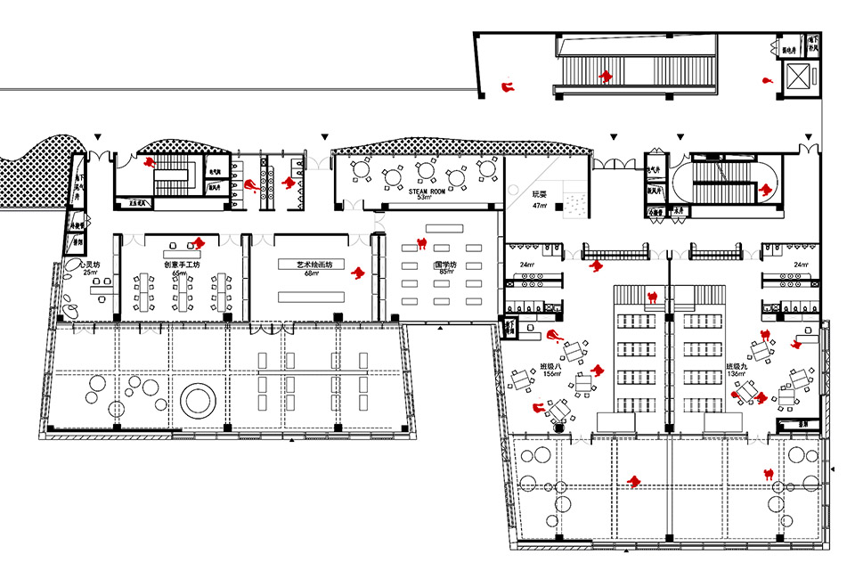
∇ 三層平麵圖
項目信息
項目名稱:Kido School 綺朵幼兒園室內設計
項目類型:室內設計
設計方:REAL建築事務所
完成年份:2022
設計團隊:焦乃積、陳俙如、王穎、曾澤琪、李波、朱亞萍、龔天羽
項目地址:寧波市鄞州區中山東路1665號15幢
建築麵積:6500㎡
攝影版權:NBP視覺空間、XIRU
合作方:寧波市建築設計研究院有限公司,浙江華之建築設計有限公司
客戶:浙江格洛教育科技集團有限公司
材料:木飾麵、衝孔鋁板、木紋轉印鋁板、馬賽克、PVC地膠
品牌:科定









































