年輕的茶飲空間
人是群居動物。後疫情時代,在無限循環的社會隔離以及自我隔離中,生活給人們帶來的感受也在發生潛移默化的轉變。
我們發現當代青年休閑飲品多以咖啡、奶茶以及輕型酒飲為主要消費對象。由於咖啡以及其他新型飲品的的街道入侵,迅速填滿了我們生活的每個角落。茶飲作為中國的傳統飲品,在城市裏越來越偏藝術性,其觀賞價值高於飲用價值。然而觀其本質我們認為茶飲更應溶解於生活。
構成 Composition
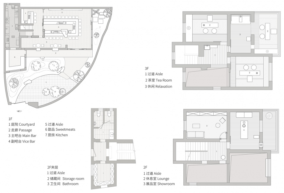
在一層公共區域的部分,我們希望突破傳統茶室帶來的社交距離感,重新梳理整體空間動線,讓人們可以在有限的空間結構裏自由穿行。U形吧台的植入可以把人們從孤立的狀態裏解放出來,通過環境關係把獨立的個體串聯起來。
茶室的入口處我們給空間預留了上揚的曲線,視覺上延伸了空間整體比例。在曲線的頂部安裝了一塊透明玻璃,把空間,材質,色彩暴露在環境中。天氣好的時候陽光穿過玻璃進入室內,與建築共生的樹影則可以在特定時間裏無秩序的遊走。
在過道的盡頭,是我們與青年藝術家合作的靜態裝置。生動的黑色幾何形態半透明切片懸浮在建築上空,垂直的將上下空間連接。裝置的頂部預留了自然天光,光通過折射可以穿過切片的表皮與室內環境發生對話。
二層區域主要為展覽分享區,在展示區域內可以看到傳統陶藝與茶飲文化的融合。三層則為傳統榻榻米室內,麵向山體的一側我們最大限度的延伸窗戶與自然的邊界。
∇ 軸測圖
∇ 平麵圖
∇ 剖麵圖
項目信息
項目名稱:丘末茶研所-年輕的茶飲空間
項目類型:建築
設計方:杭州山地土壤室內設計
項目設計:2021年7月
完成年份:2022.5月
設計團隊:董甜甜
項目地址:浙江省杭州市西湖區
建築麵積:383m²+160m²
攝影版權:穩攝影
藝術裝置:謝小東
施工方:杭州如旺裝飾有限公司
燈光設計:華豪照明
客戶:丘末茶房
材料:藝術塗料、不鏽鋼、切片磚






























