Fatface 3.0是白菜為Fatface Coffee打造位於沈陽市雲集街的新店,Fatface是沈陽本土的一家小眾精品咖啡店,對於態度與品質的追求根植於品牌價值觀,意在打造具有城市氣息的本土咖啡文化。
設計將品牌價值植入於空間,提出“做自己的叛逆者”作為空間的主線,貫穿所有線索。叛逆往往被貼上貶義的標簽,在隨波逐流的時代,也許我們需要一份自發的、積極的叛逆。當今的社會,能夠自由地做自己往往已經構成了叛逆者的身份,而在經曆與懂得後,依舊選擇去做隻屬於自己一個人的叛逆者,更是一份沉澱的堅持與勇氣,我們希望通過空間傳達品牌的這份態度。
項目地點位於一條綠蔭飽滿的小街道,原始建築是兩棟老式居民樓拐角處的一棟一層擴建,建築麵積50平米。我們希望從建築與室內都體現出積極叛逆的特質,將小空間做到有內容。我們保留了外立麵的原始建築部分牆體,從內部新建出一個體塊作為店鋪空間載體,視覺上呈現建築本身是一股力量在生長,頂到四周牆體時的一個瞬間狀態,與周圍環境在和諧的衝突下對話。
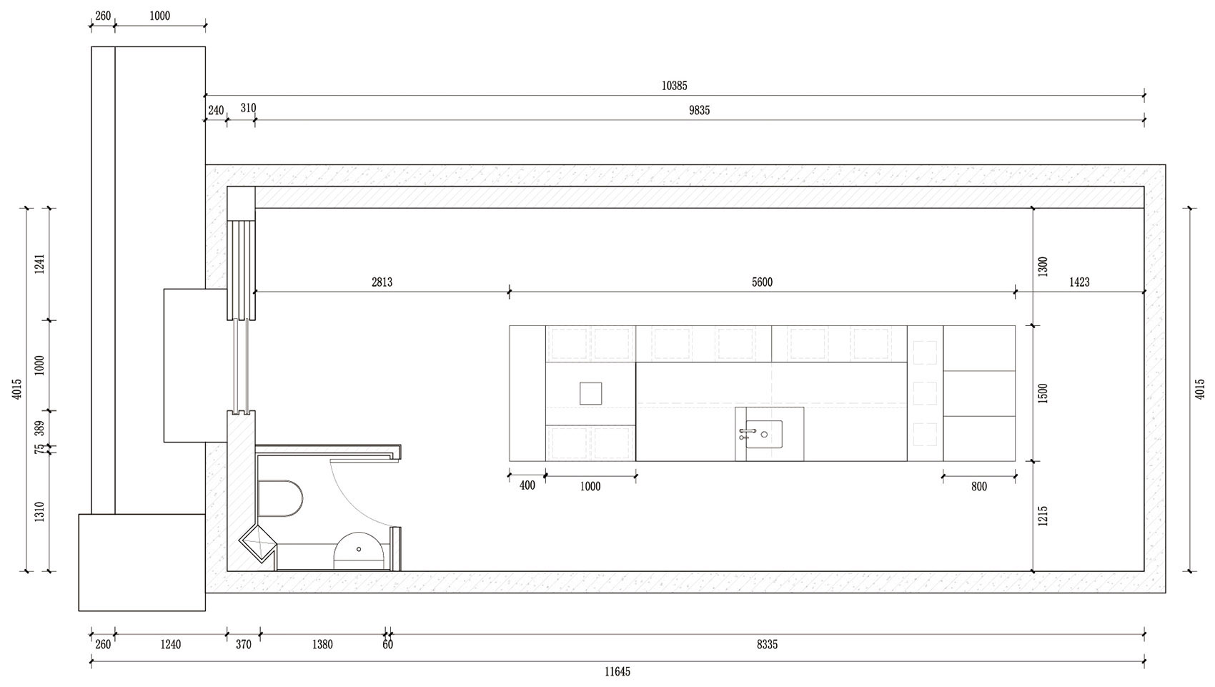
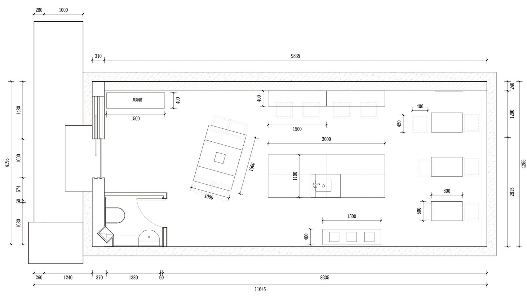
室內空間的叛逆體現在空間的多變與靈活,用簡單對抗複雜。從平麵布局的邏輯中,我們遵循了靈活性、可拆解、多變的方式賦予空間更多的功能,使空間有很強的向心性的同時具備發散性。最重要的是空間帶給人的體驗是一個促進人與人交流的空間。
空間中為了極致的表達,將裝飾做到至簡,僅保留米白色的牆,使空間內的構成關係體現的更加淋漓盡致。極簡的空間突出了斜麵的窗,將視覺注意力引向窗外的老樓與天空形成於室內反差的圖像,同時通過光影營造出材質與細節之美。
當空間內家具聚攏成一個島台整體時,6米長、1.5米寬的台麵在空間中具有絕對的視覺衝擊力,給客人提供了戲劇化的空間互動體驗。該場景可以用來培訓、小型咖啡品鑒等活動,同時空間具備策展能力,幹淨的牆麵可以不定期服務於小型展覽。而當空間內家具散落開來的狀態則可容納更多的顧客,並且給予客人相比於第一種狀態更好的私密性。
∇ 家具拆分動圖
不論哪種狀態,我們都保留了相對大麵積的固定吧台區域,供咖啡師操作及與人交流,使空間成為一個有溫度的交流場所。
比起如何麵對環境挑戰,也許更重要的是如何麵對自己挑戰。希望這個場所能讓人忘記空間,去注意其本質的信息,在不設限的場所,傳達不妥協的堅持,積極“叛逆”的態度,以及合理推翻一些事物的探索。
∇ 平麵布置一
∇ 平麵布置二
項目信息
項目名稱:Fatface 3.0 咖啡店
項目類型:建築改造/室內
設計方:白菜設計
完成年份:2022
項目地址:遼寧省沈陽市雲集街
建築麵積:50㎡
攝影版權:鍾永剛 圖派視覺
照明設計:沈陽智境照明設計
委托方:Fatface coffee
施工方:瑞吾RiverCam





























