簡單的藝術
設計師夫婦倪偉鋒與項舒倩,喜歡一切簡單純粹的事物,他們的作品裏,總是富有力量與深意。對於“家”的規劃,他們追求精神世界的絕對純潔與幹淨,試圖尋找一方能讓人靜下來的居所,且能承載日常迸發的有趣靈感。
本案位於溫州市中心,緊鄰浙江第一高樓——世貿大廈,擁有優越的地理位置與絕佳視野,但也同樣要麵對比較喧鬧的自然環境。對於NX夫婦來說,如何做到“出則繁華,入則寧靜”是該項目改造中要麵對的最重要的一個命題。
關於安靜的兩道課題
一是空間本身的絕對安靜
二是人居於空間內的心靜
對於靜的理解,NX夫婦有自己的堅持,“靜”一方麵是空間的絕對安靜,另一方麵他們也希望能夠得到心靈上真正的安靜。對於前者,他們通過挑選隔音的窗戶,以及全屋係統的隔音處理,可以達到相對寂靜的室內環境;而關於後者,靈魂上的安靜,源自於設計師對空間的理解,源自於與自然的相對平衡,這也引申到了本案的第二大主題——“自然”。
一個好的設計可以
感受到自然的流轉
設計師將空間大麵積敞開,以落地窗的形式迎接陽光的照射,隨著每天的日升日落,陽光以不同的角度照進室內,可以在空間的各個區域感受到來自陽光的轉變,仿佛是光圍著空間在遊走,不斷展示著一日之中的無窮變幻。
人雖居於室內,卻能感受到來自戶外的光影流轉,感受清晨拂曉的微光,感受午間恣意而熱烈的暖陽,以及屬於傍晚的溫柔黃昏。
光透過不同的結構、材質、肌理……留下不同的光影構造,這是設計師玄妙的手筆,對空間本身不加修飾,而是通過光與影,為豐富的結構描紅,不動聲色地展示空間最本身的魅力——結構之美。
將露台營造成空中花園,以敞開的形式與外界聯通,置身其間時,位於地麵的城市公園與空中的人工花園,仿佛融於一體,形成立體的自然聯動,天空與地麵的界限逐漸模糊。
家之於人
應是以體驗感為先
我們無法去定義一個空間是否成功,但對於家居空間來說,適配主人日常生活,且能帶動生活習慣的正向發展,是無可非議的。
為了營造一個明亮通透的空間,設計師以打開的手法將空間各處緊密相連,以餐廳為中心向外輻射,去除不必要的隔斷,光在空間中自然流淌,不被結構束縛。
同時,完全開放的空間帶來更親密的家居體驗,親情不再被框架所阻隔,使家庭成員間的交流更輕鬆舒適。
包括二層的主臥空間,不似尋常的絕對私密,而是即融合又獨立,嚴謹的辦公與愜意的居家,也並不對立,在適宜的空間裏,為各種生活方式留有餘地。
至於女兒們的房間,並沒有為了迎合空間的整體性而去延續清爽簡單的裝扮,而是在尊重孩子自身喜好的前提下去規劃。設計師希望在這個家中,每個人都能有一方完全屬於自己的空間,不因一切外物所妥協。
細節處的點睛之筆
源自對生活的執著
NX夫婦在看過了太多複雜的裝飾之後,愈發向往絕對的純粹與幹淨,並熱衷於在日常生活中,收集能夠帶來靈感的小物件。
大麵積的儲物空間,營造“空無一物”的生活體驗。學會“藏”與“守”,是維持幹淨簡約生活的必經之路。
日常生活中的收集,逐漸填入空間中,家居空間有意思之處便是這隨著生活而日漸豐盈的人情味。每一個看似簡單的物件,對於主人來說,都承載著無可替代的記憶。
他們從四十多平方米的住宅,搬入這四百多平方米的空間中,需要轉變的不僅僅是生活方式,更是對於空間的理解。他們將小空間中“藏”的概念,運用於如今大的空間裏,釋放更多的“空”交予“間”,形成純粹而有質感的生活方式。
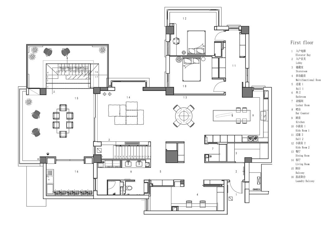
∇ 一層平麵圖
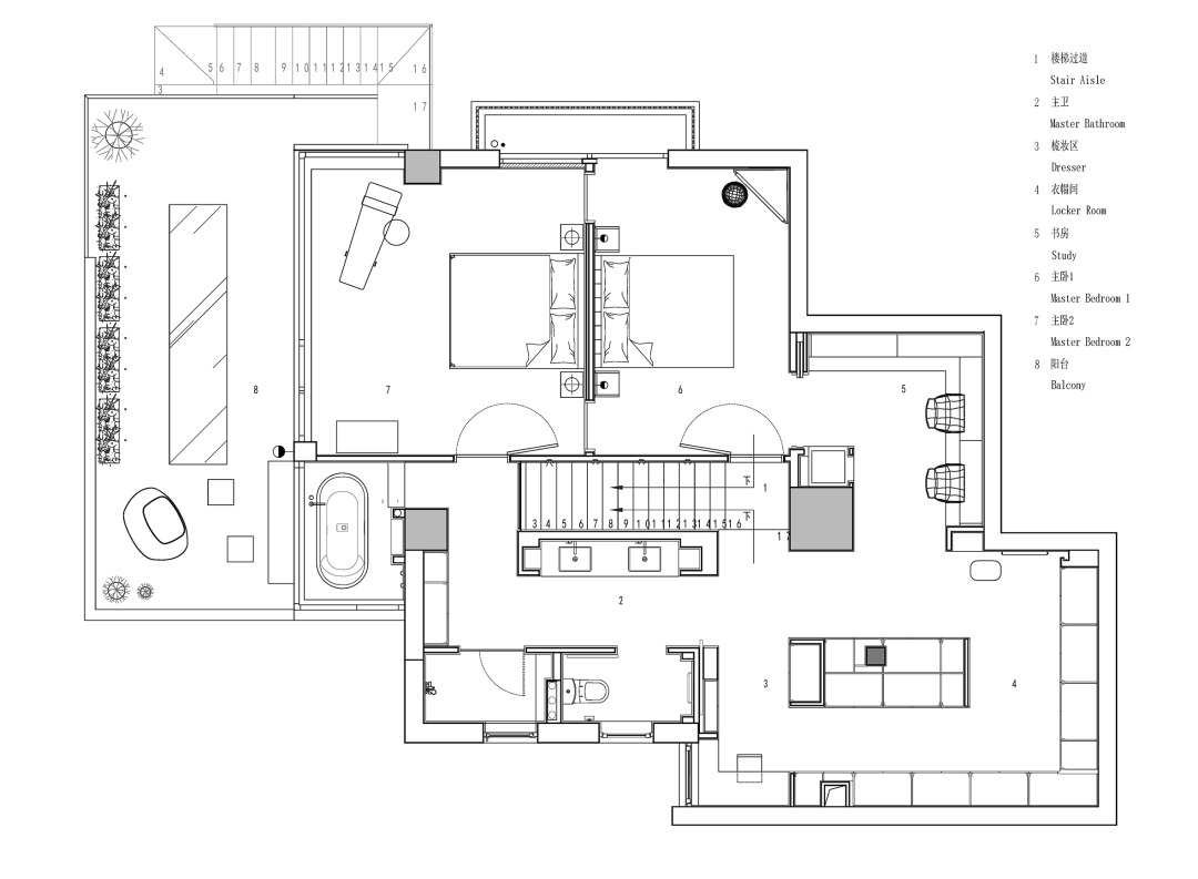
∇ 二層平麵圖
項目信息
項目名稱|簡單的藝術
公司名稱|NX設計
項目地點|中國 浙江 溫州
項目麵積|400㎡
主案設計|倪偉鋒、項舒倩
項目攝影|瀚墨視覺-葉鬆
設計時間|2021.1
完工時間|2022.5
主要材料|藝術漆、橡木、岩板











































