墨西哥Majaica住宅的構思是為了尋找與環境持續接觸的獨特體驗。考慮到這一目標,0studio Arquitectura設計了簡單且對稱的體量,將被包圍直接地形的周圍環境劃分。
設計基於3個簡單的體塊,其中2個包含私人空間。第三個體塊也是最大的一個是房子、公共和社交區域的主要核心,其特點是對外開放最大的一個。通過尋找開放性和與周圍環境的連通性,設計師將所有建築物麵向概念的主要核心,並與遊泳池和大自然接觸。從透視內部到所有視覺效果,營造一種完全舒適的氛圍。
構成 Casa Majaica 的 3 個空間建立在具有相同紋理和輪廓特征的基礎上,這強化了關於所選材料的重要性的想法,這些材料是免維護的,並且隨著時間的推移,它們將能夠進化和改變外觀。
∇ 模型圖
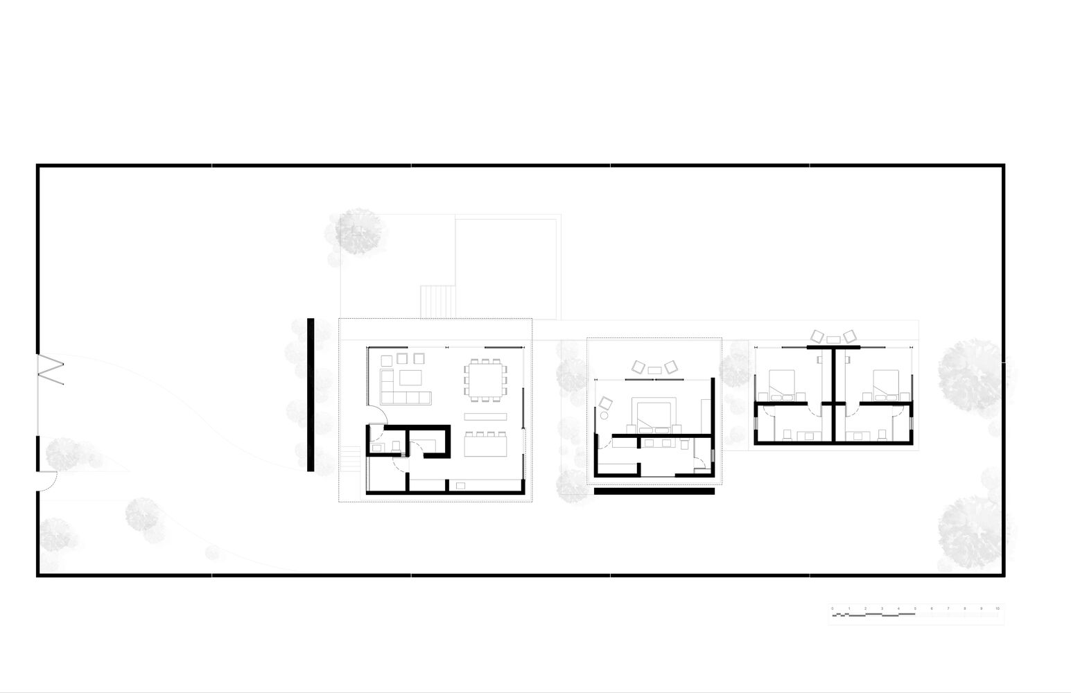
∇ 平麵圖
版權聲明:本站所有文章除投稿授權發布外,其他文字內容均為原創,享有著作權保護,未經許可不得以任何形式進行轉載(包括且不限於:媒體、網站、公眾號等)。所有項目照片/設計圖形版權歸原作者所有。本站部分內容源自網絡公開資源或用戶分享,如若侵犯了原作者的合法權益,可聯係我們進行處理。
























