Post office 聯合辦公社區坐落於上海市靜安區昌平路上的一棟老建築大樓裏,木鬥設計團隊通過提取品牌的內在精神特質,以“街道中的信箱”的設計理念展開,平麵空間的布置部分,在滿足基本辦公與社交需求的基礎上,用靈活有趣的動線規劃描述了複古的郵遞空間場景感。提供了創新變通的辦公環境,從而取代傳統靜態辦公。並且打破老式複古概念工作間,用全新的設計結構美學來詮釋的活力與藝術氣息。
∇ 設計靈感:建築空間如縱橫交錯的街道
電梯廳 Elevator hall
電梯廳通過釉麵複古磚與原木色的巧妙配合,保留了原有牆麵的粗糙表皮。形成一個故事性的場景。
前台接待 Reception
前台接待區采用複古的郵局綠飾麵包圍與現代不鏽鋼信報箱形成對比,流動著空間的趣味性。
采用大麵的複古綠與純淨白色配合使整個辦公空間流動著生機盎然,我們希望從感知和自然方麵去提升工作效率並改善辦公質量。辦公室的需求空間與品牌所強調的特色辦公空間相互結合,將室內氛圍變成一種獨立品牌的元素,消解了使用者對建築結構的認知。在空間之間建立起對話交流,留下充滿神秘的探索感。
會議室 Conference Room
會議室空間在平麵空間布局上與前廳接待形成一個圍合的氣氛空間。
辦公空間 Work space
家具選用了經典耐用的款式目的是為了突出空間的簡潔實用性,當步入動線清晰的空間,參觀者能夠很快的關注到空間本身。使用者存在於空間的場景之中,動線的變化功能的轉變,使空間真正發揮其作用。
∇ 分解軸測圖
∇ 接待區和會議室軸測圖
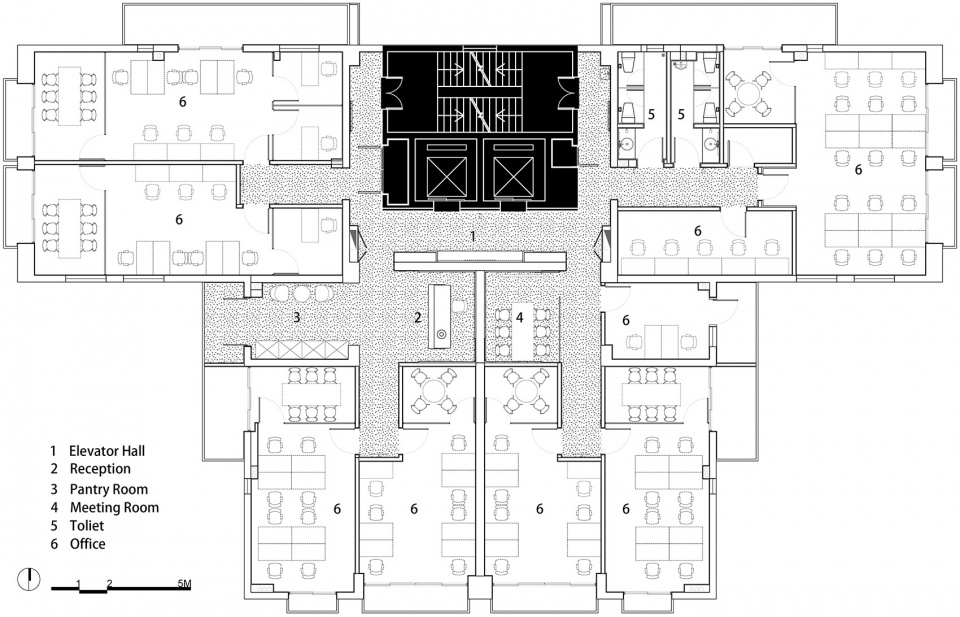
∇ 平麵圖
項目信息
項目名稱:POST OFFICE 辦公社區
工作室:Woodo Studio(木鬥設計)
完工日期:2022.7
主案設計師:王衛,馮婷婷
設計團隊:陳加鴻,李家琳
項目地址:上海靜安區昌平路
建築麵積:450㎡
攝影:郭靖
委托方:POST OFFICE
材料/品牌:綠色木飾麵,釉麵複古磚,拉絲不鏽鋼



























