2004 年,兩個法國人-塞巴斯蒂安·科普 (Sébastien Kopp) 和弗朗索瓦·吉斯蘭 (François-Ghislain) 來到巴西,懷揣著重新發明他們這一代標誌性產品運動鞋的生產流程的想法。旨在使生產過程的每個階段都不同,直到最終產品。不僅創造了一種時尚產品,而且還喚醒了公眾了解該項目超越其美學的願望。看看它們是如何製作的;看看在什麼條件下、在哪裏。VEJA 就是這樣誕生的,並在歐洲最好的商店進行分銷。在巴西,於 2013 年開始分銷。然而,由於一係列因素,無法在國內市場使用 VEJA 這個名稱。找到的解決方案被命名為 VERT,在法語中的意思是“綠色”。
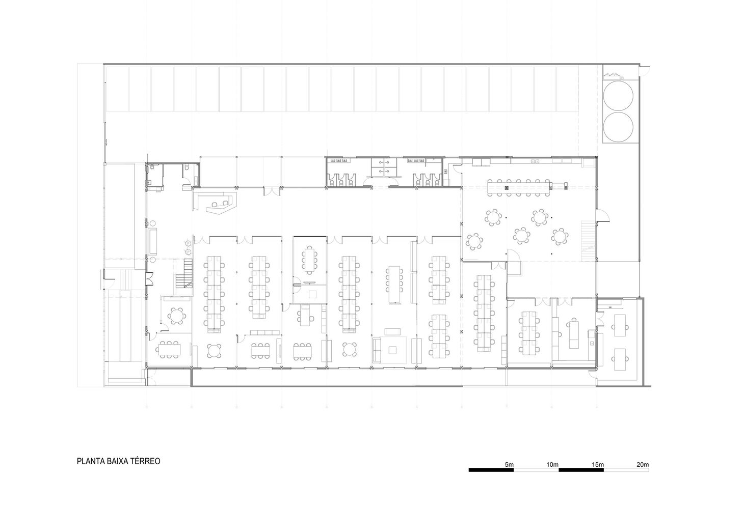
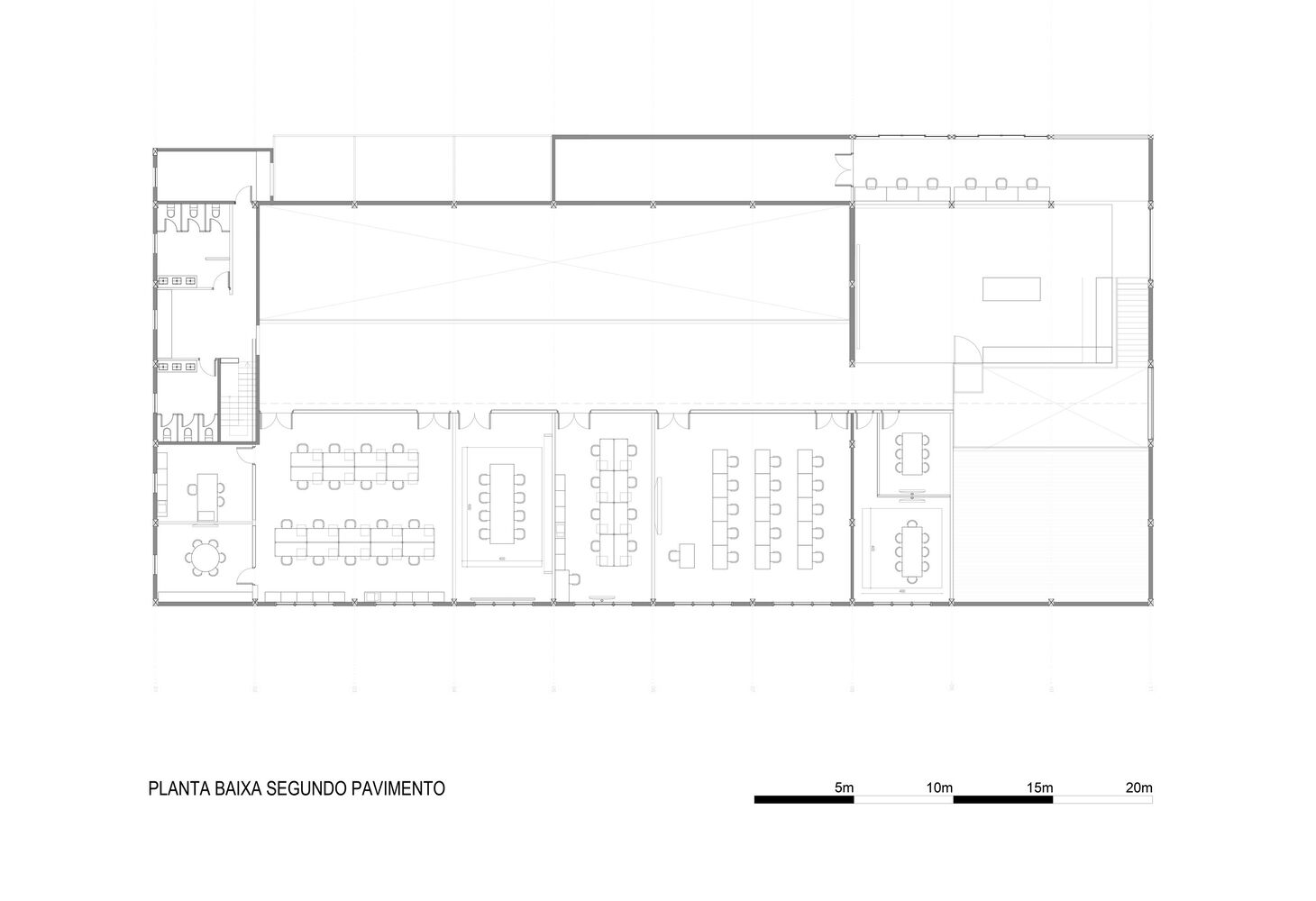
客戶設計要求中的最初建議將工作台布置在大廳現有樓層的位置。因此,該項目是根據將底層用作工作區域的設計要求而開發。然而,第一次來這個地方時,主要的感覺是黑暗和炎熱。因為它的天花板很高,而且開口很少,所以這個空間看起來不受歡迎。因此,我們想到了通過創建夾層來降低房間高度的想法。該結構可容納兩層房間,所有房間均配有窗戶和充足的空調。原樓層的房間向東側連續開口,那裏安裝了熱帶植物花園。在它們上方,夾層房間有東向的窗戶和通向走廊的玻璃隔斷,雙高照明在走廊上延伸。這些環境由充滿植物的起居空間連接起來,並配有色彩繽紛的模塊化家具,這些家具可以根據公司的動態進行變化。兩端安裝了迷你簷篷,鼓勵員工走動。在背景中,與大廳相連,創建了一個設備齊全的餐廳。這些桌子也可以用作非正式的會議空間,就像花園一樣。
最大的會議室中安裝了顯示屏,這不僅體現了建築的功能特征,而且以象征性的方式裝飾了空間。展館的形狀被保留下來,藝術家 Derlon 在一個平麵上畫了一個麵板,描繪了公司的參考信息,例如環保橡膠割膠工 Chico Mendes 的家和棉花收獲。整個工程耗時 10 個月,改造的結果是創造了一個流動、溫馨且充滿活力的空間。該項目由 Integra Studio Arquitetura for Vert 的建築師 Josy Nascimento 和 Mariana Fonyat 執行,包括翻新一座廢棄的工業展館,將行政和產品開發辦公室的安裝轉移到Campo Bom市- 南裏奧格蘭德州。就像運動鞋的生產一樣,作品也是根據公司的理想來塑造。展館必須盡可能保留,避免產生過多的廢物。舊夾層樓等廢棄結構被改造成外部通道和生活區的覆蓋物;受損的屋頂被替換為隔熱瓦,拆除的板材被用作鄰近建築物的覆蓋層;舊木地板已修複;設置公共空間的模塊化沙發采用網球鞋中使用的棉帆布作為軟墊。
∇ 平麵圖





































