Quadro Room在莫斯科Poklonnaya 9住宅區為 Ant Development 開發商完成的項目。公寓麵積為170㎡,具有古典基調又不失現代風格驚豔韻味,整體室內呈現優雅的輕奢格調。擁有大麵積帶有灰泥的白色牆壁和來自最新意大利工廠的家具 。
Quadro Room是位於莫斯科一家擁有多年經驗的室內設計工作室,由創始人Anastasia Roman和Alyona Zlachevsky共同成立。作為工作室的創始人之一,Anastasia Roman憑借多年的設計經驗和優秀的材料知識能力,領導著Quadro Room,解決項目的大大小小問題。而另外一位創始人Alyona Zlachevsky,她則對色彩以及空間的規劃,有著獨到的見解,並且她是一個很有品味的設計師,每個作品都結合了不同時期的風格和背後的曆史。
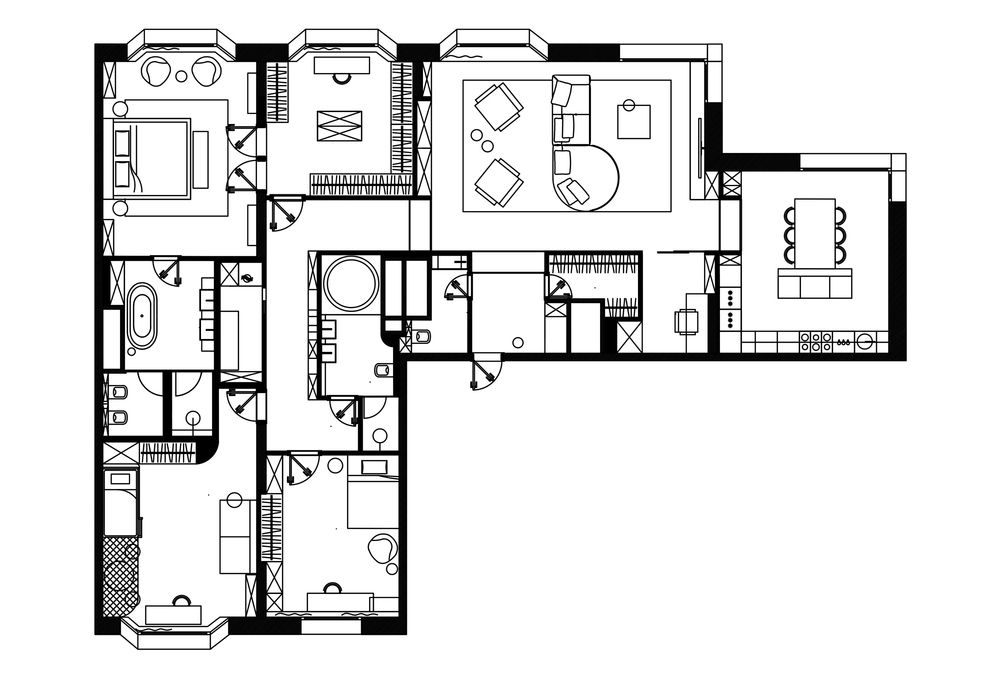
∇ 平麵圖
版權聲明:本站所有文章除投稿授權發布外,其他文字內容均為原創,享有著作權保護,未經許可不得以任何形式進行轉載(包括且不限於:媒體、網站、公眾號等)。所有項目照片/設計圖形版權歸原作者所有。本站部分內容源自網絡公開資源或用戶分享,如若侵犯了原作者的合法權益,可聯係我們進行處理。








































