方宅位於杭州市千島湖樟樹下村,方宅的宅基地是一個8mX12m的矩形地塊,這也是村裏批給方叔叔可以建造的最大範圍。宅基地的位置位於村子靠內部的位置,房子被周圍的三層民居包圍,從房子內部幾乎看不到湖景。由於場地周圍建築體量的遮擋,建築師決定以“內空間建構”的方式設計這一場所,在這個不大的盒子裏設置兩個垂直中庭。在外部看過去的時候,就是一個很簡單的方盒子,所有的開口都是內向性的。
∇ 鳥瞰圖
業主方叔叔原先在杭州工作生活,年級稍大了以後決定回到老家千島湖將老房子推倒重建,同時也方便自己可以贍養老人。因此方叔叔提出了一個重要的訴求:希望得到一個可以多代人同堂的房子。他對房間是這樣設想的:一層要留有兩個房間作為老人房,二層是方叔叔自己的房間和茶室,三層給房子未來的主人:方叔叔的兒子一家人來居住。他認為這個房子裏最好可以得到10個左右的房間,這樣可以讓兒子周末也帶著小孩住在家裏。“家是一家人其樂融融的地方”,方叔叔這樣總是把這句話掛在嘴邊。
∇ 方宅草圖,內部中庭及體積規劃
∇ 方宅模型
宅基地8mX12m是一個原型性的尺度。如何在這樣的空間中分出10個房間,同時兼顧空間的品質感,這是建築師需要仔細思考的一個問題。我們首先設置了在村落民居中最小的房間單元尺度:3mx4m,縱向的12m可以被切分成4m+4m+4m,中間作為可呼吸的中轉客廳;橫向的8m被分成1m5+3.25m+3.25m,將其中錯位的兩個1m5x8m的空間作為一個極小的,但是可呼吸的中庭空間。兩個狹長的中庭形成了這個平麵中最有特點的部分,錯位的中庭建立起空間和空間之間的聯係,中庭是聯係的紐帶,也是氣息的流通,也是人與人溝通的地方。
兩個中庭空間使得房間實際維度不再局限於其僅有的物理尺度,在這個建築中中庭是房間內部空間的延伸。從矩形的房間內部透過落地的取景窗可以將房間向另一個方向延伸出去,人可以在房間內部感知到一個長度有近8m,而寬度隻有1m5的狹長空間,而這種尺度感,在常規的意識中是極難想象的。我們希望整個宅子自身是一個可居、可觀、可遊的內向盒子,既可以被很好的使用和居住,也可以很好的遊曆和觀賞。
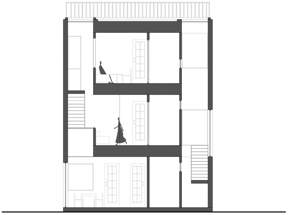
∇ 剖麵圖
∇ 展開模型
兩個狹長的中庭中還集合了所有的交通空間,所有的樓梯都設置為單跑樓梯,人們所有上升的路徑都環繞著兩個垂直的中庭螺旋上升,這樣也使得所有的路徑都是環繞著整個建築的最外邊界來進行的,這也最大化的增加了遊曆的可能性。
“老房子一直是那種直跑樓梯,不是城市中的那種雙跑的樓梯間,我不喜歡那種要轉彎的樓梯,我喜歡你們設計的樓梯,它和老房子裏的一樣。”方叔叔這樣說到。老宅的內部空間中,樓梯也是位於最邊的一跨,雖然新的設計不再是傳統保木結構建築,但樓梯的行進方式、空間的尺度感等等這些,都能真實的喚起業主對老宅的記憶,那些老宅中空間尺度的片段,包含了方叔叔整個童年的成長經曆。
中庭作為一個內空間的盒子,也是一個光與時間的盒子,在這個建築中的兩個中庭分別對應著東西兩個不同的朝向,所以當我們坐在房間內部望向中庭的時候,我們會發現中庭是有“時間”的。我們可以看得到光影的移動和變化,看得到直射光分別在上午和下午在兩個中庭中轉換,可以看到正午的時候光線近乎垂直的洗刷在牆麵上,等等。當我們不經意間抬起頭的時候,還可以看得到天空中雲的移動,亦或是雨水打在玻璃天窗上建起的水花。在這裏一天的時間可以被放緩,“時間”的流淌也正是鄉村生活中的另一種愜意。
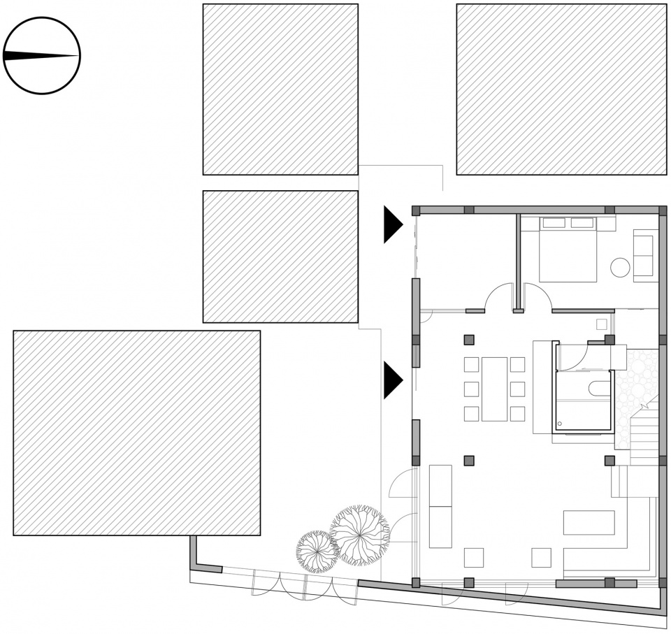
∇ 一層平麵圖
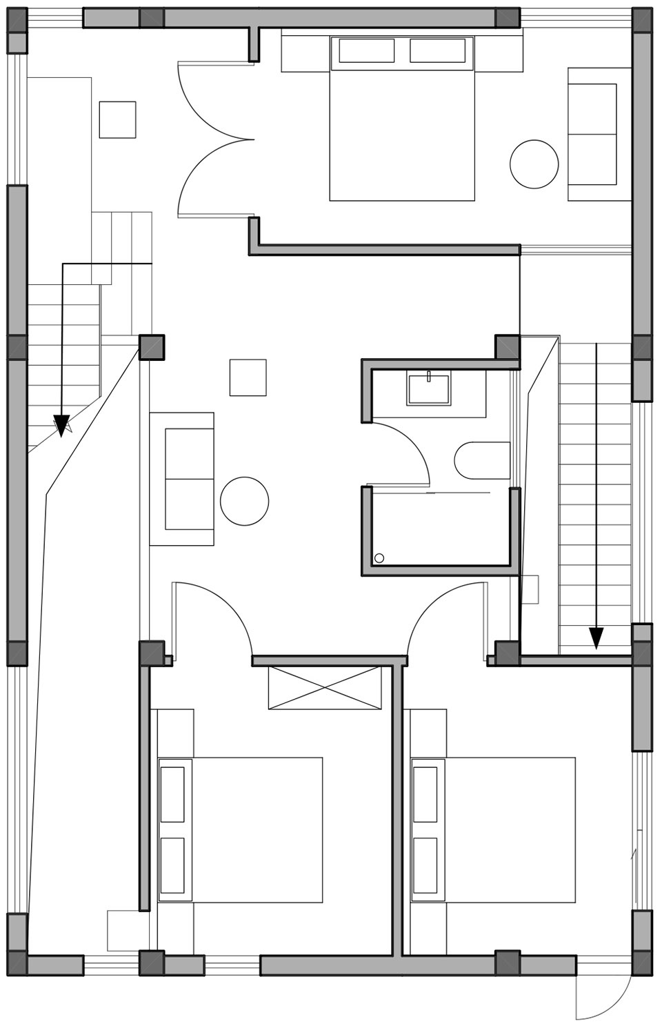
∇ 二層平麵圖
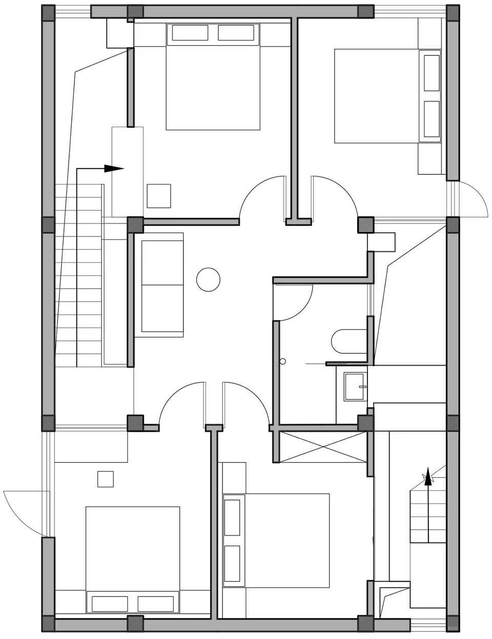
∇ 三層平麵圖
∇ 四層平麵圖
∇ 剖麵圖
項目信息
名稱:“極小天井住宅”——千島湖方宅
設計:田之間建築&植田建築
地點:杭州市淳安縣樟樹下村
主創建築師:方潤武、王明皓
設計團隊:方潤武、王明皓、麻智超、胡毓瀅、郗慧敏、徐大偉、劉成霖(實習)
業主:方叔叔
土建施工:方叔叔自建
時間:2020年09月(設計)-2022年02月(室內完成)
攝影師:方舟
文字:王明皓、方潤武



































