本案位於杭州讚成中心,一座有著方格結構立麵的建築,南麵毗鄰錢塘江畔,吸引了眾多大型國際公司入駐辦公。
This project is located in Hangzhou Zancheng Center, a building with square structure façade. It is adjacent to Qiantang River in the south, attracting many famous international companies to settle in for office.
∇ 項目概覽 ©薛鈺滔 An overview of the project
業主是一家專注於高端服裝設計與麵料研發的公司,隨著業務發展,需要一個全新的空間以展現對於材質和麵料的一直以來的堅持和品牌精神。
The owner is a company founder, who focuses on high-end clothing design and fabric R & D. With the development of business, a new space is needed to show the persistence and brand spirit of materials and fabrics.
∇ 商談會客區 ©薛鈺滔 The meeting area
項目伊始,設計師胡之樂及其設計團隊經過與業主的多次溝通之後,著重考慮的是如何通過空間與色彩來表達服裝精良的布料材質和剪裁。
At the beginning of the project, designer Leo Hu and his design team, after many times of communication with the owner, focused on how to express the excellent fabric material and cutting through space and color.
∇ 材料細節 ©薛鈺滔 The material detail
設計師胡之樂希望使用極簡的線條和裝置對空間進行重塑,設計出一個集展示、會客、辦公於一體的空間。
Leo Hu, the designer, hopes to use simple lines and devices to reshape the space and create a space integrating exhibition, reception and office.
簡單的色塊和使用設計定製材料分隔出的空間,讓大型空間沒有強烈的區域功能感,身處於其中又不會感覺拘束,而是放鬆和自在,這正如擁有高端剪裁材質的服裝給人帶來的舒適穿著感一樣,不會感到拘束,而是超脫一切的舒適自如。
The simple color block and the space are separated by the use of design and customization materials make the large space not have a strong sense of regional function, and the body in it will not feel constrained. To create a space relaxing and comfortable, just like the comfortable wearing feeling brought by the high-end cutting materials. It will not feel constrained, but detached and comfortable.
∇ 走廊 ©薛鈺滔 The corridor
∇ 原始的混凝土立柱 ©薛鈺滔 The original beam
在入口處,選用了白色進行展開,牆壁處也隻選用了最簡單的線條進行裝飾,每一個到訪的人都能在第一次進入空間時感覺極致的純粹,而白色牆麵與投影的搭配,讓入口空間多了現代與專業氣息,也讓入口空間有了不同的視覺層麵。
At the entrance, white is used for development, and only the simplest lines are used for decoration at the wall. Every visitor can feel the extreme purity when entering the space for the first time. The combination of white wall and projection makes the entrance space more modern and professional, and also makes the entrance space have different visual levels.
∇ 入口處 ©薛鈺滔 The entrance
與傳統辦公空間不同,入口處選擇了無前廳無招待的設置,在空間中做減法,能讓整個辦公空間更完整,使用簡單的線條裝飾進行間隔,既有分隔作用,又避免了常規的牆壁間隔,讓空間靈動起來,而線條的裝飾感,又仿佛是服裝上簡單的絎縫裝飾,遠看極具序列感,近看發現是精心巧妙的設計。
Different from the traditional office space, the entrance chooses the setting of no lobby and no entertainment. Subtraction in the space can make the whole office space more complete. Simple line decoration can be used for spacing, which has the function of separation and no rigid wall spacing. It makes the space have more simplicity It seems to be a simple quilting decoration on the clothing, which is orderly from the far view and close to the view Elaborate low-key design.
進入主空間中,一側的落地窗讓整個空間可將錢塘江秀美的江景盡收眼底,空間中使用了極簡的色彩,設計師希望能夠重現舊工業時代的質感與工藝。
Entering the main space, the floor-to-floor window on one side allows the whole space to have a open view of the beautiful Qiantang River. The space only uses simple colors. The designer hopes to reproduce the texture and technology of the old industrial era.
∇ 辦公區 ©薛鈺滔 The office
完全被保留的原始建築中的清水梁架,未經過油漆的紙質板材牆麵以及設計訂製的極細圓角鋁製板材,幾種完全不同的材質和色彩構建出了這個空間的表情,新材料與舊材料的使用,也讓空間碰撞出了一種全新的視覺氛圍,也正如不同麵料在服裝中的使用,拚接出不一樣的搭配。
The use of new and old materials also makes the space collide with a new visual atmosphere, just like the use of different materials in clothing, splicing out various collocations.
∇ 細節 ©薛鈺滔 The detail
作為辦公和展廳雙重屬性,空間的需求被滿足是不可或缺的,最簡單的色彩搭配,為服裝和布料做映襯,而辦公區域也為日常工作提供更多的可能。
As a dual attribute of office and exhibition hall, space needs to be met is indispensable. The simplest color matching is to set off clothing and cloth, and the office area also provides more possibilities for daily work.
布料展廳區域,設計師選擇了最簡單的線條進行組合,空間的視覺是幹淨、簡單、直白,燈光的設計也讓材料和服裝的精致被展現的淋漓盡致。
In the fabric exhibition area, the designer chooses the simplest lines for combination. The vision of the space is clean, simple and straightforward. The design of lighting also makes the delicate materials and clothing displayed incisively and vividly.
∇ 布料展廳區域 ©薛鈺滔 Fabric exhibition hall area
設計師在江景視線區域內,對於區域的功能性做了一個全新的規劃與整合,讓這個區域空間的使用度變得更加自由,沙發、地毯、單人椅,質感與色彩相得益彰,設計師希望每個到來的使用者都能有一種閑適自在的心情,天氣好的時候,向外望去,江上波光粼粼,船隻來往,空間有了更多自然和人文氣息。
In the river view area, the designer has made a new planning and integration for the functionality of the area, making the use of the area space more relaxing. The sofa, carpet, single chair, texture and color complement each other. The designer hopes that every user will have a kind of leisure and comfortable mood. When the weather is good, look out and the river is sparkling. Natural and cultural atmosphere is expresing in the space between ships.
∇ 商談會客區 ©薛鈺滔 The meeting area
空間中的小型的咖啡Box,打破了以往茶水區域單獨於主空間之外,這個嵌入的小型咖啡茶水吧,讓享受一杯咖啡或茶的時間更加放鬆,又為每天工作時間中的下午茶增添了一點日常和趣味感。
The small coffee box in the space breaks the past that the tea area is separate from the main space. The embedded small coffee and tea bar makes the time to enjoy a cup of coffee or tea more relaxed, and adds a little sense of daily life and interest to the afternoon tea in the working time every day.
∇ 茶水咖啡吧 ©薛鈺滔 Coffee bar
簡單的東西往往能夠在細節之處帶給人們更多感受,空間在自帶辨識度的同時亦解決了大環境所帶來的紛雜之感,一個全新的空間正在發揮著它無限的可能。
Simple things can often offer people more feelings in details. While space has its own identification degree, it also solves the complex feelings brought by the environment. A new space is playing its infinite potential.
∇ 室內細節 ©薛鈺滔 The detail
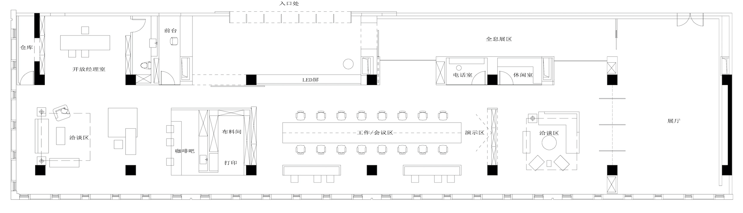
∇ 平麵圖 The plan
∇ 爆炸圖 The explosive view
項目信息
項目名稱 Project: 淩笛辦公空間 LINGDI OFFICE
項目地點 Location:杭州·讚成中心 Zancheng Center
竣工時間 Complete:2020
項目類型 Type:辦公/展廳 Office/Exhibition hall
項目麵積 Area:800平方
業主單位 Client:淩笛Lingdi
設計單位 Design company:萬境設計 WJ Design
主創設計 Design director:胡之樂Leo HU
設計團隊 Team: 金旻/楊麗蓮/林潤澤Jimmy JIN/Lilian YANG/ Runze LIN
施工團隊Construction:伍匠Uhjoh
多媒體影像Mutimedia:三臻科技 Sanzhen Tech
家俱 Furniture:Enjoyspace
燈光 Lignting:全晟照明 Huah
攝影 Photogranph:薛鈺滔Yutao Xue
撰文 Text:Lucie
































