建物為35年的四層住宅建築,位在住宅連棟小區內。
“流動”概念落實人的使用與自然感受,多樣化且流動的空間能增進交流及信息交換,並因應工作型態或用戶切換場域狀態。大麵開窗引光搭配植樹減少熱能,天窗並挑空讓光垂直貫穿也自由流動,隨時間感受不同的光環境與外部視野,身處室內亦能體驗外部自然變化。
以往空間的創作需先以program為主,空間與型跟隨機能安排。此案顛覆此原則,讓空間概念及場所精神先行,期待各種預期及預期外的行為事件發生。此邏輯來自自然中沒有任何固定場所或固定機能的空間,當人走進自然,空間與機能自然形成,離開後,形式與機能又隨即消逝。此種變化展示自然空間的高度可能性,故藉由放下機能,創造空間的流動特質,以引發各種設計創作的可能與想象。
將山林印象植入空間,以抽象具象手法模擬自然生態,實現在室內感受自然。
Impressions of the forest are brought in to simulate ecology in an abstract way for feeling of nature.
以天井還原室外環境,並與藝術家合作將台灣山林的印象搬入室內,將沉木、岩石、各種台灣原生種的山野植物組合,透過視覺、聽覺、嗅覺讓室內與室外的界線更模糊。柱體跟櫃體的錯落序列表現山中樹木的有機、不規則的茶亭量體模擬石塊、木板呈現的山棱線,將森林中的既視感,以抽象跟具象的方式表現,再以大量垂直線條製衡有機曲線,平衡過於粗曠浪漫的山林野性。
在新舊之間取得平衡,展現經時間催化的美感,期待空間與行為如同自然生態般可生長、擴張、流動,在使用及空間特質上更接近自然的狀態。
藉改造物理環境打破連棟長屋的環境限製,創造多樣性與流動性的空間。
Reset the physical layout to transform the constraints of townhouses for more fluidity in the space.
融會運用事務所主張的自然設計手法:微氣候、孔隙、打開、自由、流動、引入自然,呼應事務所的設計理想,即藉由物理環境的改造、導入台灣性的材料與自然手法,創造出高度流動、多樣化與多種可能性的生活/工作空間。並順應老屋特有的凝結時間的特性,在對象、設計與留白中創造時間感氛圍。
將具在地時代性格的材料以新創工法融入老建築,體現老屋新生的時間感。
In a novel approach, materials of old Taiwan are integrated into the building, making it timeless.
用許多具在地舊有的材料體現台灣老屋本質,以台灣沿海建築外牆時常摻和貝類為靈感,選用牡蠣殼作為基底的塗料,致敬就地取材的精神;選用透光的玉石作為磨石子地板的石種,讓地板隨著時間與光線的暗化呈現不同樣貌。
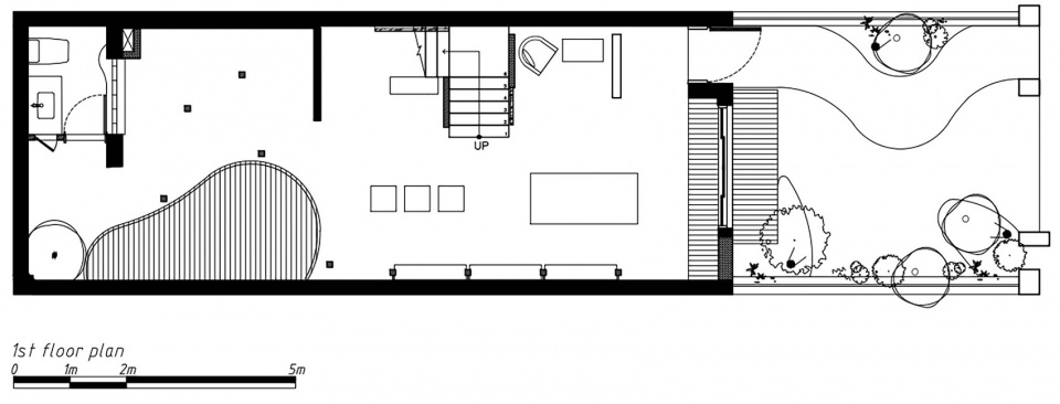
∇ 一層平麵圖
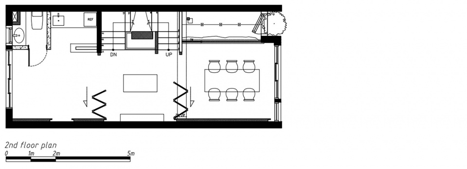
∇ 二層平麵圖
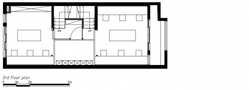
∇ 三層平麵圖
∇ 四層平麵圖
項目信息
項目名稱: 自然形成,合風蒼飛2.0
設計公司: 合風蒼飛設計有限公司
完成時間: 2021
建築麵積: 223m2
項目地址: 台中市,台灣,中國
功能: 辦公室;展覽空間
主創建築師: 張育睿
參與設計師:吳家勳
攝影版權: Hey! Cheese





































