靜謐之家,沉浸本真
我相信有情感的建築,“建築”的生命確實是他的美,這對人類是非常重要的。對一個問題假如有許多解決方法,其中的那種給使用者傳達美和感情的確實是建築。——路易斯·巴拉幹
時光的齒輪在日以繼夜的流轉穿梭,荏苒的歲月留住設計師對生活痕跡的把握。設計師為忙碌於都市的人們設計了無數個家,優質定製的作品給予人們純真心靈灌溉。那麼,設計師會給自己設計一個怎樣的家?
居住在繁華都市的人們,站在人潮洶湧中麵目全非。好像我們是如此相似,又各有不同的人生,相互交彙卻失之交臂。縱使擁有多種多樣的生活,而回歸各自居住空間洗淨鉛華才是真實的自己。
如果建築是城市的個體,室內空間就是設計師內心的映射。設計師將空間功能用不同材質分割,各功能相對獨立又完美融合,使整個室內空間沉穩大氣,質樸自然。
沙發背景牆是暗色的木,下午溫暖的陽光透過窗戶,洋洋灑灑,讓牆麵有了溫和的質地。水墨畫的屏風經夕陽的餘暉有了不一樣的感官平衡,在整個暗色空間有些許的暖,賦予了城市冷漠表象下溫柔內心的完美詮釋。
整個空間材質的選擇遵循功能和搭配的和諧共處,天花的微水泥質感充滿靜默的能量,深灰色的地磚、充滿質感的木飾麵背景牆,以及白色的烤漆電視櫃各自獨立,卻又形成整體畫麵感。空間格調平衡和諧,運用簡約、返璞歸真的設計手法,在空間中仿若看到時光靜默地流淌,回歸生活的最初的純粹。
餐桌是大塊岩板,與開放式廚房的台麵連成整體,相互融合卻又各自承載不同的功能,談笑有鴻儒和柴米油鹽的功能好像相互獨立,卻又相依。皮質可調節高度的燈具在餐廳中相映成輝,餐廳中銅色的鋼板和客廳的山水畫屏風如時光的斑駁溫暖印記,既特別又形成一致性,讓居住者夢想與生活和諧交織,共生共存。
靜謐空間
臥室本質是精神和意誌的歸屬,空間大量的留白,給人一種靜謐的安定感,卸下喧囂都市的浮華,返璞歸真,留給歇息的時候身心適當放空,留給瞎想期間些許空白。
飄窗做了一整條木飾麵抽屜的台麵,完美的儲物功能和材質搭配,形式追隨功能。保留不被打擾的創意空間,豐富了功能的同時提升了居住的美感。
次臥的設計,設計手法表現了簡潔和留白的意境,同時通過天花斜頂的設計完美包攬了天花反梁效果,形成了舒適的美學體驗和濃重的藝術氛圍。木飾麵的護牆板與寫字台連成一體,空間功能動線合理交織且獨立,自然光與影安靜地描寫材質肌理。
兒童房有限的空間裏功能一應俱全。寬大的寫字台麵為兒童描繪未來的藍圖。窗戶自然的光線灑在木飾台麵上,簡單不失大氣的設計符合人體工程學。木飾麵的榻榻米與護牆板以及桌麵材質整體統一,轉角磨圓的設計,木飾麵安定的質感,給兒童房加了安全的濾鏡。
衛生間設計足夠的儲物空間,簡約的大理石材質,給人以一種簡約大氣的空間感,鏡子延伸營造空間的通透感。設計師每一筆的精心雕琢,逐步描繪了一幅時尚簡約、安靜質樸的畫麵。
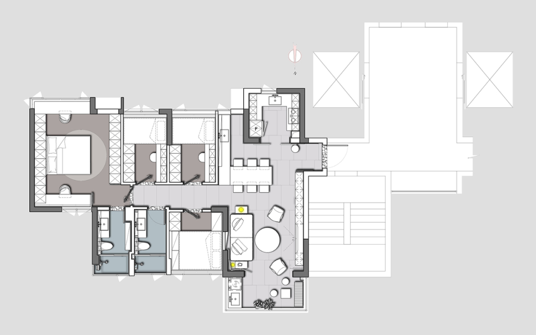
∇ 平麵圖
項目信息
項目名稱|水榭春天
項目地點|中國 深圳
室內設計|木子仁
設計總監|李濤
項目攝影|大斌
部分品牌|WHYGARDEN、FLOS、LUMINA DAPHINE

































