初識 | 興衰後的時代遺存
經曆了我國十幾年間的“撤點並校”政策後,鄉村小學數量急劇減少,並湧現了大量的閑置校園及資產,建築空間的浪費遂成了問題。作為時代特殊價值語境下的空間,村小籌融了過往的許多記憶與憧憬,不應淪為價值凹地繼續荒廢下去,抑或隨著歲月的流逝將舊址夷為平地,徹底抹除它的時代印記。如何在現代社會的場域中,重新思考此類建築的發展方向及自身定位,為其賦予新的身份,並探索環境、建築和人共構的方式,是當下研究城鄉更新的一個重要課題。
∇ 改造前的廢棄村小
沙金小學,位於重慶市渝北區沙金村(現兩江協同創新區),建於上世紀80年代末,作為曾經的鄉村小學,廢棄於21世紀初,現今行政劃分納入兩江新區範圍。初訪這片場地時,雜草叢生,滿目凋敝,猶如一位風塵仆仆、衣著陳舊的耄耋老者,卻已是棄置許久。幾十年前稚嫩的朗朗讀書聲與此時此景的蕭肅赫然對比於眼前,老房子變成了落後破敗的象征,被賦予一種自卑的情緒,似與現代社會“格格不入”。
原建築主體為三層磚混結構,矩形平麵布局,南北長39.6m,東西寬8m,各層層高均為3.6m,外連兩層附屬用房,整體為中軸對稱布局,麵貼黃色瓷磚,內部可容納8間教室。現今在重慶兩江協同創新區的上位規劃背景下,明月湖片區規劃計劃將其改造作為抗戰大後方高校內遷館及配套公共服務空間。通過此次更新的契機,我們希望充分依托場地背山環水的優越生態,將自然和文化元素融入到設計之中,置換單調廢置的功能空間和打破呆板對稱的建築形式,在這個承載記憶的文化容器中創造出疊合、開放、多元的複合型空間,一方麵來滿足人們在身體和精神兩方麵恢複活力的需求,另一方麵提升片區的文化傳播力,從而帶動兩江協同創新區的整體發展。
期待著,在此處,一種久違了的鄉村公共空間形式被構想和呈現……
∇ 整體軸測圖
回應 | 與自然的詩意共鳴
小學位於明月湖畔的一片林靜山幽之地,三麵環水,背靠群山。場地的東、西及北側均為臨湖麵,擁有開闊的湖景視線。場地西南側新置入了一個遊船碼頭,晨光初露,泛舟搖曳其中,湖麵微波蕩漾,再現了中國古代文人山水畫悠遠的意境。除由湖而來,亦可驅車經沿湖公路行至場地南側,順著一條蜿蜒小路向前即可看到場地的入口,四周高大的常綠喬木與湖麵圍合出一片不規則的區域。麵對這樣詩意的自然場地特征,我們希望采用謙遜的場地處理策略,因地製宜,順勢而為,使改造更新後的空間與原有自然生態產生共鳴,從而將建築與場地、自然、城市有機的聯係在一起。
首先在東側整個這一塊場地中,利用原來的操場形成上下兩個台地的關係,置入坡道連接兩者,上部的平台與建築主入口相連接,而下部的平台則有良好的休閑氛圍和濱水開闊的視野,作為市民公共開放活動的場地的同時,補足原有建築親水性不強的問題。其次,因場地中原建築所在的高台與水岸線存在約6.6米的高差,我們在建築西側引入五個交錯疊合的觀景平台來連接高低兩處地勢,一方麵強化它們之間的對話關係,讓建築自然地順應地形條件;另一方麵將人的視線進行層次化導向處理,營造過渡式的公共漫遊體驗。
在場地景觀設計的思考中,設計團隊希望秉持自然恢複、生態修複的觀念,尊重原生環境,在保留場地原有地貌前提下,經過合理且有節製的設計,表達出場地自身獨特的韻味與意境。設計初,對場地西北半島大片的竹林,大樹,以及場地東側靠水岸線的一排樹群決定進行全部保留。在場地植物的選擇上,盡量采用原生態的、富有野趣的草木,自然生態的蘆葦、芭茅,為空間增添明快鮮活的色調,低矮的灌木叢隱在林間,輔以清新素雅的再力花,唐菖蒲,水生美人蕉,旱傘草,梭魚草等植物作點綴,塑造了成片的適合水岸生長、帶有野趣的移步易景的關係。用詩意的方式回應環境中層疊的文化印記,以期將此處打造為曲徑通幽,野趣與禪意並存的靜雅之地,從而煥發新的活力。
新舊 | 時間的凝固與流動
原建築主體為三層磚混結構的,形式呆板對稱,質量等級較差,需針對許多結構的薄弱環節進行有效加固。建築師選擇采用“輕介入”的結構策略,協調新舊結構之間關係,打破呆板對稱感,豐富建築空間形式,與新植入功能的氣質相匹配。具體做法是——在兩側脫開外牆800mm進行新加入的鋼結構基礎開挖,搭建形成一套新的“門”形框架鋼結構體係,使其既與原有體量相互搭接融合一體,實際又獨立承受荷載,不幹擾原有結構。
新置入的鋼結構體係,不僅滿足了新增樓梯、平台、衛生間等功能性需求,同時也為外立麵的形態表達提供了多種可能。為了提升展覽館入口一側空間界麵的豐富性並滿足遮風避雨的需求,在東側入口上的屋頂增加連續折麵的坡屋頂,形成入口展廊灰空間,增加進入空間儀式感的同時,柔化了原本建築麵向公共開敞區域生硬的室內外邊界。
此外,建築師引入木色的“竹鋼”包裹在被改造建築的四周,作為構造材料和裝飾材料,來進行塊與麵的組合,和原主體劃分出清晰的層次。改造後的建築空間,既是承載時間的容器,又是過去與當代之間的錨點,時間的凝固與流動,記憶的重現與延續,交彙定格在此處。
借景 | 回歸日常的趣味
“建築物不是物的製造,而是沿著日常生活去創造事件,把人連接起來”。改造後的建築,妄圖脫離於宏大敘事的主題,在細微之處體現日常的趣味,目的是與到訪者產生知覺和視覺上的微妙連接。將借景應用於建築中,是本次設計中一條重要的思考脈絡。
位於場地東側的入口處有一條約1.5米寬30米長的坡道,連接了上下兩塊有高差的台地,在坡道的末端則保留了原場地的一棵遒勁挺拔的古樹,與岸邊的一排構樹群形成互望對景之勢。同時站在室內二層的樓梯平台上亦可直接看到建築入口處的景觀布置,形成看與被看的關係。建築的內部空間則是采用了遠借的手法,在室內向外眺望,感受“無數峰巒遠近間”。移步換景,舉目皆景。
為打破原有呆板對稱的空間形式,並豐富天際輪廓,在建築的三層嵌入錯落有致、富有節奏變化的木質坡屋頂盒子,既是對傳統形製的致敬,又是抽象之後的創新形態。而頂部體量的表皮采用了虛實相間的朦朧化處理手法,木格柵和玻璃幕牆作為新的材料增強建築的虛實對比,未被覆蓋的部分剔除原有瓷磚使用黃灰色抹灰替換,保留原有建築記憶的同時增加表皮質感。
文脈 | 場所精神的延續
改造設計的基本思路是從保留其獨特而內在的特性出發,激發場所特質,並運用多種手法以達到新舊交融的目的,實現空間與曆史的對話。
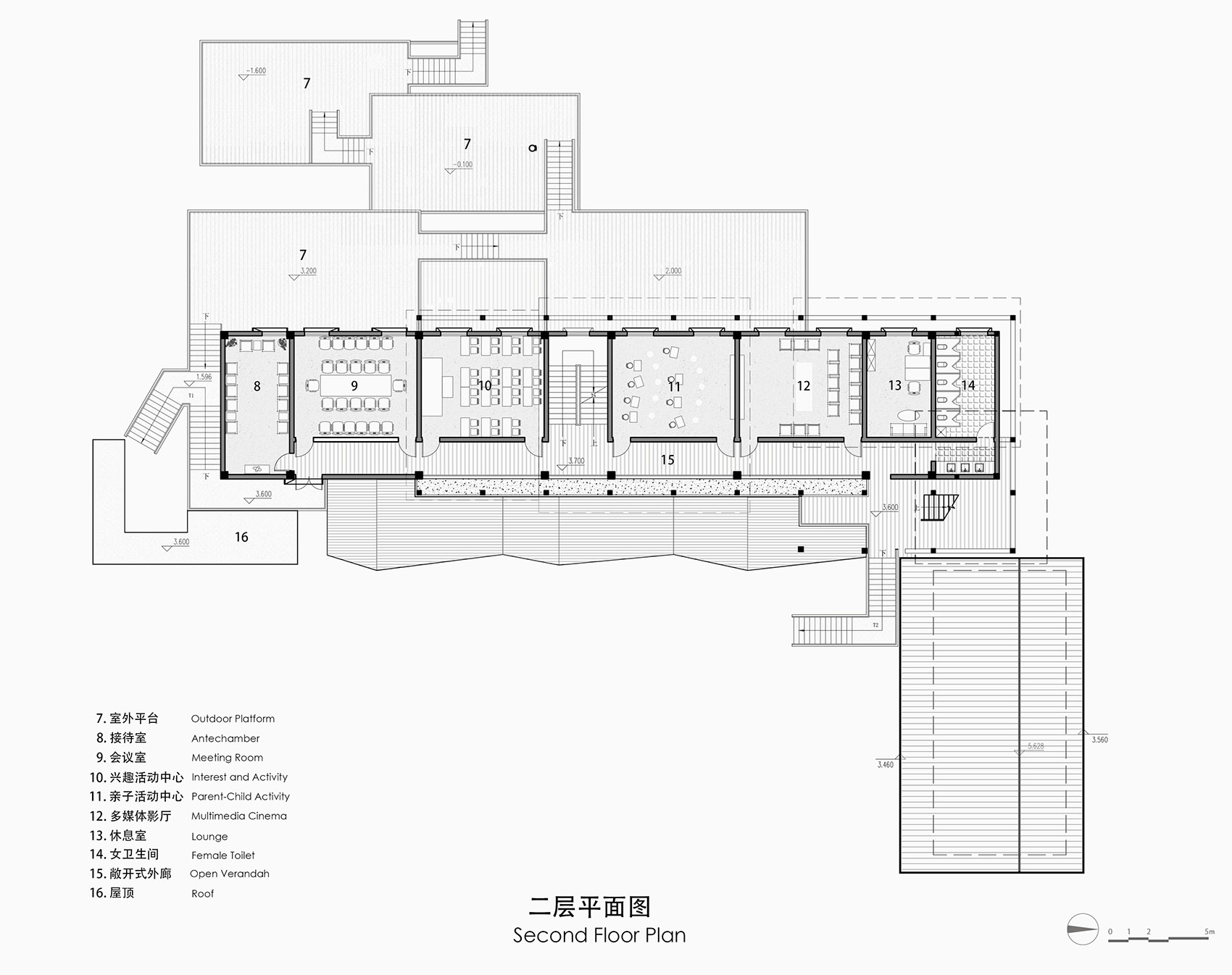
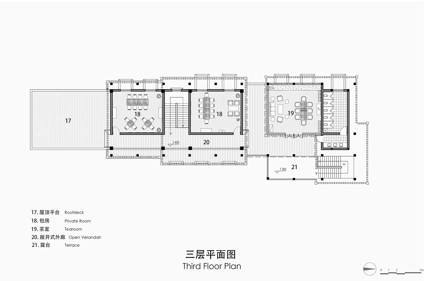
現一層空間承擔了文化曆史信息的傳播功能,到訪者可以在此處了解到抗戰時期高校西遷的史實,這是過往曆史與當下空間的碰撞,也是鄉村小學教育功能的另一種延續,加強了場地的曆史疊合感和空間豐富度。建築的二層利用原有教室的寬大空間,作為青少年培訓、文化藝術講堂和多媒體會議室等具有參與性的功能空間。建築三層則是茶室和小型會議室,把當下空間與參觀者的需求結合起來。
原沙金小學隻有中部的一個豎向樓梯,無法滿足現有疏散和功能要求。因此我們在建築南北兩側的放大節點處置入鋼結構樓梯,為到訪者提供清晰的視線引導,使其與疊級的平台、原有建築交通體形成立體漫遊路徑,從而實現豎向設計上的自由流動。另外,在北側破損嚴重的原有廁所、廚房基址上進行了拆除重建,置入一個出挑的、視線通透的全景咖啡廳,滿足了參觀者或遊客休憩放鬆等多樣化的需求,也讓這樣一個看似嚴謹的教育基地,業態更豐富多元,更富有生機與吸引力。
閑置廢棄的沙金小學,曾經是鄉村中孩子們的基礎教育設施,改造後則作為麵向重慶市民宣傳抗戰時期大後方高校內遷那段波瀾壯闊曆史的展覽館。從原有的鄉村教育功能到當下的曆史展陳教育,這不僅是功能的置換,空間的複興,更是一種文脈的傳承,是空間場所精神的延續。
展望 | 村小的現代性探索
鄉村小學充分利用其良好的改造條件重煥新麵,取得最終成效的不僅是既有建築的更新層麵,更對未來城鄉發展的思考,文化的保護與傳承、傳統技藝的營造、地域文化自信的建立、鄉土生活的激活都是超越建築物質空間本身而具有獨特作用的。這些年在理論方麵不斷的探索思辨和對設計手法的整理歸納,以及過往改造更新項目建成後的反饋,為我們提供了新一輪討論與反思的空間。鄉村小學的改造最終不能遺忘的是過去空間的公共屬性,服務的本體依舊是人,建築師在設計過程中的一係列的探索與嚐試均當以“保護”為前提,這是不變的。
希望未來通過建築師們微薄的努力,去展現這個時代下鄉村小學煥然一新的麵孔。教育阻斷貧困代際遺傳,是改變鄉村的起點,而建築師的介入是重新譜寫鄉村基因的密碼的關鍵。實體空間的留存是對過去歲月的凝望和紀念,而記憶空間中留存的是山的味道,風的味道,陽光的味道,也是時間的味道,人情的味道。
∇ 總平麵圖
∇ 一層平麵圖
∇ 二層平麵圖
∇ 三層平麵圖
項目信息
項目名稱:明月坊——沙金小學改造方案
項目類型:既有建築改造與更新
項目地址:重慶市兩江協同創新區明月湖
建築麵積:1450㎡
項目設計:2020.01–2020.04
完成年份:2021.05
設計單位:重慶悅集建築設計事務所
主持建築師:田琦 何飆 李駿
設計團隊:宛良清 郭劍 劉旭 翁鈺展 孫婧 魯澤希
結構專業:王立彬 劉鵬
給排水專業:王月冬
電氣專業:陳衛
暖通專業:吳猛
施工圖合作單位:重慶何方城市規劃設計有限公司
業主方:兩江協同創新區建設投資發展有限公司
建設單位:重慶兩江新區市政景觀建設有限公司
攝影版權:三棱鏡建築空間攝影,田琦









































