項目介紹
優質教育資源和住宅銷售的結合已成為新城開發的一股力量,而成都外國語學校仁壽校區則是這種模式下的典型案例。該校區由開發商和成實外集團組成聯合體共同經營,項目總用地約200畝,呈規則的矩形,東西長南北短,分為幼兒園、小學、初中、高中四大塊以及教師公寓等公共設施。有趣的是,資本需求和提高複合使用是等價的兩件事,這也符合未來學校發展的一個方向。現代教育對學校建築設計提出了多方麵的要求,其中最重要的是以學生的活動為中心,形成高密度、複合、多路徑、多平台、模糊的空間背景。
∇ 不同階段的總圖
內觀和局部
當我們思考如何體現設計以人為本,應該更多地從內觀和局部兩個角度出發,這樣的理念能夠更加貼近人的需求和使用習慣。同時,內觀和局部並不意味著放棄對建築外部的控製,而是需要建築師在不同的設計階段不斷切換思考角度,以更好地平衡內外控製之間的關係。在成都外國語學校仁壽校區項目中,“內觀和局部”成為了設計的思考手段。在確定大體功能區域之後,建築師從內部空間設計出發,形成建築界麵,同時通過控製界麵的基本連續來完成不同功能區域之間的關係。這樣的設計理念讓建築整體的控製性變弱,而局部關係相對而言變得更加活躍和主動,增強了學生們的空間感知和體驗。
空間的不均質
相比於強調整體的建築設計,局部的豐富和多樣性更能夠激發學生們的創造力和想象力,讓他們在這個空間裏充滿樂趣和探索的機會。因此,在成都外國語學校仁壽校區的設計中,建築師們強調了不均勻的空間營造,打破了單調的空間氛圍,讓學生們在探索校園時充滿意外驚喜。
組團和連接
校園以組團為單位,但彼此之間連接較弱。其中,中央綠軸和兩個入口廣場是比較顯著的空間特征。高中部和幼兒園位於基地西側,初中和小學位於東側,整個規劃係統呈現出“弱”控製特點,以期形成一個多變、自由、豐富的校園。畢竟,這是孩子有可能在此生活學習多年的地方,單一均質的空間表達,缺乏變化的校園顯然不符合人文主義的處理方式。
內部視角決定了空間的高密度和明確核心這兩個要素,這兩者的形式表達應該是疏密有致。高密度是交流的基礎,而明確的核心是集會的前提。設計的出發點是從教室單元開始的。我們更偏愛口字形的空間布局,因此在可能的情況下,盡可能將教室布置成南北兩棟。這種設計不僅使建築物明顯有了一個核心,同時避免了增加一排教室所需的25米間距的空間成本,從而使口字形的內院擁有更多空間來營造空間感。
各部功能塊之間的聯係成為設計產生活力的場所,同時也是空間轉換的節點。連接初中小學和食堂的上層連廊,以掛在主題外的敞開樓梯為核心的高中部灰空間都是學校內空間熱點。
學校和城市
這個高密度的綜合體在立麵上呈現出非凡的表情,使得學校具有更多的公共性和自由性,不再是傳統學校建築的印象。學校位於城市主幹道的西側,自然承擔了學校以外的城市功能。設計通過連續的頂棚形成一個灰空間,將藝術與體育樓的劇場和教學樓的門廳空間融為一體,形成強烈的虛實對比。頂棚上方深深凸出的教師會議室成為突顯建築特色的核心元素。簡潔的設計使立麵避免了傳統校園建築由於教室單元的限製而形成的同質化和小尺度的表情,展現了大尺度和強烈虛實對比的文化建築風格。
平台與活動
無處不在的平台設計是仁壽校區的一大特點。這種設計不僅體現了建築師對於戶外活動空間的追求,同時也為學生們提供了更多的機會去鍛煉溝通能力和團隊協作能力。這兩種能力是目前中國學生最缺乏的,而隻有在戶外玩耍的時候才能夠得到更好的發展。然而,目前大部分學校管理者過分注重安全,卻忽略了學生的自由活動。如果把學生都關在教室裏,即便看再多的書,也不會產生社會關係。
高中教學樓南樓的一到三層是雙跨結構,其中北跨挑空成為下麵三層使用的共享空間。四、五層時,南跨退成露台,北跨成為教室,南側露台成為上兩層學生的極佳戶外活動場地。通過這種設計,整個建築的尺度也更加宜人,與南側商業取得了更好的城市關係。
小學部南側教學樓采用了相似的策略,上部空間形成了較大的活動平台。這也為建築注入了更多力量和美感。
高中門廳
高中部門廳是一個透空兩層高的空間,直接麵向開闊的入口廣場。大廳正對是一堵均布小孔的背景牆,透過牆可以隱隱看到內部走動的人。這堵牆和大廳之間是一個向上延伸的夾縫空間,一方麵增加了大廳空間深度,另一方麵也成為了大廳的采光口(同時也是新規範後必須要有的排煙口)。大廳一側是一個通向二層的大樓梯,是整個大廳的空間中心。
教室外的小陽台
教室外的小陽台不僅僅是學生課間的戶外活動場地,更是每個班級的生活陽台。它方便了學生日常的使用,同時也有助於培養學生的責任心和衛生習慣。此外,這些陽台還可以用來種植植物、養花等,讓學生們更加親近大自然。而在日常使用中,學生們需要注意陽台的衛生和整潔,這也為他們養成良好的衛生習慣提供了機會。拖把等一些衛生設施也布置在陽台上,讓教室內部獲得更好的衛生條件。
麵向操場的大看台
巨大的看台不僅僅是運動會的需要,它還是學校教育空間和運動空間聯係的必需品,能夠讓學生們自然地走出室內,並享受戶外活動的樂趣。這個大看台不是儀式性的,空間形態上也不是像正式的體育場一樣均勻的台階。相反,它更加具有休閑和趣味性。建築師在看台上麵局部放大了平台、樹木和花壇,讓大型看台呈現出一個台地的景觀處理,而不是單純的功能性連接。由於它靠近教學區,即使沒有人在球場活動,學生們也可以在這裏坐下來,欣賞遠處的景色。總體而言,這個看台設計輕鬆自然,本質上更像是學校的開放式台階廣場。
造價和材料
這是一個開發商運營的項目,因此成本控製非常重要。最終,該項目的綜合單價不到4000元/平方米。整個建築的外牆材料采用的是軟瓷貼麵,這是一種軟性輕質的外牆材料。考慮到造價低廉和可用性的限製,學校在外牆材料方麵的選擇相對有限,通常隻能選擇塗料或真石漆。然而,由於保溫層的緣故,麵磚粘貼不牢容易脫落並造成傷害,因此被許多地方政府禁止使用。塗料不夠耐久,真石漆對施工要求較高,因此軟瓷貼麵成為了一個很好的解決方案。由於這些材料是在工廠預製的,所以它們的穩定性相對較高。同時,外貼的施工工藝也決定了最終效果比現場製作的真石漆更平整。
軟瓷麵層有許多種肌理可供選擇,而仁壽成外項目則采用了仿洞石的效果。通過兩種不同顏色和規格的拚貼方式,最終整個建築的材料質感體現出了不錯的品質。
結語
仁壽成外校區已經建成並投入使用。成實外集團反饋稱這是目前集團所有學校中最出色的一個,而在仁壽當地也引起了很大反響。這充分展示了建築學的意義:不斷突破傳統、創新,不讓習慣成為規則,深刻了解教育的本質,提供促使人活動的場所,鼓勵交流,讓體驗更加豐富。建築師總是有著追求形而上的本能,但是“以人為本”不僅是一句口號,也是可以實質性在設計各個層級得到貫徹的。
∇ 總平麵圖
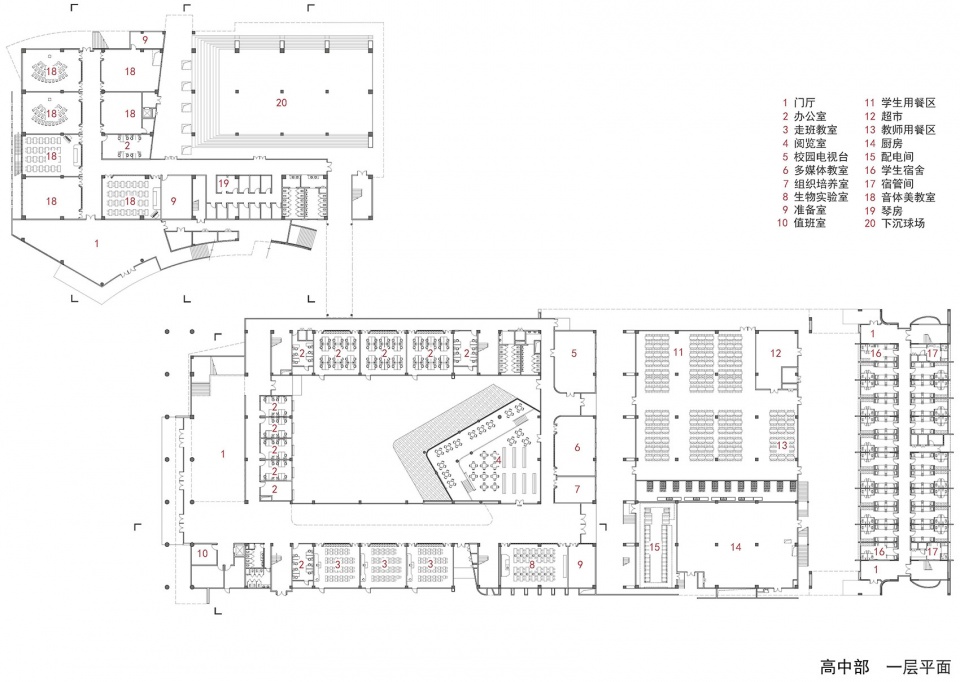
∇ 高中一層平麵圖
∇ 小學一層平麵圖
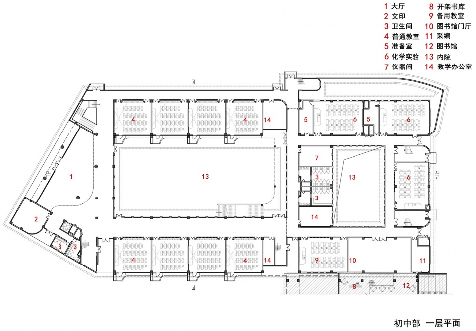
∇ 初中一層平麵圖
項目信息
項目名稱:成都外國語學校仁壽校區
項目類型:教育建築
設計方:江蘇中銳華東建築設計研究院有限公司 榮朝暉工作室
項目設計:2019-2020
完成年份:2022
設計團隊:榮朝暉,王雪豐,王愷成,王之昊,陳楊帆,繆家棟
項目地址:四川眉山
建築麵積:155047㎡
攝影版權:存在建築
合作方:施工圖設計:四川時代建築設計有限公司 建設單位:四川中威建築工程有限公司
客戶:四川禦尊源實業有限公司
材料:軟瓷
品牌:宜賓博納維爾新材料有限公司















































