福強小學是深圳規劃局發起的“福田新校園行動計劃_8+1建築聯展”延伸版塊中的一所,嚐試探索促發創新教育的校園類型。學習層台支持創新學習模式,使擴建後的深圳福強小學能滿足深圳對創造性人才和創新驅動能力日益增長的需求,適應深圳經濟的快速發展。
為了激發師生的探索熱情和好奇心,學校圍繞“混合空間”的理念進行設計。不同的課程與活動在空間層麵上並置在一起,提供跨層的新聯係,例如:標準教室、特色教室與運動場相鄰,支持跨學科的互動;一層圖書館讀書的學生可以看到地下一層報告廳的表演和羽毛球場的體育課。空間作為“第三老師”,在學生的教育過程中起到重要的作用。
∇ 設計推演
∇ 多空間的連通關係
∇ 分解軸測圖
多樣的空間使得師生能夠根據不同的年齡和興趣,靈活的開展教學體驗活動。大尺度的屋頂花園、中尺度的內院、和小尺度的天台都是不同的戶外學習空間,可以滿足不同規模的學習需求。寬敞走廊與可坐大台階也被用作非正式學習空間,容納不同的課程與活動。建築立麵窗洞內置座位區域,提供了一個安靜私密的角落,當學生在此區域休息時,不同活動類型構建出向城市展示的生動校園形象。
設計提供與真實世界聯係的機會,將學習與現實生活體驗聯係起來,協助學生學習。室內外空間相互連通,可作為一個完整的學習空間,使得學生的學習環境能夠與室外保持聯係;自然植物也融入校園,以水平或垂直的形式分布在整個校園,使學生能夠充分接觸自然,並從中學習。
∇ 走廊立麵窗洞示意
強調動作、體驗,和表現力的創新學習在北側架空的懸挑玻璃教室中發生,音樂表演、藝術創作和舞蹈等活動,在校園其他地方都可以很容易地看到、欣賞。同時這些架空的透明教室麵向北側的城市主要道路,向城市傳達出學校的創造性特征。
擴建後的校園是原來的兩倍,使更多的孩子能夠接受高質量的教育與創新學習。學習層台將舊的學校建築,原有的STEAM大樓,新的教育建築與設施融為一體。福強小學的原有校園作為優秀教育遺產被保留下來,且得到了升級,以滿足創新一代的要求。
∇ 總平麵圖
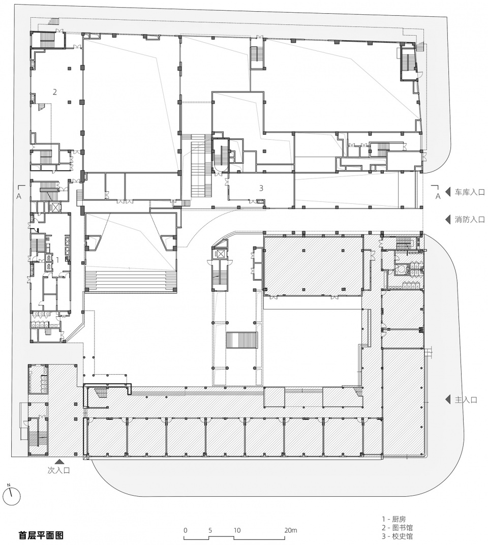
∇ 一層平麵圖
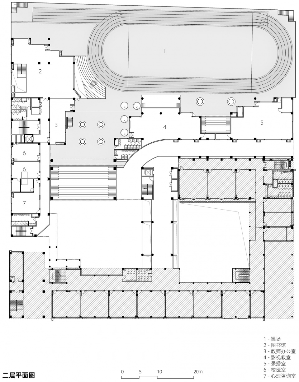
∇ 二層平麵圖
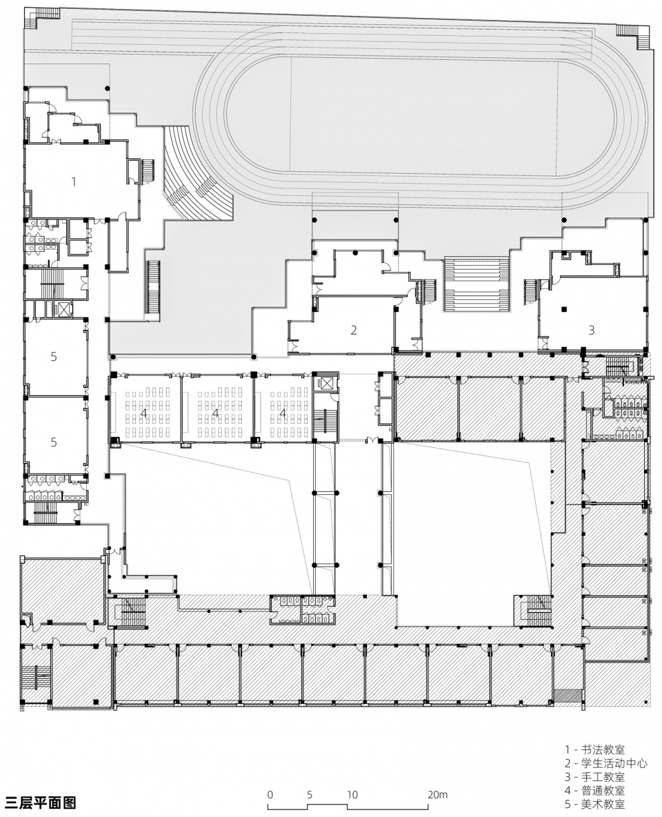
∇ 三層平麵圖
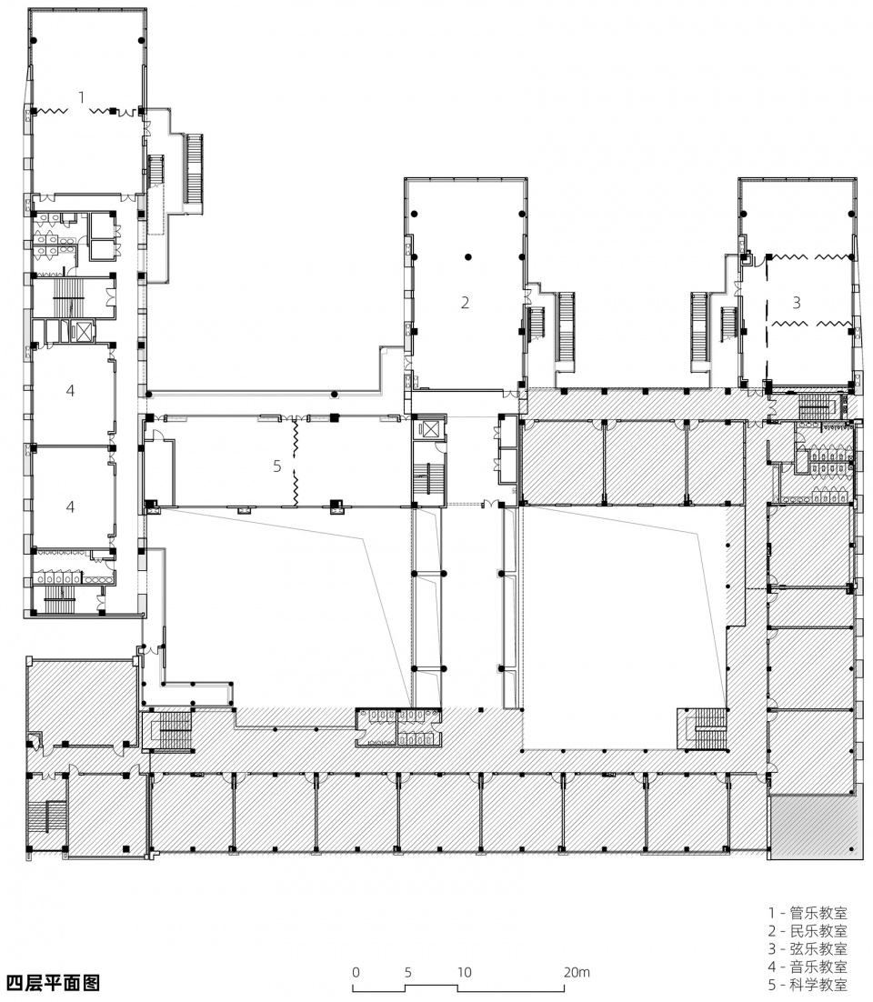
∇ 四層平麵圖
∇ 五層平麵圖
∇ 立麵圖
項目信息
客戶:深圳市福強小學
建築&景觀設計:眾建築
代建單位:深圳市建築科學研究院股份有限公司
地點:深圳市福田區
設計主持:何哲,沈海恩(James Shen),臧峰
項目負責:李正華
項目團隊:湯豔妮,許嘉玲,孔鳴,高鵬飛,張弦,朱鍾暉,蔡鈺翰,張弛,楊喻婷,王一博,譚坦,顧乃全,夏鑫,劉若塵,李秋宛
合作設計院:深圳市建築科學研究院股份有限公司
項目負責:王湘昀
項目團隊:黃進隆(建築),張大權(結構),郝齊東(給排水),張瑾(強電),魏後文(弱電),林文升(暖通)
設計時間:2018年6月
完工時間:2021年12月
基地麵積:11 190平方米
建築麵積:28 538平方米
攝影:朱雨蒙,ACF域圖視覺,眾建築












































