租下這處離家不過100米的辦公空間,既是工作室發展的需要,也是想在廈門這個小尺度城市,與以往駕車上、下班的通勤勞頓,作個徹底了結。這樣的距離尺度,也讓工作室作為家空間的延伸有了可能。動筆的初始其實沒有太多糾結,還是對實際功能需求的梳理取舍,選擇材料加以物化,呈現出貼切狀態的過程。建築如此,室內亦然。
過渡空間與破口
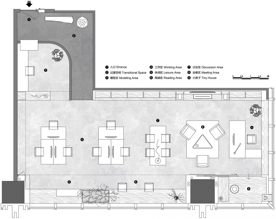
工作室的初始平麵呈L型,進門處是一塊約20平米的方形區域。我們在這兒立起一道順應流線的弧牆劃分出了過渡空間,也隔絕了工作室內部與門外公共走廊間的相互影響。透過弧牆對門位置破開的條形洞口,可隱約窺探牆後的模型區。洞口下方懸挑出的黃銅板,在內部擴展了模型製作時的操作範圍。平日製作的實體模型在此隨性擺放與更換,自然成了工作室對外展示的小窗口。
∇ 設計生成
我們通過吊頂適當壓低了過渡空間的尺度,並采用黑色微水泥材質整體覆蓋。將走道盡端自然光線的滲入與暖光源照明相結合,營造出了冷暖交迭的靜謐氛圍。此外,黑色的空間本身也非常適合工作模型的取景拍照。
開放空間與大家具
穿越入口空間來到工作室主要辦公區域後,頓有開朗之感。這裏平麵規整,麵朝東南臨近海灣,上午日照充足光線明亮。團隊工作區、討論區、會客區,以及我個人的工作區一字排開、並列設置。因整體尺度不算太大,為了避免空間局促,而不再做任何分隔,開放式的辦公環境也更利於團隊間的交流協作。連通空間本身的靈活度也更好,得以更加便捷地應對將來可能出現的調整和變動。
在這裏,我們稍加設計了一組環繞辦公區四周的整體式大家具,即解決了日常需求,又釋放了內部空間。大家具靠近落地窗一側,變形為了通長的閱讀桌,減小後的窗洞令室內光線相對柔和。長桌中嵌入種植箱,在此種下的一棵石斑木,成為了從入口空間進入後的視線焦點,也為工作室引來了花開花落的四時變換。樹下設一休閑靠座,可供大家從午後的伏案中起身,伸腿側臥、觀海小憩。長桌的端頭往牆麵延伸,並與局部吊頂連為一體,在此布置了材料架和保潔用具收納櫃。
∇ 整體式大家具軸測圖
大家具在工作區和模型區之間,轉化為吧台的形式做適當分隔,1.2米的高度使平日在吧台上放置模型進行觀察時,免受彎腰之苦。而吧台下方的儲物櫃剛好可以收納午休折疊床。與吧台同側的大麵積書架、抽屜和收納櫃靠牆固定,用於存放書籍、模型和日用雜物。空調風口、燈槽和窗簾盒這些設備安裝構件,亦整合進大家具藏匿。電視牆、唱片架和壁爐的位置則與會客區相對應。
會客區內擺進舒適的中古沙發椅,像家中的小客廳,聊天討論不必正襟危坐,也滿足了喝咖啡、聽音樂等日常需求。將工作生活的零碎通過大家具分門別類規整好後,設計的動作便告一段落。而橡木本身的溫潤質感,也在空間中平衡了與黑色天花、灰色微水泥地麵之間的冷暖關係。
小房子與光器
在我的私人工作區一隅,大家具演變成了類似“小房子”的空間,內部不大但供自己平時午休和閱讀足矣。步入時邁上一踏壓低尺度以應坐姿,並可通過推拉門扇與外部區域適度劃分,保有了些許私密感。
“小房子”的牆麵和屋頂在其角部內凹成盒狀,像開了扇高窗,我稱它為“光器”。晨間的日光穿透容器東麵的洞口折入室內,隨時間推移緩緩變化。早年從斯裏蘭卡淘回來的雕塑,也有了適宜的安放之處。夜幕降臨,暗藏於容器頂部的燈光點亮,並透過其背後的亞克力板均勻向外擴散。從白晝的由外向內,到黑夜的自內而外,光線在容器中完成了自然光與人工光間的相互轉換。
∇ “光器”軸測圖
這處小小的設計發力源自我一次偶然的發現——由於工作室大樓離家距離很近,在家中臥室位置剛好得以瞥見“光器”所在的角部。於是,每個呆在工作室伏案的夜晚,這窗燈火成了與家之間的一種維係。也讓我想起了19世紀美國唯美主義畫家James Whistler的作品《小夜曲:藍與銀 — 切爾西》(Nocturne: Blue and Silver – Chelsea)中描繪的場景。
工作室的室內設計是一次微不足道的個人空間實踐,卻也濃縮了一些自己對設計粗淺的理解和認知。從繁複的理論和多餘的形式中逃逸,無技可炫也並不奢華,隻求舒適得體、經久實用。
∇ 工作室與家的位置關係
我想,遵從內心的表達,幸許正是我們尋覓的平靜日常。重新開始,從心開始。
∇ 平麵圖
項目信息
項目名稱:默認建築辦公空間
項目地點:福建廈門
建成時間:2022年
建築麵積:110平方米
室內設計:默認建築
主持建築師:牛津
中古家具支持:Stream
畫作藝術家:吳觀真
施工方:廈門曾與興裝飾設計工程有限公司
灰泥/微水泥:泰斯特(TEXTOR)
照明燈具:西頓照明(CDN)
攝影:張超 | 默認建築
撰文:牛津






































