我們能否汲取成功律師事務所的 DNA 並將其轉變為現代、開放和通風的空間?我們如何將團隊合作與複雜或謹慎的會議結合起來?我們的解決方案反映了當代世界的動態和靈活本質。
自 1992 年進入捷克共和國以來,Allen & Overy 建立了良好的聲譽。布拉格辦事處現已完全融入其由全球 44 個辦事處組成的國際網絡。今天,法律實踐通常是為初創項目、大型收購或小型 IT 革命提供的複雜谘詢服務的一部分。我們的客戶甚至做出了非常規的決定,放棄了布拉格市中心的“高級”地址。
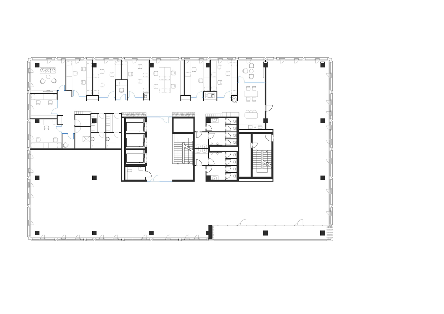
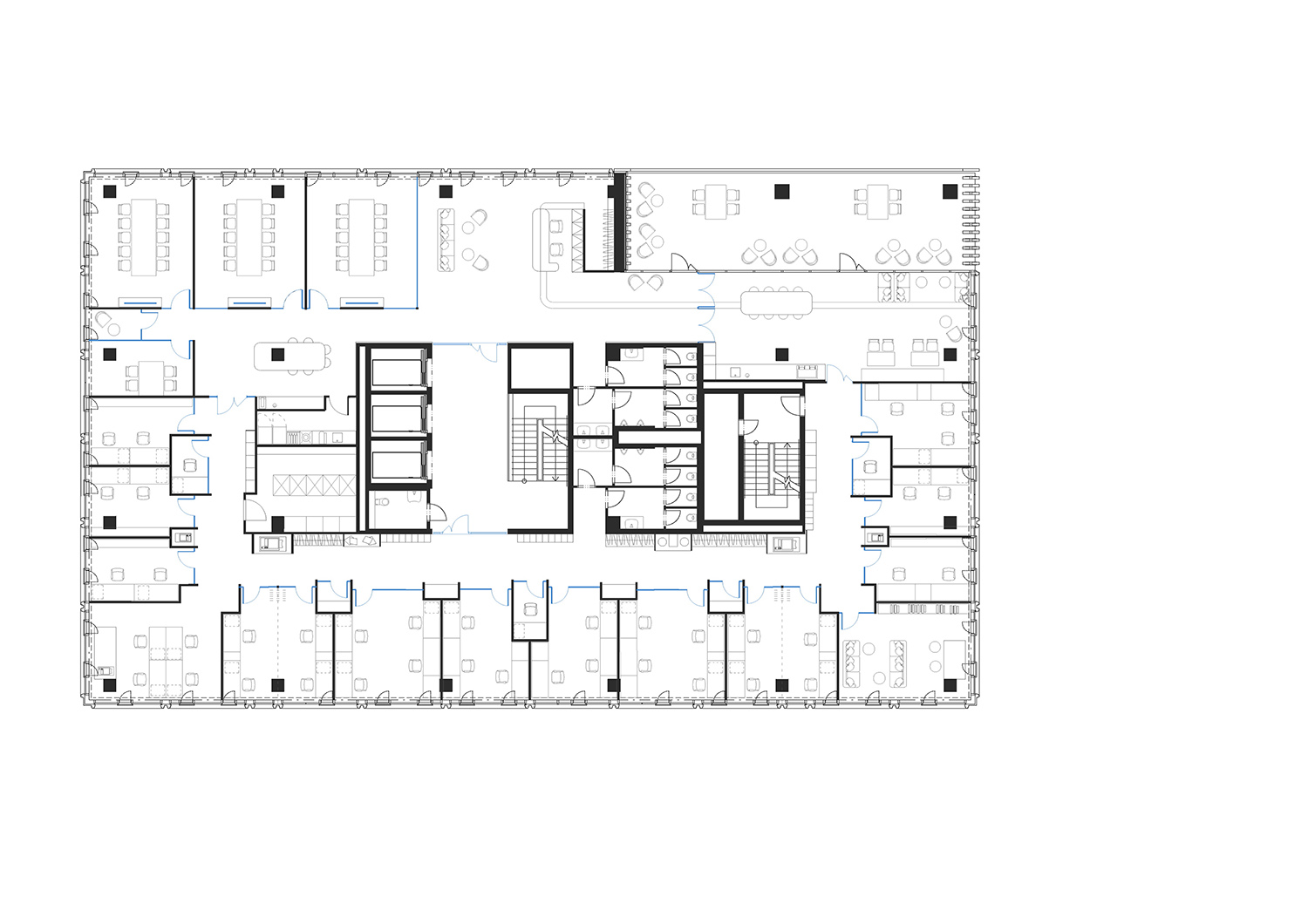
空間和規劃關係也很重要:從靜室和焦點室到公共區域或客戶空間。主要的視覺軸穿過大廳並提供向外的視野。與第一個垂直的兩個輔助軸定義了兩條走廊。他們的視線通向開放空間,可以看到周圍的城市景觀。
∇ 設計概念草圖
∇ 平麵圖
版權聲明:本站所有文章除投稿授權發布外,其他文字內容均為原創,享有著作權保護,未經許可不得以任何形式進行轉載(包括且不限於:媒體、網站、公眾號等)。所有項目照片/設計圖形版權歸原作者所有。本站部分內容源自網絡公開資源或用戶分享,如若侵犯了原作者的合法權益,可聯係我們進行處理。














































