這個項目是我們作為設計工作室的一次嚐試,將身份轉變成甲方,並將所思所想不受限製地展示。之所以是一家咖啡店,大抵是因為這滿足了我們的私心,我們希望能有一個生活化的場景,將基於藝術和設計的思考帶入其中,咖啡剛好是這煙火日常中的必需品,也讓空間具有更多變化的可能性,這裏也是我們和客戶以及市場對話的窗口。
trova所在的曆史建築經過百年裏幾輪修繕,下三層外立麵保留了原有的造型結構,並以水刷石覆蓋,至此歲月並沒有留下痕跡,如果捕捉片段,還是仿佛身處在那些年代裏。從公共停車庫到鞋帽批發部,再由凱恩賓館輾轉數十年至今,這裏該是遇見過無數的人,留下過數不清的記憶。我們希望延續這段曆史,在這棟建築的一隅中,裝下些細膩的文字和綿長的故事。
不像其他設計項目,需要深入了解客戶,探究品牌,揣摩喜好並尋其根由,我們知道自己所想要的結果。因為團隊都喜歡粗野主義建築,這些服務於大眾的功能性產物,暴露在外的混凝土不加掩飾的展示自己的滄桑和堅韌,區別於在物質豐富之後以更多流光溢彩去粉飾的美學,他們有直擊內心的真摯和創造性。因此我們想在這個不足百平的空間裏去呈現這份印記,服務於功能,裸露材質本身,運用簡易的幾何元素,以及結合現代的設計手法,這個過程自然而順利。
我們一直在尋找合適的方式。
結合傳統與現代。
平衡藝術與生活。
我們希望能有一個作品,呈現著曆史感。
帶著對未來的向往,述說對生活的熱愛。
於是我們找到了這個答案:trova”。
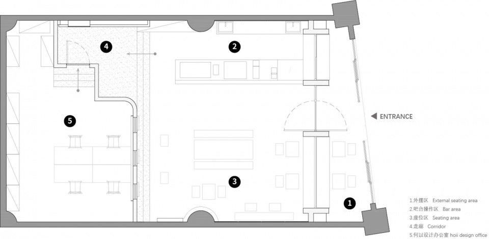
因其曆史保護建築的性質,我們並不能對外立麵的門窗進行改動,但我們依舊希望能有一個區域,將這片街道與店鋪內的空間相連接,因此我們在入口處劃分出外擺區,並重新設計了一個室內門頭,不僅重組了原本空間的梯形平麵,也讓其呈現出老建築包裹新建築的意外效果。
走入店內,頂麵與地麵的方格元素所形成的透視線條,將視線拉入盡頭。咖啡店和辦公室由一堵三扇圓窗的牆麵相隔,整個辦公區像放置於空間中的另一個建築體,我們希望模糊室內和室外的邊界,以此擴大空間內有限的視覺延伸。
空間內大麵積使用了和所處建築外立麵相似的材料:水洗石,這更像是由外而內的延續,在保留其自然樸實的同時,將和紋不鏽鋼作為室內功能區的主要材料,沒有繁複的造型,一切都追尋優先服務功能的原則。
操作台前的凸出造型是供客人臨時放置隨身物品的;圓窗是基於後方工作室的通風和對外的交流而設計;牆麵預埋的a柱和吊頂中內嵌的軌道,是對後期空間適應不同展覽形式的考慮;頂麵的幕布燈,采用了RGBWW的燈光,可調節色溫明暗以及不同顏色,以營造更多樣的氛圍。
店內的家具由我們團隊與設計師班弓合作完成,以傳統木質建築為出發點,在保留傳統造型元素的同時,還原建築本身的結構感和手作感。我們也將其作為trova的第一個展覽,希望班弓的作品可以通過咖啡店這樣一個生活場景,讓顧客們更真實地使用和感受,以及進行購買。這是我們發起這個項目的目的,讓更多設計師和藝術家將他們基於日常的思考,通過店內的家具、陳設傳遞給大家,讓藝術趨於尋常,讓美學融入生活。
∇ 平麵圖
項目信息
項目名稱:trova咖啡店
項目類型:室內設計
設計方:何以設計/hoii design
項目設計:2021年7月
完成年份:2021年11月
設計團隊:朱耀文,周軼哲,官祥
項目地址:上海市黃浦區香港路
建築麵積:115㎡
攝影版權:Kaji
施工方:上海珅辰建築裝飾工程有限公司
燈具供應商:上海永靜合電子科技有限公司
客戶:trova
材料:定製不鏽鋼,水洗石,黑色地磚
品牌:trova





















