初到此地時,被竹林所包圍,向外望去,發現了一條巴薩克河的彎道。這令人印象深刻。這些氛圍讓我們感到非常放鬆。那時,我們意識到這所房子的設計需要考慮到對自然的尊重。以這樣一種方式布置建築物,使其對土地的影響盡可能小,同時又能充分利用它,這成為我們的設計挑戰。
這應該被分成兩個垂直的部分,盡可能多的開放空間,以在房子和自然之間建立聯係。建築的兩部分也將每個區域的功能明確劃分為公共和私人區域,但仍有通往庭院的通道。這所房子的大部分區域都可以享受庭院提供的綠化,這也有助於通過其氛圍將這兩種功能聯係起來。
這種布局有利於功能的利用,並保留了這片土地的最大資產——自然。在建築設計方麵,水平線被選為房子的主要特征。如您所見,屋頂和露台線是平行的。它不僅美觀,而且由於它的懸垂而具有實用的目的,它為露台提供了陰涼處,並允許它全天使用。總體而言,縮小房子的高度,並將其與周圍的高大樹木進行對比,使其與寬闊的草坪融為一體。
大型玻璃門在實現這一設計意圖方麵發揮了作用,因為它們減少了房屋的垂直線,同時還提供了從內部的良好視野。另一個影響房子個性的因素是它的材料。我們選擇了“灰磚”作為這座房子的主要材料,它是通過自然的製造工藝生產。從房子的任何角度看,灰色的磚牆都是空間分隔器和焦點。露台和外部天花板上使用的另一種材料是由真實木材和合成木材組合而成的人造木材。它易於維護,同時仍提供逼真的觸感。
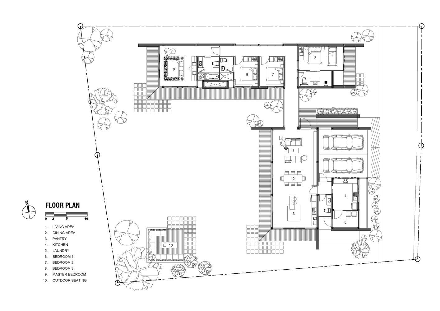
∇ 平麵圖
∇ 軸測圖
版權聲明:本站所有文章除投稿授權發布外,其他文字內容均為原創,享有著作權保護,未經許可不得以任何形式進行轉載(包括且不限於:媒體、網站、公眾號等)。所有項目照片/設計圖形版權歸原作者所有。本站部分內容源自網絡公開資源或用戶分享,如若侵犯了原作者的合法權益,可聯係我們進行處理。
































