在老街麵前,我們不希望它如同一個外來者,以強勢植入的姿態去彰顯自我。而仿佛這個小房子的家就是這兒,它從江邊崖壁上的台地上,與旁邊那些彩鋼、木構、青磚、紅磚的街坊鄰居一樣,以最質樸的方式破土而出。
設計,向下紮根,隱入場地,融於市井;
願景,向上生長,帶動老街,活化更新。——田琦
老街 · 渡口
在重慶北碚,有首流傳了半個多世紀的兒歌——“北碚的豆花土沱酒,好耍不過澄江口”,這其中的“土沱”,就是指的水土鎮,清康熙年間設立水土鋪,後稱水土沱。水土鎮曾是工商重鎮,有詩“白天千人躬首,夜晚萬盞明燈”來形容水土鎮的繁華。但比起若幹年前,水土老場鎮範圍的已被周邊逐年發展起來的新區步步緊逼,僅剩下靠近嘉陵江邊的這塊最後的領地,還在苦苦堅守。
隨著幾十年來的自建改建,老街已不再是那種青瓦坡屋頂層疊於山地中的、有著統一風貌的傳統街鎮,但相比眾多開發過度或是經過一番“風貌”打造的古鎮老街而言,這裏有三線建設時期留下來的大院、清代的寨門、山頂的江機廠舊址、寫滿標語的理發店、江邊的國民黨中央警衛署舊址、還有殘破卻又依舊屹立的江北縣人民大禮堂和人民政府辦公樓……古樸而又真實,碼頭、幽巷、石階、青苔,種種質樸撲麵而來,仿佛這裏從未被人打擾過一般。
初到水土老街,是在2014年10月,目的是探訪重慶主城最後的一個在航的車渡——三土車渡,一條連接著北碚施家梁三勝村與水土老街之間的、始建於1961年的載車過嘉陵江的航道。
隨著主城越來越多跨江大橋的新建,重慶城的兩江四岸邊,運輸人與交通工具過江的,承載著無數老重慶人兒時記憶的擺渡船也就漸漸退出了曆史舞台。而水土江邊的的三土車渡,作為戰備碼頭得以保留,並從2012年起,開始了公益性的免費擺渡。
2019年底,由我們團隊設計的“陵江驛渡·三勝車渡服務站”在三土車渡施家梁一側的江岸正式建成並投入使用。在這個麵積僅450㎡的三層鋼結構建築裏,為市民及遊客提供了文化展示和休閑的場所,同時解決部分船員的食宿問題,以此來體驗車渡,願景則是能將原汁原味的老重慶文化延續,從而帶動兩岸的複興和發展。
市民對於車渡的體驗興致盎然,但渡江航行的過程僅短短幾分鍾,並不能完全滿足作為體驗及旅遊消費目的地的需求。水土老街一側,除了那些煙火氣十足的街巷和老店能吸引攝影愛好者前來,對於90、00後的年輕人或普通市民而言,自然還缺乏一些可看、可拍、可玩、可停留消費的公共服務空間。無論城與鄉,活化與更新,傳承與發展,應是一個動態生長的過程而非某種靜態終極目標。在這裏,思考、研究與實踐還在繼續。
選址 · 手爬岩
手爬岩,用重慶話應該念“手Ba岩”,是位於水土老街臨江崖壁上的一片場地。顧名思義,這裏地勢陡峭,交通極為不便,不僅不通公路,甚至山路的坡度連推車也無法抵達,隻能徒步前往。事實上,後期這個小咖啡館的修建,所有的建材,無論鋼結構還是石塊、玻璃,都得依靠肩挑背扛,甚至拉來騾子參與搬運。
從江邊公路拾級而上,有一座小到幾乎路過而不見的小廟,廟右側的石碑上刻著1981年嘉陵江洪水時的水位線,再向上,離建設場地不到50米之處,有個天然洞穴,上方的岩石上陰刻有三個字,即便經過上百年風吹雨打,字體還依舊可辨——“棲流所”,棲是棲字的繁體,而棲流所則專指清代收留難民、流民的專門機構。
水土老街的活化與更新,當地街道負責人先後選擇了三處場地與設計方探討改造前景與策略,除了手爬岩這處廢棄垮塌的宅基地外,還有不遠處的何家大院以及位於老街東側的老電影院。
一個成功的改造項目,不僅僅是物質空間的改造更新,而應該是將前期的產業策劃和合理的功能定位在改造前便梳理清晰並落定到位,使改造後的空間物盡其用,避免空置浪費。就如總麵積超過1000㎡的何家大院,雖然大家一致認為其改造後可以作為傳承文化的展示之地或是民宿休閑的公共院落,但在沒有具體承載內容、沒有落實運營團隊,沒有具體空間需求的前提下,不能為了改造而改造,貿然動作。
團隊研判再三,決定選擇三個備選處中最小的一塊不到200㎡的場地進行試點,其改造目標為可供招商租賃亦可作為公共空間使用的茶室咖啡館。
設計 · 向下紮根
咖啡館坐落於手爬岩的一處崖壁台地之上,周邊被各個年代的矮舊房子包圍,西麵臨江,視野開闊,與車渡服務站隔江相望。台地前有一條山地步道順著山勢蜿蜒而上,尺度逼仄,僅能步行,串聯起來了老街的市井深巷。
於台地之上眺望,花草樹木野蠻生長,青瓦屋頂鱗次櫛比。這裏擁有典型的山地老街格局,保留了老重慶最純粹的模樣,承載著山城數代人記憶的老街正在城市邊緣以“活化石”的姿態見證著山城的變遷。
在設計之初,“顯”或“隱”便是擺在麵前的兩種不同方向的思路。最終,不求以與眾不同的色彩或形態去跳出環境、一味地強調自身所謂“設計感”的彰顯自我,成了團隊構思時的共識。設計,向下紮根,隱入場地,融於市井。在這裏,老街作為曆史文脈的載體,我們應當同麵對時間和曆史一般對之抱以尊重和敬畏。咖啡館的一切應是質樸的,讓建築猶如在這塊場地中自然生長而出,讓它以一種極其謙遜的態度介入,力求最大限度地貼合場地。
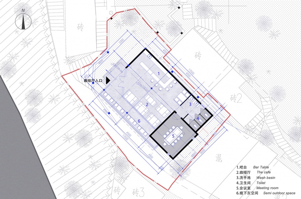
局促的場地以及周圍緊鄰的多層老舊建築共同賦予了咖啡館低矮的體量,於是咖啡館的功能便被限定在麵積僅為120㎡的單層體量之中。利用有限的體量做出盡可能多的感受,成為了本次設計的難點。建築的功能被合理地劃分為了一大一小兩處空間,再輔以服務空間進行功能補充。大空間用於容納可以自由布局的咖啡廳,包含操作台、輔助空間、客座區等,而小空間則置入了一個20㎡的小型會議室。在室外與室內的關係處理上,更是盡力去尋求視線上的自由——低矮的建築體量限製了人們的視線,使得落地窗外的景致一下子就跳脫了出來。屋簷向外努力延伸,在落地窗外形成了寬約2m的簷下空間,將窗內的視野推向遠處。落地窗與簷下空間相互疊合,雙層次擴大了臨江視野。
在形態處理上,建築和室內氛圍呈現出了絕對的一致性——簡約而不簡單。建築輪廓通過一大一小、一虛一實的兩個單坡屋頂體塊交錯勾勒而成。坡屋頂的傾斜方向對場地麵前唯一的山地步道形成避讓,在麵積極其受限的情況下,咖啡館仍舊在入口處切角,退讓出了一片入口廣場,極大地消解了人們走上台階後的局促體驗。
建築立麵也通過對比實現了與整體的一致性:簷下空間的開敞與室內空間的閉合、落地玻璃窗的通透與穿插於其中的石頭房子的敦實……各種虛實對比使得建築在極小的尺度中完成了多種變化。最終,種種變化都統一於“一橫(地平線)一豎(建築豎向界麵)一斜(單坡屋頂)”的精煉造型之中。
咖啡館的建造材料都就地取材,選用天然原石、舊木板以及鋼材進行建造。舊木的細膩、天然原石的粗糲和鋼材的堅硬,性格迥然不同的幾種材質之間相互碰撞,在色調上與老街達到了驚人的一致性,營造出了一種獨特的原始質感,在視覺和觸覺上引起人的情感共鳴,使建築紮根於老街,為老街而建,與老街共存。
建造是設計成功與否的關鍵一環,從選材到施工都由設計團隊把關,設計團隊認可後方能繼續施工。石頭牆是用當地的原石一塊一塊壘砌而成的,要求石材與石材之間的交接處勾水泥砂漿而又不裸露砂漿,這對工人的施工工藝提出了一定的要求。
原石及舊木板的選用也很考究,原石的尺寸不能太大,也不能太小,且要求大小均勻;舊木板選擇的顏色及花紋也要既協調統一又要體現出舊木的溫潤和質感。
願景 · 向上生長
願景,向上生長,帶動老街,活化更新。咖啡館是我們團隊在水土老街更新中的又一試點,我們期望它可以繼續作為觸媒體,以點帶線、以線帶麵、以麵擴體,推動老街持續地、漸進地生長發展。
乘著九月的尾聲,我們前往咖啡館進行建築拍攝。從水土老街江岸拾級而上,經過望江樓網紅米線、穿過光影斑駁的老街深巷、再走過門口開滿大片三角梅的何家院子,就到了。彼時咖啡館已經營業兩月有餘,前來打卡休閑的遊客仍舊絡繹不絕,或是通過自媒體、或是朋友推薦前來。不論如何而來,他們都選擇了將自己的時光留在了這小小的咖啡館之中,凝固在老街的市井煙火氣之中。
最令人意外的是,咖啡館正在慢慢地融進老街居民的生活中。前來消費的人群中本地人占半數,就連員工也多是本地人。嬢孃們喜愛來此處放風,小孩子們喜歡來這裏玩耍,咖啡館於老街就像是村口的大樹一般,成為了老街的一處日常公共空間。
刻板印象讓我們認為咖啡館的受眾人群應該是城市中的年輕人們,但其實不然。不論是小孩、還是嬢孃們,都樂於投身悠閑愜意的生活氛圍,去感受這所小房子所帶來的精神愉悅。對美好事物的欣喜總是不分對象的,而這種平易近人的精神愉悅也正是這所小房子的最大感動所在。我們希望這種欣喜和感動能夠通過這所小房子內化進老街的每一處人家,也能夠源源不斷地為這片土地汲取更多的活力。
我們相信,在咖啡館之後,水土老街還會有更多的“咖啡館”出現。
∇ 建築模型
∇ 分解軸測圖
∇ 平麵圖
∇ 剖透視
項目信息
項目名稱:水土老街手爬岩咖啡館
項目類型:公共建築
項目地址:重慶市北碚區水土街道陵江社區
建築麵積:120㎡
項目設計:2021.05
完成年份:2022.06
設計單位:重慶悅集建築設計事務所
主持建築師:田琦 何飆 李駿
設計團隊:郭劍 魯澤希
結構專業:王立彬
給排水專業:王月冬
電氣專業:陳衛
暖通專業:吳猛
施工單位:重慶儒陽建築工程有限公司
業主方:重慶市北碚區人民政府水土街道辦事處
攝影版權:常文雨,田琦,劉國暢






































