山野咖啡寧波店比預想中來的要早一些。以BC(Bushcraft)文化為核心的山野咖啡杭州本店(杭州山野咖啡)於2020年9月開業後,迅速在咖啡界和戶外界火出了圈。彼時誕生了一句有趣的話 — 我不在山野,就在去山野的路上。
觀堂設計總監張健 如是說
第一次應邀去到寧波帶夢胡同,勘察了為山野預留的商鋪,一線沿街,展開麵非常大,擁有獨立的前院、後院和露台。院子裏肆意生長著的三棵大樹,是柏樹和香樟,茂密的枝葉從一樓延伸至二樓,環境非常完美。
我們的山野咖啡是一個關於夢想的故事,寄托了自身對戶外的熱愛與向往,也希望給寧波這座城市帶來“坐在山野喝咖啡”的美好體驗——微風下,陽光裏,目之所及,心之所向,身之所往,處處皆山野。在這個特殊的疫情年代,也希望每個人都可以放下包袱,親近自然,回歸初心。
設計之初的動線與功能規劃
寧波山野的原始建築是一片混凝土框架結構,算上戶外共有740平米,麵積是杭州山野的4、5倍。如果僅單一經營咖啡,麵積著實過大。如何合理的利用各個空間,確保舒適、調性和品位的同時,將之與合適的產品及經營模式相匹配,從而產生有效的商業回報,在設計之初山野與GTD花費了相當多的精力進行探討。
∇ 原始建築
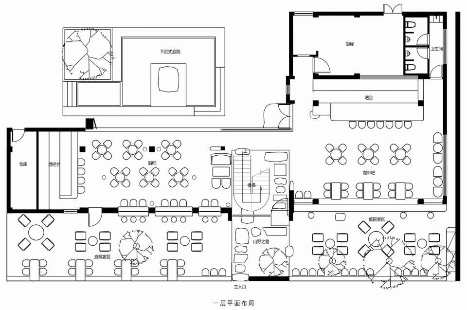
建築整體沿街,立麵開間很大,為了能使顧客進店的效率最大化,設計中將店鋪入口布置於建築中間,並由此重新規劃了登上二樓的樓梯。在樓梯成為整體立麵中心的同時,又將空間自然劃分為左、右、上、下四個區域,從而根據不同的運營內容對不同區域開展針對性設計。
一脈相承的“山野之路”
“山野之路”一直是山野咖啡館的靈魂,從抵達之時起,你便踏上了一條與眾不同的小徑。每一塊石板,每一棵苗木,每一片青苔,都來自於精挑細選,引領著你向前探索。
推開那把標誌性的斧頭門把手,山野之路繼續向內延伸,盡頭是一大塊雕琢著“山野咖啡館”字樣的原石。
盡可能的“打開”
寧波山野室內麵積320平米,戶外區域多達420平米,這在城市商鋪中實在難能可貴。得力於這個得天獨厚的空間條件,設計過程中盡可能為“打開”預留了行性。南與北的立麵全采用玻璃移門和移窗做法,但凡天氣合適、便將門窗全部推開,將戶外空間引入室內,與自然融為一體,盡情享受自由呼吸。
將日咖夜酒進行到底
寧波店的場地比較大,產品定位為咖啡飲品、小酒館和簡餐,這裏便有了廚房和雙吧台。其中主吧台出品咖啡與飲品,緊鄰廚房,位於店鋪右手邊,客人沿山野之路入店後抬頭便見,方便抵達與點單需求,也方便運營團隊的操作與跑動。次吧台主要出品酒類飲品,位於店鋪的左方。各個區域的客人可以自由落座互相串場。白天的客人,可以點杯咖啡來份下午茶;晚間的客人,可以來杯雞尾酒精釀威士忌,於閑聊間微醺。
將山野生活方式帶入城市
城市是一座島嶼,每個人都會麵臨荒野求生,山野咖啡希望能為城市裏打拚的人們提供一個休憩之所。
在這裏,你看到的每一塊石板,酒吧區的每一棵樹樁,牆麵上的每一根樹枝,角落裏鑲嵌的每一塊原石,微景觀裏的每一捧青苔,吧台上的每一塊老木板每一盞吊燈,牆麵上出現的每一幅畫……全都傾注了百分百的心血。
欣慰的是,正如各方所願,寧波山野正在為這座城市帶來山野戶外的美好生活方式。去山野喝一杯聊兩句,正在一點點融入平常生活的瞬間。
這裏不隻是一家店。
∇ 1F平麵圖
∇ 2F平麵圖
項目信息
項目名稱:山野咖啡 · 寧波店
項目地址:寧波鄞州區嵩江中路1002號DEMOHOOD青年創意社區
項目麵積:740平米
竣工日期:2022年9月
空間設計:杭州觀堂室內設計有限公司
店鋪道具:杭州久維裝飾工程有限公司
燈光照明:杭州見合燈光設計事務所
窗簾布藝:寧波致品居 · 柔然軟裝
植物布置:去野 · 二旦植物工作室
室內家具:失物招領(LOST & FOUND)
主要材料:手工磚、天然風化石、老木頭、無機水磨石
空間攝影:黑水、陳昊、湯湯、王飛


































