廣島的時間、空間和人相交的建築
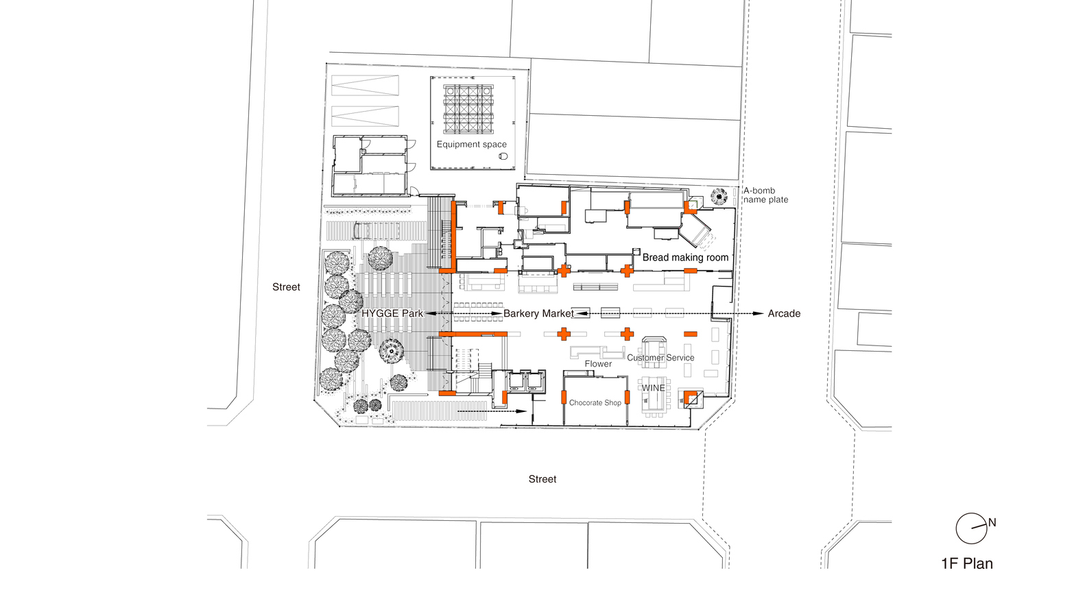
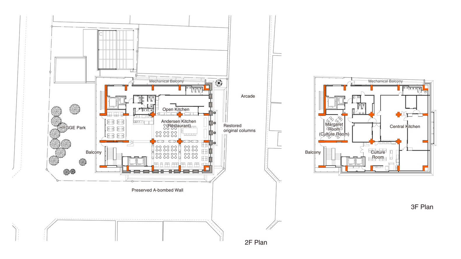
廣島安徒生通過麵包“為餐桌帶來歡樂和幸福”。這是其發源地旗艦店的改造方案。在“穿越時間”的概念下,TAISEI DESIGN實施了一項更新建築的計劃,同時保留了被炸毀的舊建築的元素並將其與現代設計相結合。“穿越空間”的概念是通過讓遊客在穿過讓人聯想到丹麥的繁華街機小鎮和麵包店市場後與海格公園的自然環境相遇而實現的。“人的交叉”是由形成內部的門形結構本身創造。十字路口由十字形柱子表示。*Hygge:丹麥語,意思是人類互動產生的溫暖舒適的感覺。
繼承被炸毀的廣島安徒生大廈
原來的建築是由長野宇平治設計的兩層RC建築。原子彈爆炸後,它被修複並用作麵包店,並進行了許多擴建和翻新工程。這座建築具有曆史價值,因為它的位置是現有被炸建築中距離零地第三近的地方,它被稱為“帶來歡樂和幸福”的麵包店。拆除時,部分被炸毀的外牆被保留下來,重新安裝在新店的東外牆上。為了保留磚砌和形式,包括窗框和裝飾品,整個建築被切割,留下一塊65毫米的人造石製成PCa板。
從建築單元到街區
曆史遺產與新設計的融合。在新廣島安徒生中,通過采用中央廚房等功能組合縮小了規模。建築向拱廊和海格公園開放,一樓“麵包市場街”連接市場和自然以市場的構成為人們創造交流和遊走的空間。鋼筋混凝土結構框架允許形成麵包生產和廚房等基本設施,創造區域和流線供遊蕩,並將設計延伸到與空間、房間和室內相結合的家具。
∇ 平麵圖
版權聲明:本站所有文章除投稿授權發布外,其他文字內容均為原創,享有著作權保護,未經許可不得以任何形式進行轉載(包括且不限於:媒體、網站、公眾號等)。所有項目照片/設計圖形版權歸原作者所有。本站部分內容源自網絡公開資源或用戶分享,如若侵犯了原作者的合法權益,可聯係我們進行處理。




































