Latitude 26°是一家以前沿科技與功能性護膚相結合的美容機構。秉承“智”、“創”、“醫”、“科”的品牌理念,多元化的滿足當代女性的護膚新需求。在這裏,設計的底層邏輯在於如何以多樣性的情境安排引導品牌與需求者的更多互動。
散步
在薩伏伊別墅中,柯布西耶以坡道作為豎向交通,引導參觀者分層迭進的切換體驗視角。“建築散步”正是由這位現代主義建築先驅首次提出的空間設計概念。
我們由此出發,將整個空間中的交通樞紐落在了以樓梯為連接中心的空間群。他們包含了一樓的樓梯體塊、休息區以及二樓完整的走道和公共空間。
空間散步追求的是空間的流動性。提供移動觀察的可能性,空間序列隨著觀察者在建築中的移動層層遞進、徐徐展開,空間易趣也由此產生。
力量
開放的空間可以為場所注入更多的精神力量,我們將框架體係和支撐體係糅合於要素表達中,形成空間的自由性和開放性。而以樓梯為連接中心的挑空體塊又將向四周擴張的空間能量向內收回,使空間具有整體性。
角部的支撐立柱以木質包裹,並順勢圍合成折線屏風,將梳妝區安置於後,半隱半隔。
邊界
除了樓梯處的大體量挑高空間的設置,我們在北麵的公共區也保留了一處小尺度的采光井。一樓敞開式會客和二樓休息區的共享此處的自然采光。陽光自上方揮灑而下,陰影遊走,靜謐而有穿透力。
光造就了世界,但也說光或許並不重要,而在於它使房間之間有了關係而重要。靜默凝視,光的包裹使房間的邊界變得模糊。
庭園
於扶手轉折處圍合一處微縮庭園,置入石組和苔蘚。並借由此自然意趣,將野性之美室內化。因為我們深知自然界中蘊含著能夠影響人類生命的能量。
∇ 一層平麵圖
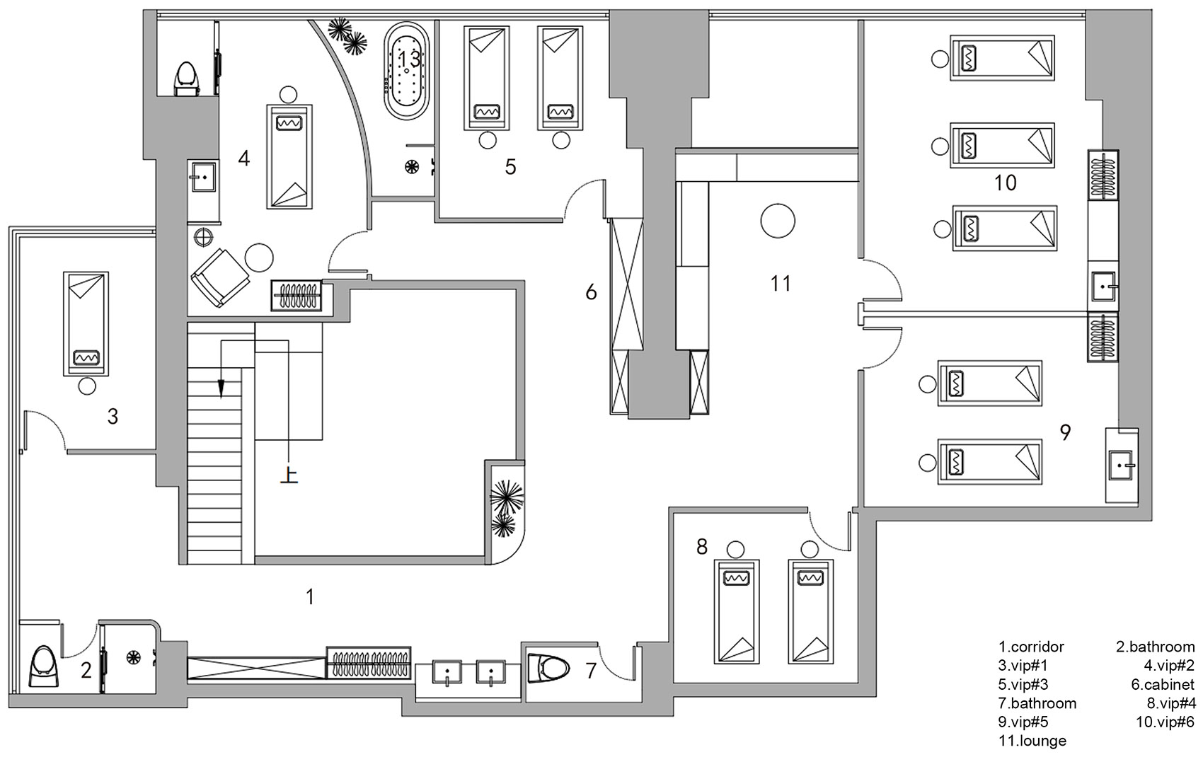
∇ 二層平麵圖
項目信息
項目名稱:Latitude 26°芸穀美學
設計公司:南京拙木空間設計
設計主創:吳媛媛
施工時間:2022.06-2022.08
項目地址:水晶藍灣,南京
建築麵積:450㎡
景觀設計:植地雅栽
攝影版權:黑曜石
主要材質:微水泥、灰泥、海洋板


























