Bel Corpo醫美中心的主要想法是讓一個人回到當下的時刻。一旦進入工作室,客人就會忘記自己身處喧鬧的大都市的中心,拋開對過去的擔憂和對未來的思考,享受氛圍並花時間照顧自己,由於這是工作室和客戶之間的第四次合作,因此在討論調色板和未來空間的氛圍(沙子、沙漠、流暢的線條和圓角)後立即形成了這個概念。
Bel Corpo 專門從事美容護理,沙龍的顧客和老板是健康生活方式的追隨者。她長期從事身體和冥想練習,經常旅行,創造一個致力於身體美學的空間是她的舊夢。建立的溝通和對美學的相似理解使建築師在選擇風格和技術解決方案時有更多的自由。麵積150㎡的空間功能涉及辦公室的數量、淋浴間、更衣室、員工宿舍的可用性——由Babayants Architects決定,七米的天花板使他們能夠創建一個成熟的夾層空間。
“在這個項目中,我們想要創造一個完全不同的氛圍,”建築師強調。讓空間的體驗盡可能美觀、舒適,讓客人沉浸在冥想的狀態中。在顏色、形狀、圖像和光線的幫助下完成了這個工作。自然是室內裝飾的基礎,所有的牆壁甚至樓梯的欄杆都是手工抹灰。這使得深度、觸感和性感成為可能。地板上 – 具有特殊紋理的天然石材,使用這種材料也是一個基本決定,因為觸摸它會帶來身體感覺。
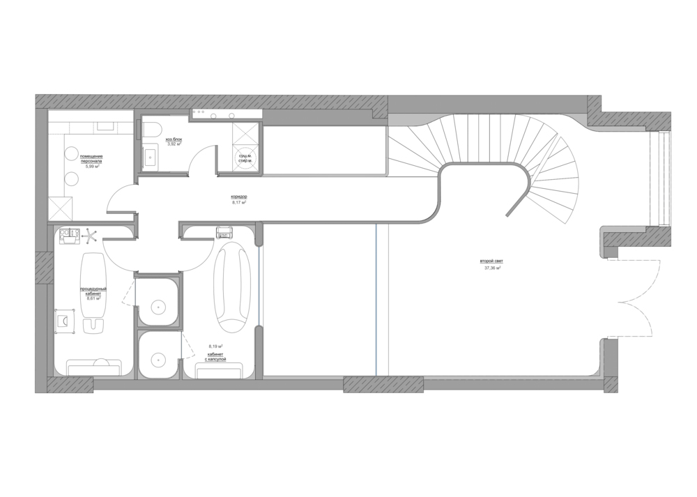
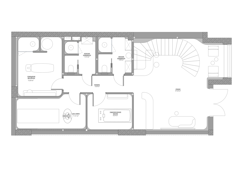
∇ 平麵圖
版權聲明:本站所有文章除投稿授權發布外,其他文字內容均為原創,享有著作權保護,未經許可不得以任何形式進行轉載(包括且不限於:媒體、網站、公眾號等)。所有項目照片/設計圖形版權歸原作者所有。本站部分內容源自網絡公開資源或用戶分享,如若侵犯了原作者的合法權益,可聯係我們進行處理。











































