Studio MK27〡 巴西聖保羅Flat #6四居室大平層公寓
Flat #6是位於巴西聖保羅的一套極簡公寓,由Studio MK27設計。公寓配有經典的複古和現代巴西飾品,高品質裝飾為公寓的每個房間增添了質感。現代和複古、內斂與精致的飾麵和諧地結合在一起,並增添了一抹色彩。
Studio MK27
於80年代初由Marcio Kogan創立,是巴西最負盛名的設計公司,擅長以純粹簡約的建築形式與巴西的地理風情相結合,尋找可持續設計的發展,其作品在設計感觀上力求內外一體,強調極簡主義的本土化,也被稱為巴西極簡主義的詮釋者。
手工製作的織物穿孔窗簾過濾陽光並在整個空間投射有趣的光影圖案。每件物品和每一個角落都被自然光溫暖,這放大了木材、天鵝絨和石頭的色調。Studio MK27對每一個細節的設計都非常謹慎,從而打造出寬敞、充滿靈魂的房間,並讓居住者擁抱歡樂的生活。
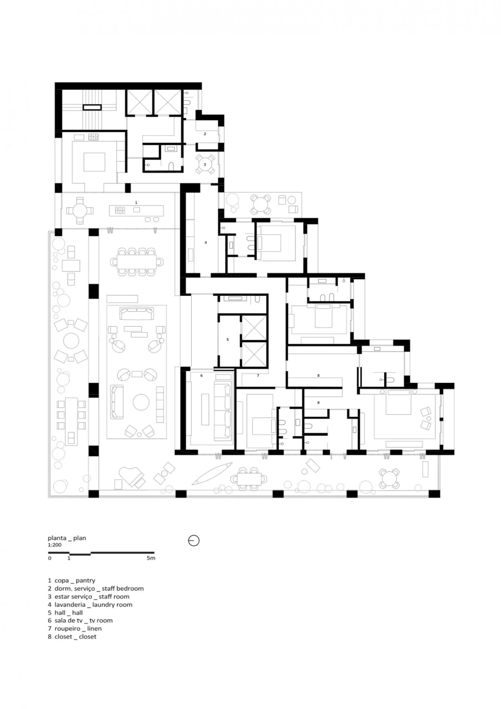
∇ 平麵圖
版權聲明:本站所有文章除投稿授權發布外,其他文字內容均為原創,享有著作權保護,未經許可不得以任何形式進行轉載(包括且不限於:媒體、網站、公眾號等)。所有項目照片/設計圖形版權歸原作者所有。本站部分內容源自網絡公開資源或用戶分享,如若侵犯了原作者的合法權益,可聯係我們進行處理。


































