墨西哥 / MONTERREY / 複合空間
# Madarq studio #
Madcoffee項目靈感源於對精品咖啡和對設計的熱愛,該項目重新定義了傳統的設計工作室,展廳可以將工作室的功能和新的設計趨勢進行展示,促進創造刺激感官的空間,並逐漸豐富當地社區。
建築師認為未來的設計工作室應該與當地社區建立更多的聯係,而不是藏匿於一個隱蔽的地方,項目麵臨的最大挑戰是解決如何讓設計工作室對公眾更加開放和友好。
為了解決這個問題,建築師打造了介於專業咖啡店和設計工作室之間的混合空間。與傳統的設計工作室不同,這兩個項目融合後能創造一個更開放的環境,顧客可以在享受一杯咖啡的同時,也能以更休閑的方式享受不同的功能。建築師利用現有的建築元素,即三根混凝土柱和格子石板來打造這個麵積為130㎡的空間,從“展廳+咖啡店”的理念中汲取靈感,設計出一個主打現代、清爽和白色的建築特色形式空間,木材突出了濃咖啡奶油的自然美感,當地的灰色石材和玻璃牆則讓自然光穿透整個空間。
動線從主立麵開始,有限的視野會使顧客隻看到咖啡吧,然後沿著動線依次發現不同的功能,功能之間的體量和高度變化也吸引人們探索其他地方,同時使顧客體驗不一樣的情感變化。
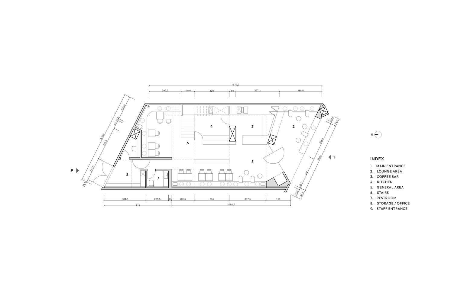
▽ 一層平麵圖
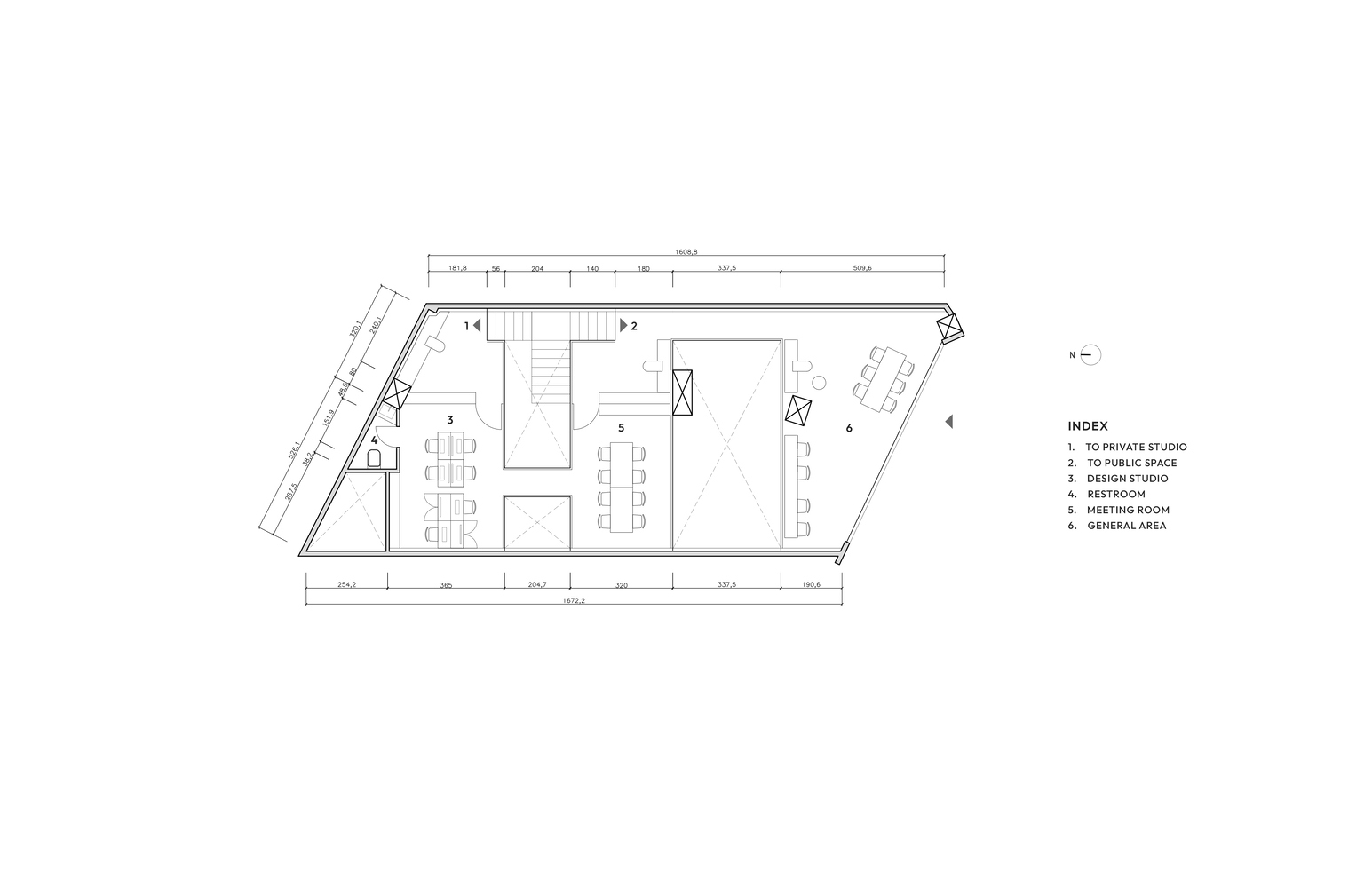
▽ 二層平麵圖
版權聲明:本站所有文章除投稿授權發布外,其他文字內容均為原創,享有著作權保護,未經許可不得以任何形式進行轉載(包括且不限於:媒體、網站、公眾號等)。所有項目照片/設計圖形版權歸原作者所有。本站部分內容源自網絡公開資源或用戶分享,如若侵犯了原作者的合法權益,可聯係我們進行處理。


























