自19世紀末,張園便被稱為“滬上第一名園”。張園作為近代中國最早的公共空間,推動了中國的都市生活及上海的海派文化。2022年,在張園修繕後重新向公眾開放之際,藍瓶咖啡邀請如恩在石庫門老宅中,打造出一個以咖啡為對話媒介、融合滬上生活方式的當代社群空間。
張園滿載著這座城市的集體記憶。如同木心筆下所描繪的景象:“傍晚日光西射,建築物構成陰帶,屋裏的人都螃蜞出洞那樣地坐臥在弄堂裏”。上海的裏弄,阡陌縱橫。而生活在其間的人們,總是能在這享受片刻閑暇。如恩希望通過設計,捕捉城市的脈絡與肌理,為當地居民與往來旅客編織一段敘事之旅。
出於曆史保護的原則,建築立麵與天井的原有磚牆和門窗均得到了保留,延伸至室內,成為了設計師創作的語境及畫布。如恩回溯建築的本源,在室內置入了一個原始的屋舍。這個簡易的“庇護所”作為動線的交彙之處、空間的視覺焦點,是咖啡師精心調製飲品的吧台區域。
∇ 軸測分析圖
屋舍與建築磚牆之間的帶狀空間,宛如一條室內裏弄,將主空間與天井連接起來。在其間,放置三兩長椅,幾件小桌,倚窗而坐,仿佛回到了舊日裏的石庫門生活。
為了與既有建築的曆史肌理形成對比,如恩對屋舍的結構與構造節點進行了反複的研究與推敲,使其盡可能的輕盈。屋架通體采用和紋不鏽鋼,屋麵則是由穿孔彎折鋼板製成。這些材料微妙且模糊地反映了周圍的環境。舊時,居民們會在建築立麵上搭建簡易的構件,將私人空間延伸至裏弄中。
如恩受此啟發,將建築中原有的結構柱以金屬杆件稍作連接,實現了燈軌、邊桌、長椅和展示陳列等功能。店內除了品牌家具以外,還精心添置了的傳統老家具。歲月留下的痕跡,也為這間新舊交融的藍瓶咖啡帶來了一份暖意。
∇ 材料研究
∇ 藍瓶咖啡張園店模型
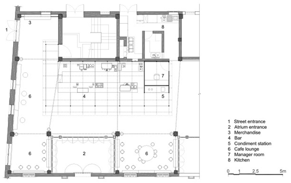
∇ 平麵圖
項目信息
項目名稱:廬 · 藍瓶咖啡張園店
地點:上海市靜安區茂名北路240號W5-1A
完成時間:2022年11月
業主:藍瓶咖啡
項目內容:室內設計
項目功能:咖啡店
建築麵積: 175平方米
主創建築師:郭錫恩,胡如珊
主持協理: 李秋橙
設計團隊:張佳馨,陳僖,鄒佩錚,周上雲,吳震海,洪明月
室內設計:如恩設計研究室
軟裝設計及采購:設計共和
施工總包:上海藍頂裝飾工程有限公司






























