韓國 / 釜山 / 咖啡廳 # mttb | matter better #
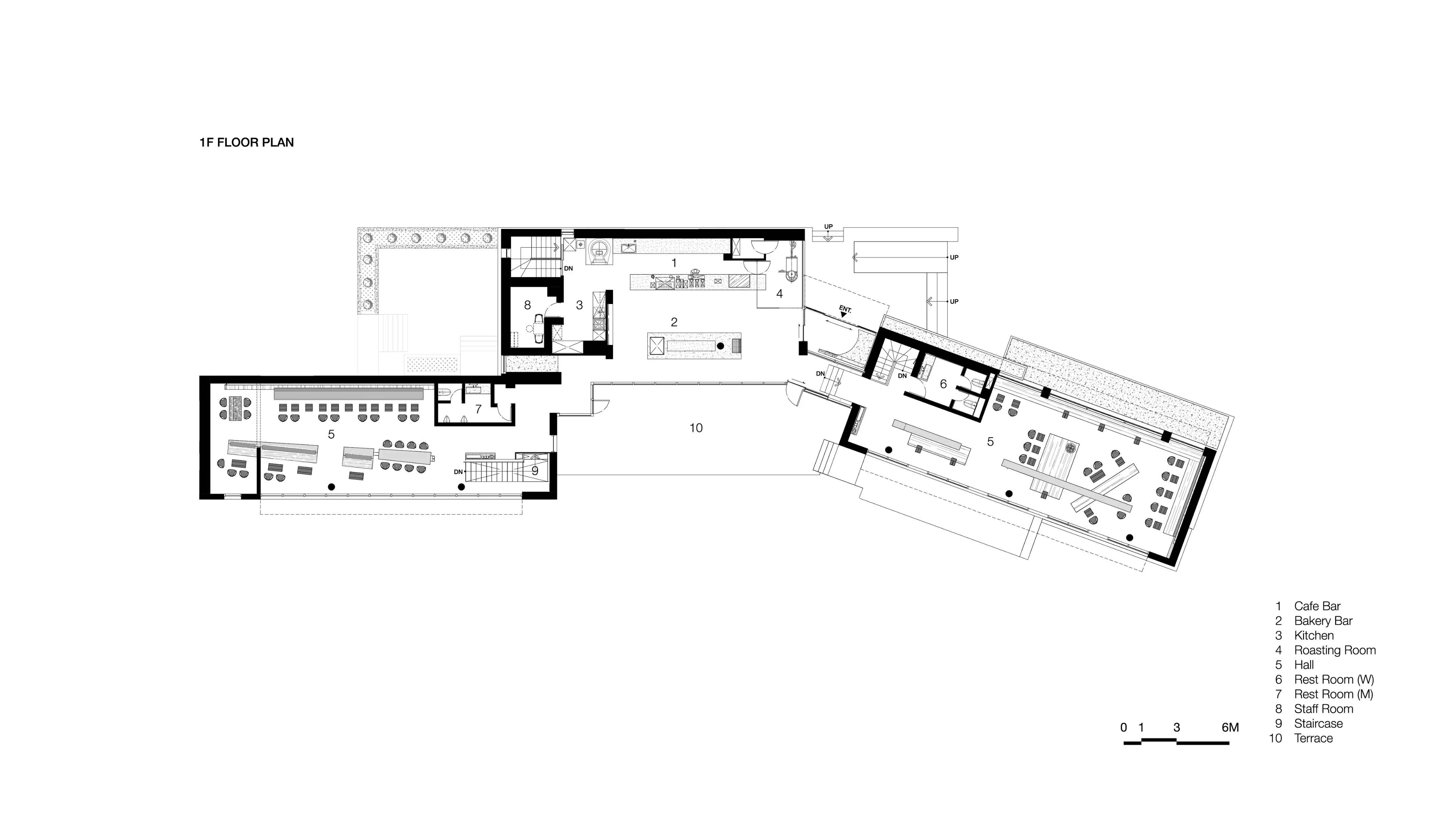
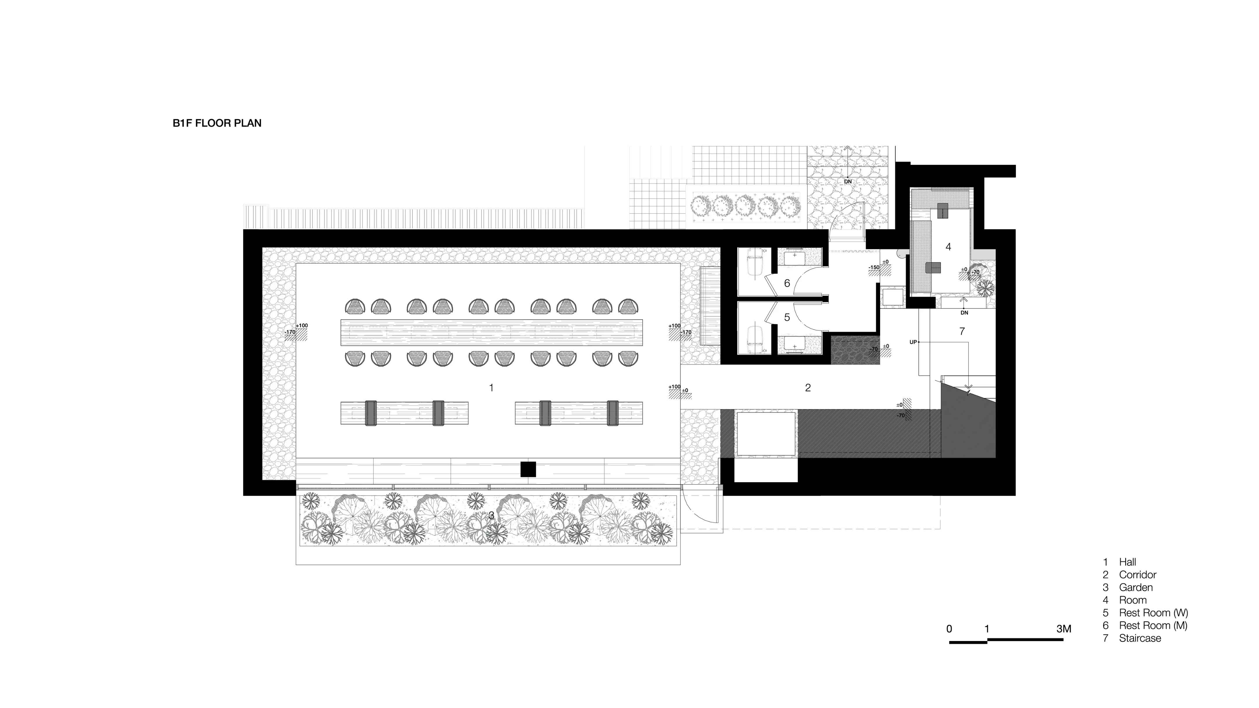
off.o 是一家位於韓國釜山的咖啡館,總建築麵積590㎡,分為上下兩層。入口位於第一層,這是一個由3座獨立建築組成的空間。入口位於中心,以咖啡廳和麵包店接待處迎接顧客,而兩側空間則提供不同類型的座位。除了為客戶提供多樣化空間體驗的較低樓層外,該項目還力求在整個空間為客戶提供輕鬆而有趣的空間體驗。
由於項目位於釜山機張岸邊,三個建築空間均麵向海岸線。這豐富了就餐體驗,在航行空閑時,享有無盡的海洋美景。與城市環境不同,項目的郊區性,尤其是被自然環境所包圍,引導設計團隊創造最小和簡單的空間。雖然空間保持平靜和安詳,但自然環境更接近客戶。
設計團隊針對現有空間的簡單線性形式,在天花設計中加入弧形元素,營造舒適的氛圍。點、線、麵等幾何元素的重新詮釋激發了空間設計的靈感,創造了一種輕鬆和簡約的氛圍,而不是複雜和動態的。
空間結構和形式是用一個簡單的形式來表達的。在保留現有空間的簡單幾何形狀的同時,設計團隊引入了家具類型的對比變化。同時,潛在雜音由選擇性材料調色板控製。這可以防止項目出現裝飾性或華麗。空間整體采用環保原木色和奶油色,為顧客營造舒適放鬆的體驗。
▽ B1F平麵
▽ 1F平麵
版權聲明:本站所有文章除投稿授權發布外,其他文字內容均為原創,享有著作權保護,未經許可不得以任何形式進行轉載(包括且不限於:媒體、網站、公眾號等)。所有項目照片/設計圖形版權歸原作者所有。本站部分內容源自網絡公開資源或用戶分享,如若侵犯了原作者的合法權益,可聯係我們進行處理。


























