城市綠洲 生長不息
City Oasis Grow and grow
喜悅是一種能力
自此,我躺在綠茵上便不再尋找
享受時光靜好,一分一秒
Joy is an ability
Since then, I lie on the green and stop looking for meaningless things.
Enjoy the quiet time, for every single second and minute
品牌闡述 Brand interpretation of gaga
生活中的喜悅不是在特定的時間、地點才會發生,也不需要用力去尋找。正如gaga所提倡的“全時段享樂主義”,為不同的城市帶來新的活力和熱情。gaga和我們始終希望能夠在忙碌的都市生活外,可以開辟一處“綠洲”,讓人們在此全心享受生活。
Joy in life doesn’t just happen at a specific time and place, and we don’t need to look for it hard. As gaga advocates “full-time hedonism”, it brings new vitality and enthusiasm to different cities. gaga and we always hope to open up an “oasis” outside the busy urban life, where people can enjoy life wholeheartedly.
01 城市 City
時代的豐富性 Richness of Times
在當下快節奏的社會中,城市的呼吸變得急促,生活和工作之間的界限變得模糊。整個城市處於被束縛著的狀態,跑得很快,但並不自由。設計初衷是在城市中劃出一塊綠洲,讓人們慢下腳步,在此處輕享片刻閑暇,感受自由的思想和社交帶來的愉悅。給予生活一些喘息,找回生活中的那份喜悅。
In today’s fast-paced society, the breathing of cities becomes rapid, and the boundaries between life and work become blurred. The whole city is in a state of bondage. Although it runs very fast, it is not free. The original intention of this design is to draw an oasis in the city, so that people can slow down here, enjoy a moment’s leisure, and feel the pleasure brought by free thinking and socializing. We hope it can give life some respite and let people find the joy in life.
02 綠洲 Oasis
模糊界麵 拉近與城市的距離 Fuzzy interface narrows the distance with the city
設計將原有的建築外牆玻璃拆除並內退,在立麵上形成錯峰的凹凸關係,讓原建築的界麵變得模糊,拉近與城市的距離。通透的立麵讓外部的視線更好地延伸至空間內部,使整片“綠洲”構成一個半開放性的社區型空間,人與人的社交關係在此也得到了更為舒適的延展。
In this design, the original exterior wall glass of the building is removed and retreated, thus forming a concave-convex relationship with staggered peaks on the facade. By doing so, the interface of the original building can be blurred and the distance from the city can be narrowed. In addition, the transparent facade can make the external line of sight better extend to the inside of the space, and make the whole “oasis” form a semi-open community space, so the social relationship between people can be extended more comfortably here.
自然屬性/Natural attribute
空間材質以溫和的木質搭配綠植為主,讓人與物的關係從城市的工業屬性轉化為自然屬性,為就餐空間創造一個具有場景性的綠洲環境。空間氣質上盡可能避免給人一種“效率化”感受,顏色、材料選擇盡可能地體現“親生物性”,而空間中留有原建築的跡象,讓二者之間並沒有形成強烈的分隔感,使其相互保持著一種對立與統一。
In the application of materials in space, mild wood with green plants is the main design, which transforms the relationship between people and things from the industrial attribute of the city to the natural attribute, and at the same time, it also creates an oasis environment with scenes for the dining space. In terms of spatial temperament, it avoids giving people a feeling of “efficiency” as much as possible. In terms of color and material selection, “biological affinity” should be reflected as much as possible. There are traces of the original buildings in the space, which makes them not form a strong sense of separation, and keep a kind of opposition and unity with each other.
內置的餐位也呈現出多樣性,滿足了不同群體在不同的時間段的進餐需求。柔和的光照恰好打亮就餐區域,結合溫潤的木色與品牌特有的暗綠色為空間基調,給予顧客一個鬆弛且自然的用餐氛圍。光影的捕捉是對時間流逝最好的記錄,光的生命強而有力,在材質上及形體上,緩慢地留下痕跡,映射出時間與空間的流轉,二者之間融合而又統一。
The design of the built-in table also shows diversity, which well meets the dining needs of different groups in different time periods. The soft light just illuminates the dining area, and combines the warm wood color with the brand’s unique dark green as the space tone, which can give customers a relaxed and natural dining atmosphere. The capture of light and shadow is the best record of the passage of time, because the life of light is powerful, it slowly leaves traces on materials and forms, and reflects the flow of time and space. The two are well integrated and unified.
03 生活 Life
內心的平衡與快樂 Inner Balance and Happiness
空間滿足了不同人群的就餐條件與多樣的社交需求,在各種的時間段不同的群體皆可來此就餐。“綠洲”坐落於都市中,在此提供全時段各類餐飲的休閑空間無疑是必要的。全時段用餐空間亦是對我們工作種類變得更加豐富,社交需求變得更加多樣的回應。
The design of dining space meets the dining requirements and diverse social needs of different groups of people, so as to ensure that different groups can come here to eat at various time periods. “Oasis” is located in the city, so it is undoubtedly the best arrangement to provide leisure space where you can enjoy all kinds of meals during the whole time. Full-time dining space is also the best response to the variety of our jobs and the diversity of our social needs.
將更加整合的生活狀態重新賦值,場景化的就餐空間呈現出輕餐飲及社區性的文化氛圍,正如gaga的品牌理念,探尋真正適合自己的生活方式,找到內心的平衡與快樂。一味追求效率及速度並不見得是最好的,打造具有歸屬感的空間,優化都市人的生活品質也很重要。放鬆下來,進行閑暇的享樂主義生活,人們圍聚在一起,追逐光影享受寧靜。
Re-assigning the more integrated living conditions, while the scene-based dining space presents a light dining and community-based cultural atmosphere, which is consistent with gaga’s brand philosophy, that is, exploring a truly suitable lifestyle and finding inner balance and happiness. It is not necessarily the best to pursue efficiency and speed blindly. It is also very important to create a space with a sense of belonging and optimize the quality of life of urbanites. We hope that people can relax and live a leisure hedonistic life, that is, get together, chase light and shadow, and enjoy peace.
天花上若幹木質板片橫豎交錯,板片上隨機開出大小不一的洞口,板片的“簡潔性”好比一張畫布基礎,透過板片的洞口和板片之間的縫隙將原本應該隱藏在內的天花管道體係的“複雜性”給強化出來。
On the ceiling, several wooden boards are staggered horizontally and vertically, and holes of different sizes are randomly opened on the boards. The “simplicity” of the plate is like a canvas foundation, which highlights and strengthens the “complexity” of the smallpox pipeline system that should have been hidden inside through the opening of the plate and the gap between the plates.
生長不熄/Grow and grow
當工作和生活交織在一起,意味著生活中那種純粹享受自我的時間將會越來越難得。我們給這片城市留餘呼吸的空間,在綠洲裏重拾生活的喜悅,或許這更有意義。gaga店麵在不同的城市落地是起點,但遠不是終點。
When work and life are intertwined, it is increasingly rare for us to have the opportunity to enjoy the purely self-contained time in our lives. It may be more meaningful for us to leave room for breathing in this city and regain the joy of life in the oasis. gaga storefronts have landed in different cities, which is the starting point, but far from the end point.
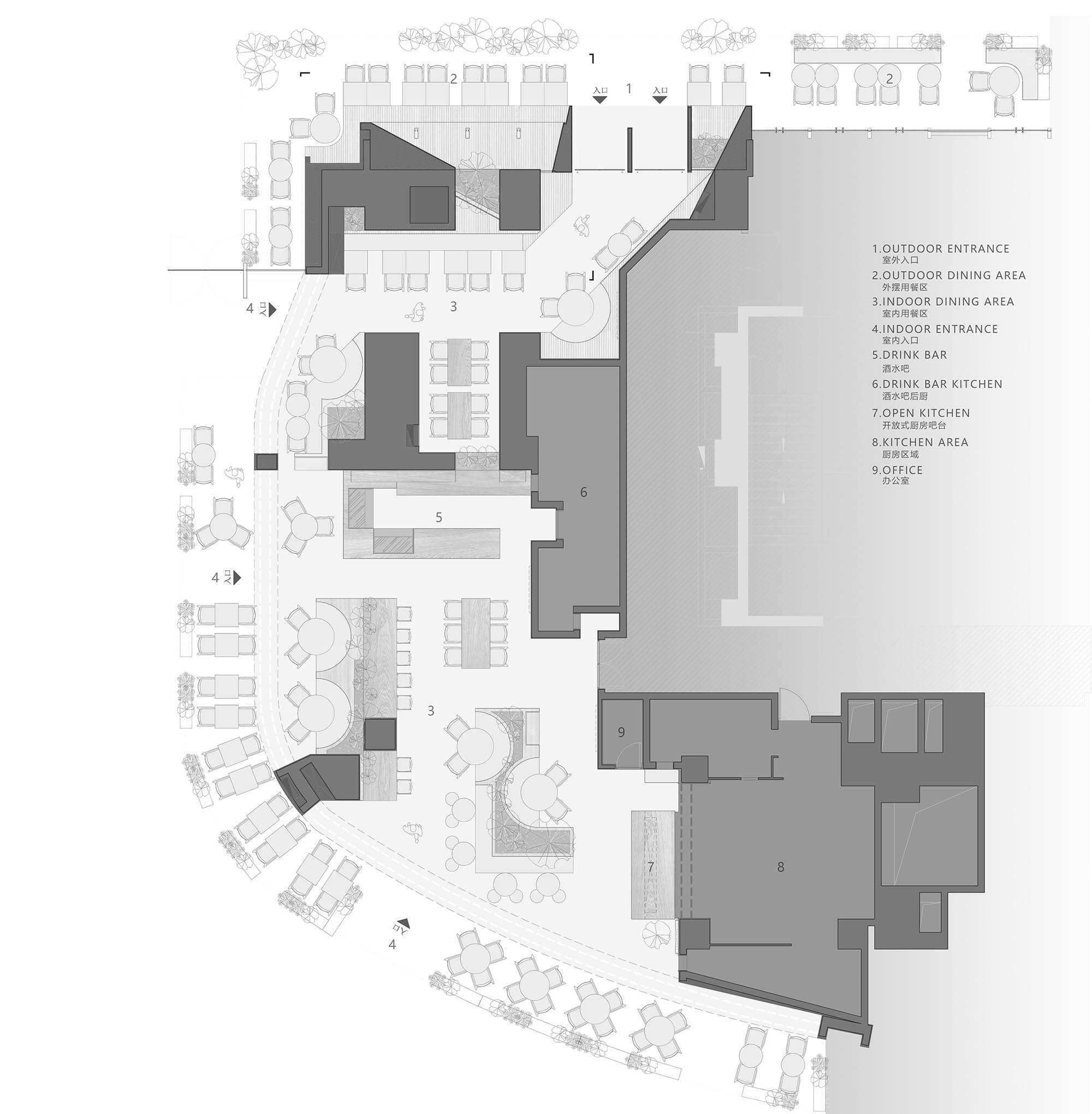
∇ 平麵圖
項目信息
項目名稱 | gaga 深圳寶安大仟裏店
項目地點 | 廣東 深圳大仟裏
項目麵積 | 451㎡
完工時間 | 2022.11
項目業主 | gaga鮮語
設計公司 | UND設計事務所
主創設計 | 馬英康 馬衍浩 張明統 王潤維 黃樹斌
參與設計 | 周昊輝 譚炫華 陳希雯 莫受覺 黃爽
主要材料 | 藝術漆 木紋鋁板 木紋貼膜
施工團隊 | 深圳市領尚裝飾設計工程有限公司
項目攝影 | 小樂
Project name: gaga Shenzhen Baoan Daqianli store
Project location: Daqianli, Shenzhen, Guangdong
The project area: 451 ㎡
Completion time: 2022.11
Project owner: gaga
Design firm: UND Design Studio
Main designers: Ma Yingkang, Ma Yanhao, Zhang Mingtong, Wang Runwei and Huang Shubin
Designers involved in the design: Zhou Haohui, Tan Xuanhua, Chen Xiwen, Mo Shoujue and Huang Shuang.
Main materials: art paint, wood grain aluminum plate, wood grain film
Construction Team: Shenzhen Lingshang Decoration Design Engineering Co., Ltd.
Project photography: Xiao Le




































