以物入微,以式入道。抱樸守真的生活,我們不曾放棄,也從未遠離。
We immerse ourselves in the subtleties of life, embracing its purest forms. We’ve neither abandoned this path nor strayed from it.
周家二小姐的菜落址於無錫市小婁巷曆史文化街區,這裏飽經千年的歲月蕩滌,方寸間積蓄著底蘊淳厚的文化脈潭與超然世外的悠遠意境。保留了原建築沁潤時光記憶的飛簷黛瓦,設計師將自然鬆弛的氛圍延伸入室,在沉澱中尋求色彩、肌理與光影的整合,讓東方經典的傳世之美在現代設計語境中再現芳華。
Nestled within the historical and cultural enclave of Xiaolou Lane in Wuxi City, Miss Chow’s Time is where time has woven its tapestry for centuries. Every corner exudes a rich cultural heritage and an ethereal charm that transcends the mundane. Preserving the ancient eaves and weathered black tiles of this heritage building, our designers have seamlessly integrated the essence of nature’s serenity into our interiors. Here, amidst the quietude, we seek the harmony of colors, textures, and the interplay of light and shadow. It’s a place where the timeless beauty of the East gracefully rekindles in the modern context.
“歌成曲,舞作詩,最是春光嫋繞畫中移”。門頭設計沿襲了當地傳統建築的形製,融合了民族工藝元素、天然材料以及現代解構技巧進行全新的解讀,穩重中營造別具一格的氣質,試圖與消費者建立情感共鳴。門前是熙熙攘攘的人流,窗內是明明暗暗的燈火,一個品牌從年輕走向成熟的轉變,在這潤物無聲的積澱中,悄然散發出曆久彌新的韻味。
“Where songs turn into melodies, dances become poems, and the most beautiful scenes are painted by the spring’s gentle light.” Our entrance design pays homage to the architectural traditions of the locale, infusing elements of ethnic craftsmanship, natural materials, and modern deconstruction techniques to create a unique, dignified ambiance. As you step inside, the outside world bustles with activity while the soft, dimly lit interiors offer a transformation from youth to maturity, a process that quietly exudes timeless allure.
推門甫入,鮮明的文化辨識度裹挾著古色古香的氣韻撲麵而來。設計師將造園技巧引入室內,通過各個功能區域節點的過渡與融合,完美地實現了形式與功能的統一,並達到互為景致的效果。粗糲的礫石順著斑駁的磚塊延申,鋪就一室清雅,編織著小徑通幽的舊夢。老木板上的年輪宛若歲月的皺紋,無須伸手,便可觸摸到時光流轉的印跡。
Upon entering, the distinctive cultural identity envelops you with an ancient, fragrant charm. Our designers have introduced elements of garden design indoors, seamlessly integrating form and function throughout various areas. This creates not just a sense of space but an entire tapestry of experiences. Coarse gravel pathways extend along mottled brick walls, crafting an interior that exudes elegance and weaves dreams of olden days. The age rings on weathered wooden boards are like imprints of time, tangible evidence of the years gone by.
身未入景,心已入境
Before entering the scene, the heart has entered the realm
步移景異,境隨物遷。染織工藝與自然景觀的融入,納名士襟懷與生活意趣於一域,虛與實相映,情與景交疊,將柴米油鹽的人間煙火描摹成丹青筆墨下的悠然詩境。
As steps move, scenes change along. The integration of dyeing and weaving techniques with natural landscapes incorporates the feelings of literati and the interest of life into one realm, where the virtual and the real complement each other, and emotions and scenery overlap, depicting the human world’s bustling scenes into a tranquil poetic realm.
餐廳的動線清晰自然,整個空間極少使用實質的隔斷,而是通過材質、造型的轉換,為不同區域注入了然的差異。散座區以柔軟的純白紗幔為頂,在靈動的光影暈染下,飄逸舒展如延綿的波浪推向遠方,帶來層次分明的縱深感與韻律美,營造萬物凝固下至純至美的場景體驗。
The restaurant’s layout flows naturally, with few physical partitions; instead, distinctions are made through the choice of materials and shapes. Our scattered seating areas are crowned with billowy white curtains, and under the play of dynamic light and shadow, they unfurl like endless waves. The result is an environment that’s both inviting and harmonious, creating a scene as pure and beautiful as the imagination permits.
“笑看風輕雲淡,閑聽花靜鳥喧”。拾級而上,短暫告別案牘勞形,踏進周家二小姐的“桃花源”。包廂延續了公區的溫潤木色,寥寥數筆,淡淡清韻,足以歌盡世間意境。天花以中式屋架頂為藍本,經過現代工藝技法的精簡演繹,豐富了室內空間的縱深層次,亦將傳統東方美學的精髓娓娓道來。
“Smiling at the light breeze and serene clouds, leisurely listening to the stillness of flowers and the noise of birds.” Ascending the stairs, temporarily bidding farewell to the hustle and bustle of work, and stepping into the “Peach Blossom Spring” of Miss Chow’s Time. The private rooms continue the warm wood color of the public area, with a few strokes and a light charm, enough to sing the world’s artistic conception. The ceiling is based on the traditional Chinese house frame, simplified through modern craftsmanship techniques, enriching the spatial depth of the interior, and narrating the essence of traditional Eastern aesthetics.
摒棄喧囂,借空間做載體,與古物件一同靜默,這是中式美學的浪漫,亦是“二小姐”的精神內核。在鋼筋水泥澆築的城市裏,我們需要這樣一處棲息之地,短暫地逃離世俗,追尋靈魂的放空與情感的皈依。正如作家周作人所說,“我們於日用必需的東西以外,必須還有一點無用的遊戲與享樂,生活才覺得有意思。我們看夕陽,看秋河,看花,聽雨,聞香,喝不求解渴的酒,吃不求飽的點心,都是生活上必要的——雖然是無用的裝點,而且是愈精煉愈好。”
Abandoning the noise and using space as a carrier, along with ancient objects, this is the romance of Chinese aesthetics, and it is also the spiritual core of “Miss Chow” In the city built of reinforced concrete, we need such a place to take refuge, to briefly escape from the secular world, and to pursue the relaxation of the soul and the emotional conversion. As writer Zhou Zuoren said, “Apart from the necessities of daily life, we must also have some useless games and pleasures; life feels interesting only when we do. Watching the sunset, the autumn river, the flowers, listening to the rain, smelling the fragrance, drinking non-thirst-quenching wine, eating non-satiety-inducing snacks, all these are necessary in life – although they are useless decorations, and the more refined, the better.”
薈萃人文賦予空間的厚重感,是時間的饋贈。設計師從曆史彼端起筆,將現代年輕人“重儀式更重意誌,求物質更求精神”的灑脫與熱愛力透紙背,在動與靜、力與美中尋求生活的平衡,讓瑰麗的東方情致掙脫光陰的桎梏,與品牌發展的進程一同奔赴未來。
The richness of culture that gathers in the space is a gift of time. The designer starts from the other end of history, allowing the free and passionate love and enthusiasm of modern young people for “rituals and spirits, materialism and spirituality” to shine through the paper, seeking a balance in life between movement and stillness, strength and beauty, allowing the splendid Eastern sentiment to break free from the shackles of time and embark on the future together with the brand’s development.
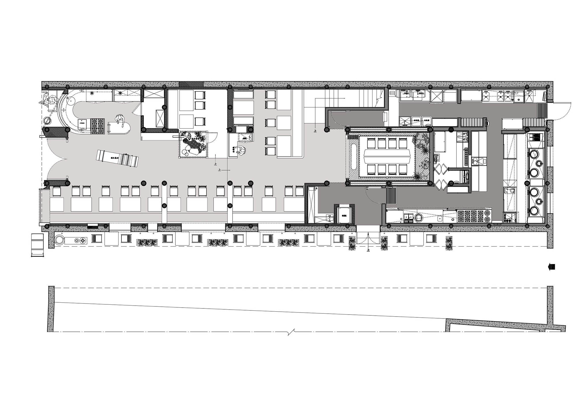
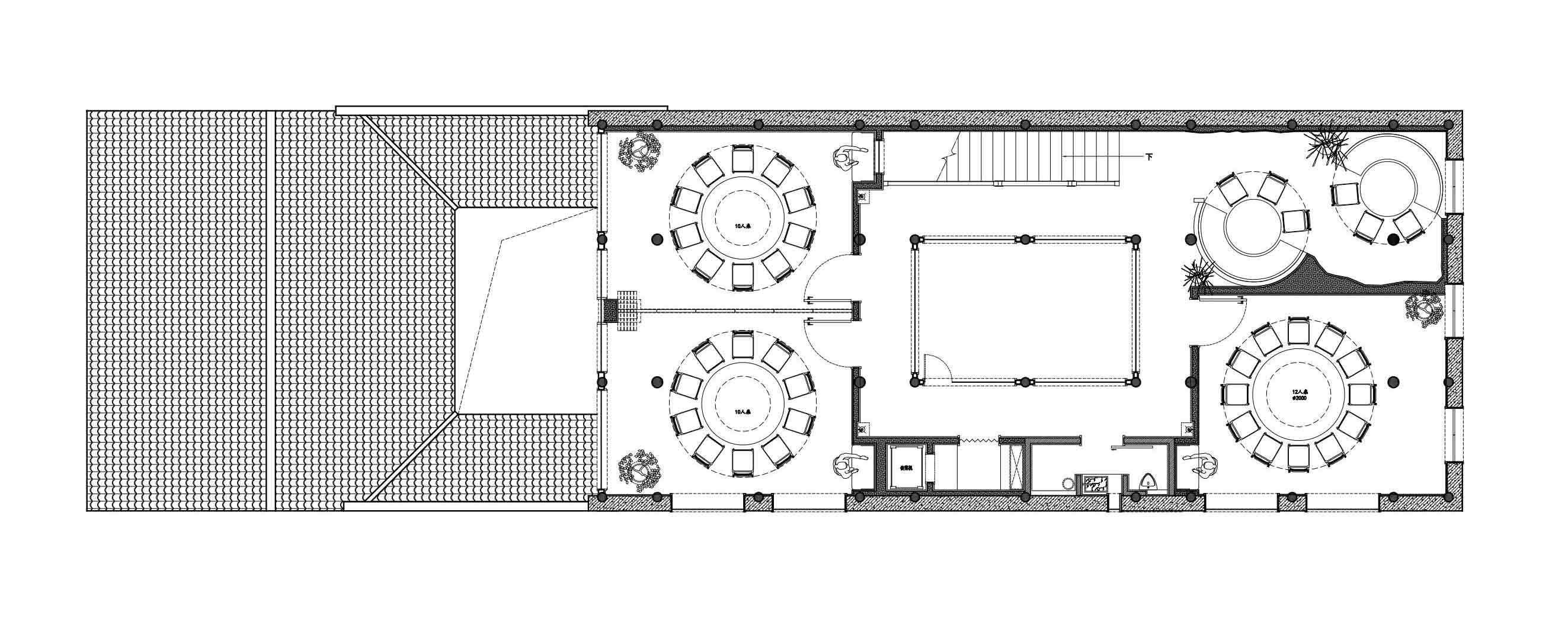
∇ 平麵圖
∇ 軸測圖
項目信息
項目名稱:周家二小姐的菜
Project Name: Miss Chow’s Time
項目地址:無錫小婁巷曆史街區
Location: Wuxi, China
設計單位:無錫歐陽跳建築設計有限公司
Design Company: OYTT Design
主案設計師:歐陽跳、蔣越
Chief Designer: Tiao Ouyang,Yue Jiang
落地主案設計師:周丹鳳
Landing Designer: Danfeng Zhou
輔助設計師:姚運、馬小貝
Assistant Designer: Yun Yao, Xiaobei Ma
項目麵積:398㎡
Area: 398 square meters
完工時間:2023.08
Complete Time: August 2023
製造:無錫莫川裝飾、郅飛展櫃
Manufacturer: Wuxi Mochuan Decoration, Zhifei Exhibition Cabinet
燈光:無錫米未照明
Lighting: Wuxi Miwei Lighting
主要材料:老木板、大理石、藝術漆、定製、磚金屬
Main materials: old wooden boards, marble, artistic paint, customization, brick metal
材料品牌:臻藏時光、貝萊維斯塗裝、上海新楹柯實業有限公司
Material Brand: Zhencang Time, Belavis Coating, Shanghai Xinyingke Industrial Co., Ltd
項目攝影/視頻:魯哈哈
Photographer/Video: Haha Lu







































