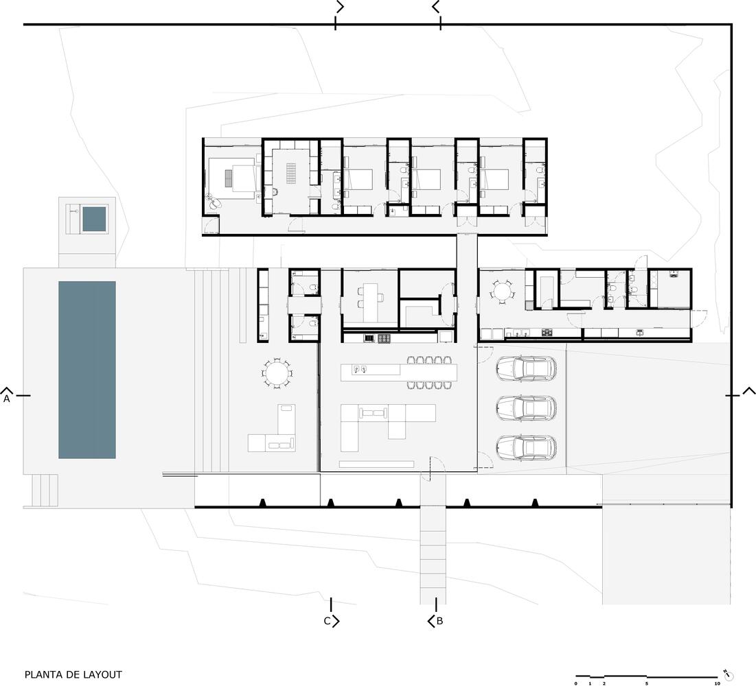
這棟600㎡畫廊般的別墅位於巴西巴西利亞。室內五根大倒梁構成了別墅中心區域——畫廊——12 米寬的屋頂跨度——家庭的大部分畫作收藏都在這裏。是集客廳、餐廳、廚房、陽台、車庫等多種功能於一體的綜合空間。
玻璃側麵和框架被一堵稍微懸掛在地板上的牆保護著免受過多的陽光照射,牆由主梁一側的相同柱子支撐。它具有在最熱的時候阻擋午後直射陽光的功能,盡管它與開放式花園所在的框架之間的自由空間允許間接自然光進入。此外,框架和屋簷後退保護空間的其餘部分免受陽光直射。
該計劃分為兩個主要部分,中間穿插著兩個未覆蓋的線性花園。第一個靠近街道,位於遮陽牆和中央生活區框架之間。第二個花園將社交區和涼亭與住宅的房間隔開。
∇ 屋頂平麵圖
∇ 平麵圖
∇ 軸測圖
版權聲明:本站所有文章除投稿授權發布外,其他文字內容均為原創,享有著作權保護,未經許可不得以任何形式進行轉載(包括且不限於:媒體、網站、公眾號等)。所有項目照片/設計圖形版權歸原作者所有。本站部分內容源自網絡公開資源或用戶分享,如若侵犯了原作者的合法權益,可聯係我們進行處理。




































