手工奶酪中心 (CRQA) 是一個文化空間,彙集了與我們美食的重要資產之一——奶酪相關的產品和經驗,聚集了合格的教師、研究人員和技術人員。CRQA由葡萄牙建築師 José Lourenço 設計,在貝洛奧裏藏特的Space 356 ,以複雜且精心設計的建築和展覽設計,以受米納斯山脈啟發的曲線帶來身臨其境的氛圍。
CRQA 將聚集一個關於手工奶酪的永久展覽、一家合作商店、一個致力於美食的圖書館、一個舉辦各種活動的圓形劇場、一個社交區以及一個帶教學廚房的完整教室,用於文化和美食培訓活動。 圖書館將是米納斯吉拉斯州第一家專門致力於美食的圖書館,擁有有關烹飪和飲食文化、研究和科學論文的全國性書籍,以及主要國際美食書籍的葡萄牙語譯本,其中許多書籍未在巴西出版。
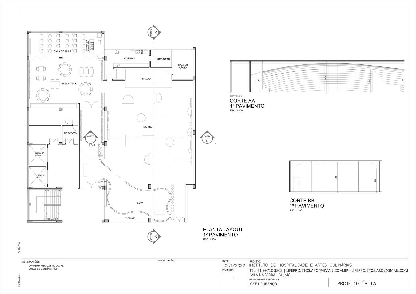
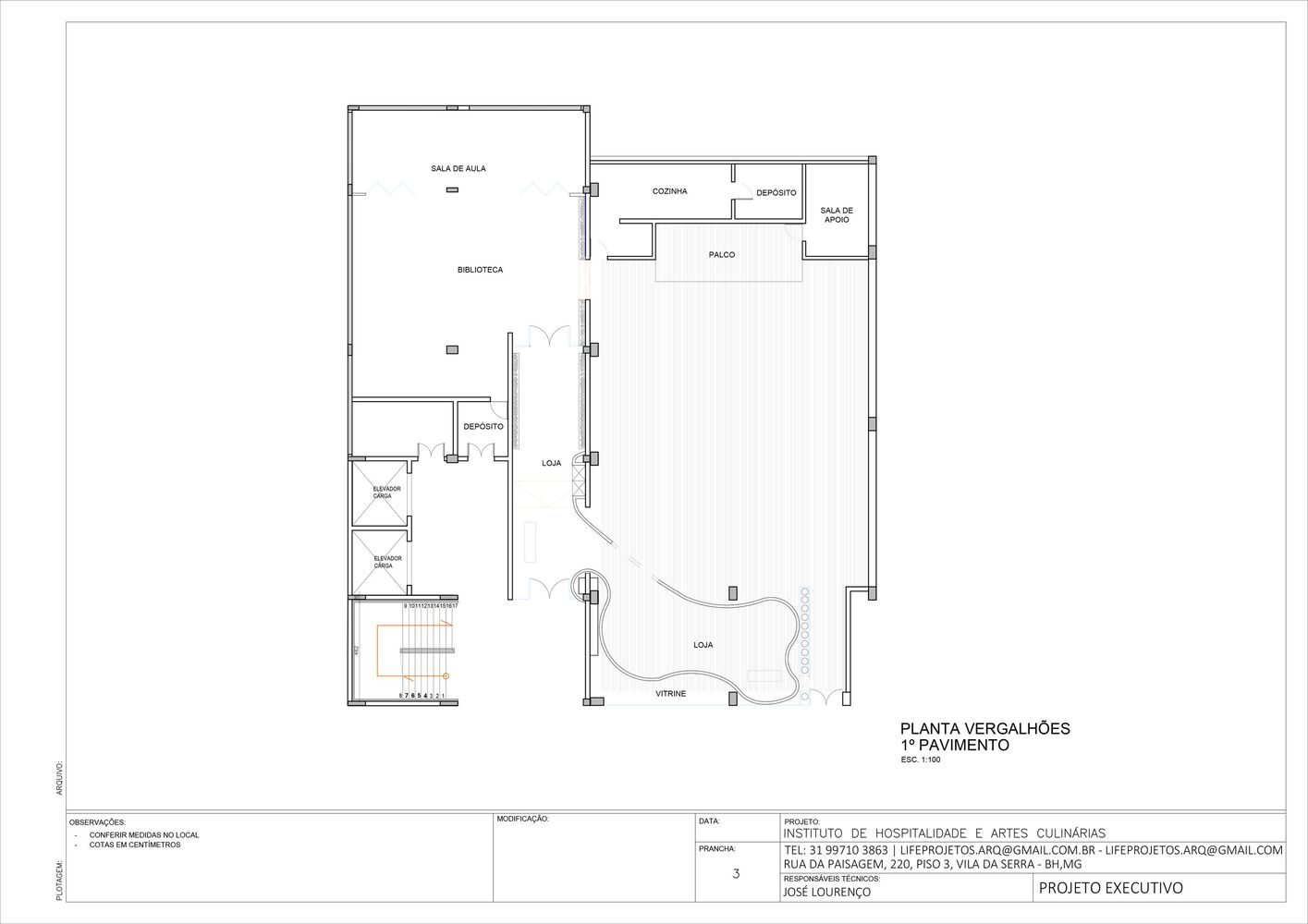
∇ 平麵圖
版權聲明:本站所有文章除投稿授權發布外,其他文字內容均為原創,享有著作權保護,未經許可不得以任何形式進行轉載(包括且不限於:媒體、網站、公眾號等)。所有項目照片/設計圖形版權歸原作者所有。本站部分內容源自網絡公開資源或用戶分享,如若侵犯了原作者的合法權益,可聯係我們進行處理。




























