湖景平層度假別墅位於智利南部的蘭科湖畔,距市區 950 公裏。地處湖畔,夏季炎熱,冬季多雨潮濕,氣溫可降至4°C。它被設想為聖地亞哥一個年輕家庭的第二個家,旨在作為避難所,並在夏季和冬季促進放鬆。
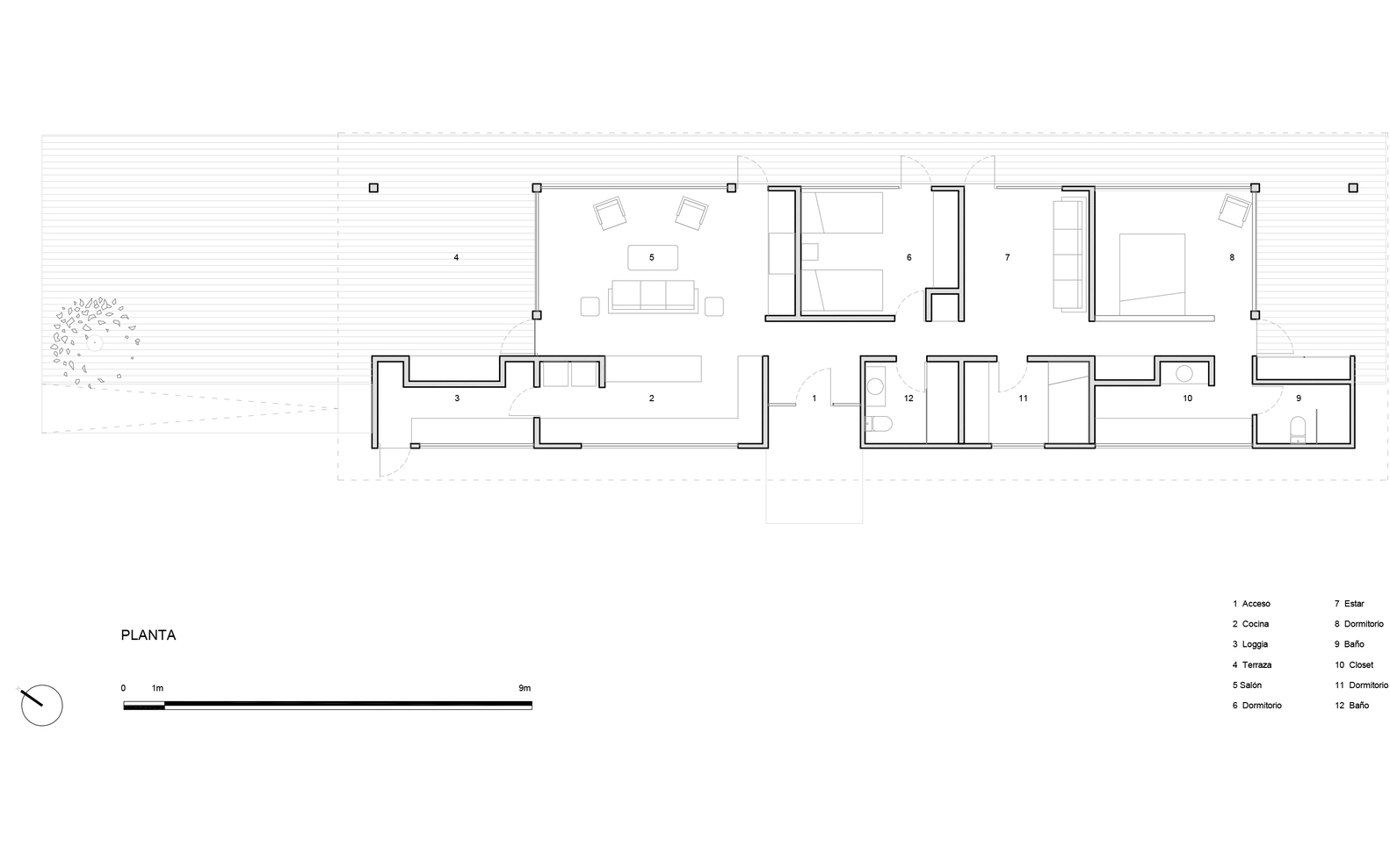
該項目被配置在一個單一的層次上,有一個矩形的布局和一個中央走廊,優先考慮向東的湖景,臥室和東北的公共空間,在冬天尋求陽光的進入。一個連接圍牆的露台,這將促進家庭聚會和戶外生活。因此,通過屋頂的投影和屋簷,在內部和外部之間產生中間空間,覆蓋表麵,以防止夏季的陽光和直射雨水。這個大露台板在視覺上與屋頂相關,就像構成室內空間的 2 個水平麵。
房子在概念上簡單而樸素,沒有建築上的矯飾,允許為這個偏遠的地方進行可控和有效的建設。遵循該地區的建築傳統,這座房子的結構和整個覆蓋著當地的鬆木。
∇ 場地區位圖
∇ 平麵圖
版權聲明:本站所有文章除投稿授權發布外,其他文字內容均為原創,享有著作權保護,未經許可不得以任何形式進行轉載(包括且不限於:媒體、網站、公眾號等)。所有項目照片/設計圖形版權歸原作者所有。本站部分內容源自網絡公開資源或用戶分享,如若侵犯了原作者的合法權益,可聯係我們進行處理。






























