項目位於廣州市天河區,是一間老的機關公寓,房屋建築麵積146平米,剪力牆結構。本案業主是一位獨立女性,自身灑脫的性格對這套作品的最終效果影響很深。
01
設計理念
Philosophy of design
140平的獨居生活,在接受業主委托,了解業主情況後,我們首先的意識是如何讓這個140平的空間簡單化,既符合女性的審美,又可以最大程度滿足業主在空間中的自由。
設計的重點是為業主呈現一套通透 舒服 自由的空間。和業主的價值觀一致,我們認為過多的“設計”和造型隻會為被其所累,並不會產生什麼價值。那空間中最最最基礎的感受,就是我們要放大的重點。
最終敲定的方案中,公共區域的軟裝搭配,也是配合整體空間基礎簡約的調性做一些戲劇性的衝突,淺色基底的構築形式,深顏色的烹飪區、靜謐安靜的休憩區組合在一起,為業主呈現一間名為自由的房子。
∇ 原始結構圖
146平的三居空間,雖然陽台采光充足,但是過多的隔斷不僅阻礙了整體的動線,也擋住了大部分的光照。利用率高,但是格局複雜沒有主次。這與業主想要的簡單 自由 通透相悖。
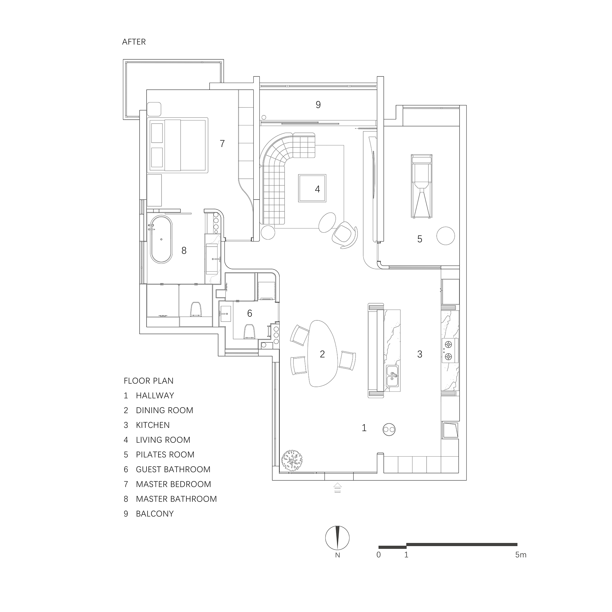
∇ 平麵布置圖
1:打通玄關 餐廳和客廳的整體空間,將公共衛生間向內側移動。保證業主之外的訪客也有獨立的衛生間。使公共空間最大程度的流通與開放;
2:將廚房從空間位置的概念改完,時間的概念,烹飪時,雙邊推拉門將空間圍合,平時可將其收進牆裏和櫃內,作為開放空間的另一條輔助動線;
3:將之前的客房改為主臥配套的衛生間。超大的衛生間增加業主日常生活的幸福感。
02
客廳
Living room
全屋采用無主燈設計,層高3米的客廳淨空,我們采用了一個長度為4米的拱形天花。並且我們可以把客廳的空和風口完全置於天花上方,空調可以通過弧形吊頂的前後縫隙在客廳實現循環。日光從陽台攝入,有如歌劇院的效果。
∇ 客廳天花結構
在軟裝的選擇上,主體沙發我們采用模塊的形式,增加客廳的延伸感。單位沙發則選用丹麥Fredericia科羅納休閑椅Corona,做為整個空間戲劇衝突的核心。
03
餐廳
Dining room
餐廳與廚房是兩條平行線。中間有剪力牆相隔。根據這堵剪力牆,我們打造了餐廳的餐邊櫃和廚房的推拉門使原本單一的南北向動線增加了一條支線。既滿足業主對開放式的需求,同時讓空間具備了包容的社交共享屬性。80公分直徑的紙質吊燈與纖弱的PALUDISR繩編椅從體量與材質上形成了鮮明的反差,而2米4的cassina異型餐桌在一般戶型可能會顯得擁擠不堪,而在業主的家裏則剛剛好。
04
廚房
Kitchen
廚房位於餐邊櫃的後方,與餐廳成平行結構,雙側的推拉門保證了空間足夠順暢,一側為烹飪區,一側為水洗配菜區。親友聚餐時,足夠幾人在廚房協同操作。
05
玄關
Porch
項目的玄關由兩部分組成,一邊是由通頂木質櫃體組成的綜合收納區。此處的圓柱本是樓提的排水管用木質門板包裹,形成空間中的建築性元素。玄關的另一側與餐廳相連,身處主動線,保持空間的空曠應該比增加造型或功能更難下決定。木質百葉簾在保證業主日常隱私的同時,雕刻了陽光。
06
主臥室
Master bedroom
臥室位於客廳與餐廳中間的一扇隱門進入。弧形的櫃體造型讓臥室顯得蜿蜒。沉靜與溫柔是睡眠空間的主旋律,整麵的木質櫃體位於床尾,簡單隨意的床頭配置,顯得空間格外放鬆。
07
衛生間
Bathroom
用木質移門做為臥室與衛生間的隔斷,牆麵的鏤空可以增加兩個功能空間的聯係和趣味性。洞石效果的岩板一體大水槽。搭配木作,形成洗漱 護膚 化妝的綜合功能區。
∇ 軸測圖
項目信息
項目名稱:Freedom
項目位置:廣州天河
建築麵積:146平方米
設計公司:10° STUDIO 傅俁迪
主創及設計團隊:傅俁迪/宋韻怡
完成年份:2022年
合作方:造型置景 賀寧
攝影師:譚嘯

































