項目以極簡主義為前提,基本由三體量的生混凝土組成,分層排列在地麵上,分為親密、社交/服務和健身功能區。該項目的設計在美學上是和諧的和實用的,容納私人部分的體積疊加在社交/服務的體積上,並且為了在二樓的前立麵和 4m 處創建一個麵向大海的沉思平台而移位後立麵上的寬闊陽台。健身區體量錯落有致,植被環繞,是私密的業主專屬使用空間,後方有廣闊的綠地。
別墅的位置是根據最佳太陽方向、業主需求計劃和公寓綠地使用情況計算得出。主房、套房、客廳都麵朝湖水和夕陽西下。帶有集成外部壁爐的門廊是最重要的要求之一。它的位置是為了冬天可以遮擋南風,夏天可以提供必要的遮蔭,與客廳同高,內外過渡,使整個別墅看起來是一個炎炎夏日的大陽台。室外區域完全專注於休閑,設有 70㎡的遊泳池、Parrilla 空間和草坪。物質性遵循極簡主義風格,幾乎所有的外牆都是明顯的混凝土。
別墅的客廳有一個 16m 的自由跨度,陽台上有一個 4m 的秋千,所有這一切的結構都不會影響審美和諧,負責結構設計的工程師使用了專業技術張力,在混凝土澆築前,鋼索固定在結構內的特定位置,並在混凝土養護過程中逐漸拉伸,以增加結構的強度。在大麵積住宅中,最大的挑戰是擁有一個舒適的功能性住宅,根據土地的限製和業主的需求規劃,選擇最佳流程圖來實現目標。
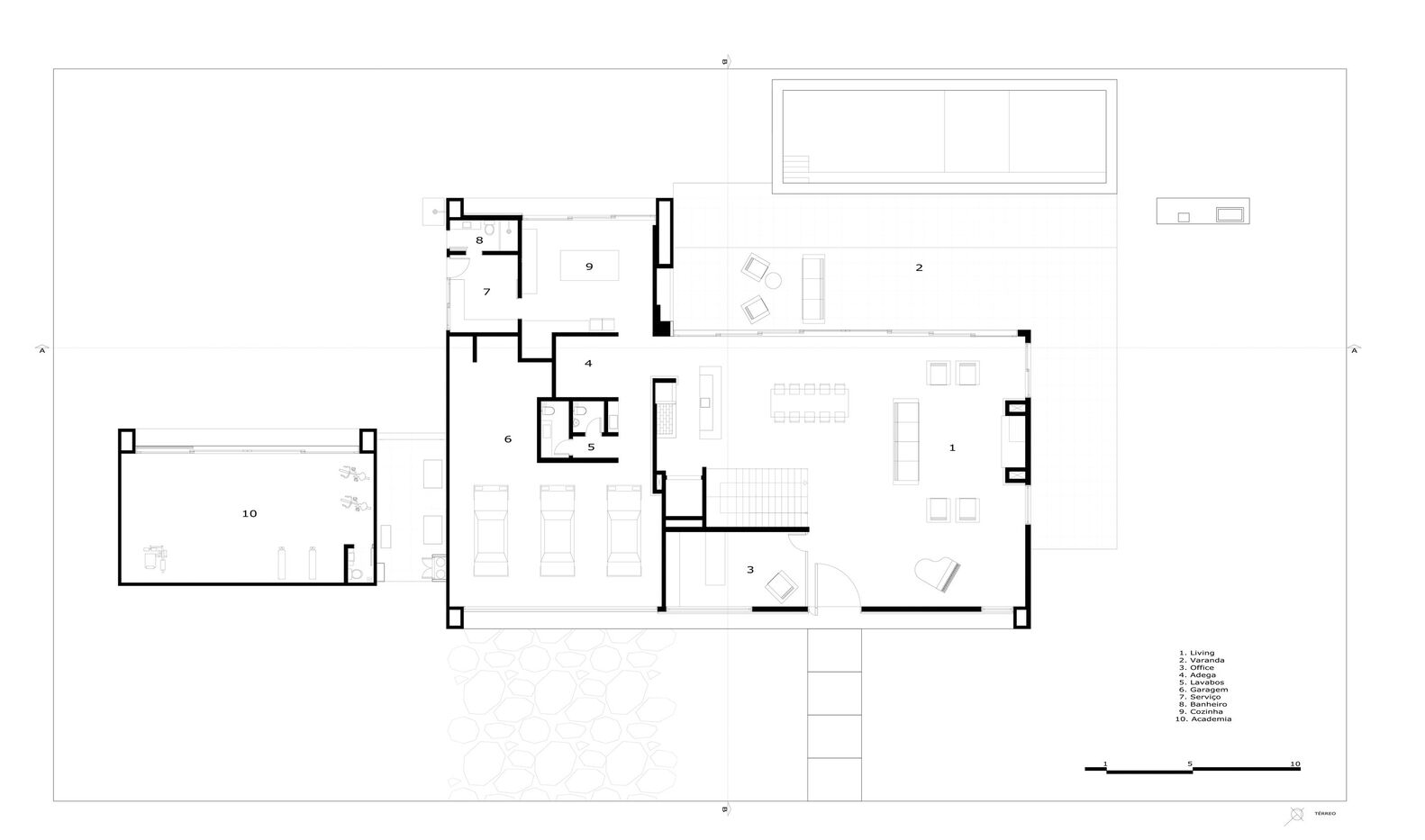
∇ 一層平麵圖
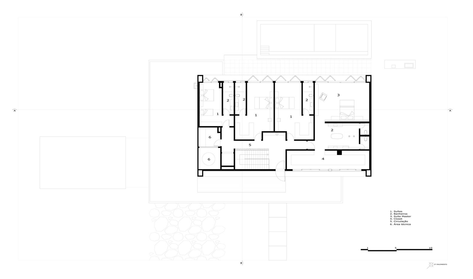
∇ 二層平麵圖
版權聲明:本站所有文章除投稿授權發布外,其他文字內容均為原創,享有著作權保護,未經許可不得以任何形式進行轉載(包括且不限於:媒體、網站、公眾號等)。所有項目照片/設計圖形版權歸原作者所有。本站部分內容源自網絡公開資源或用戶分享,如若侵犯了原作者的合法權益,可聯係我們進行處理。






























