Casa TI 已有 20 年的廢棄曆史。第一份建築許可證可以追溯到 2002 年。它經曆了幾個業主,目的是完成和居住房子,但總是沒有成功。2018 年 8 月,一位朋友看中了房子的位置和潛力並購買了它。這所房子位於葡萄牙聖蒂爾索 (Santo Tirso)的中心,地理位置優越。毗鄰 Aires Mateus 呼叫中心,在 Matadouro 公園對麵,與廣闊而美麗的農業保護區接壤,成為城市南側的一道風景。
這是一座非常堅固的混凝土建築,從技術空間的角度來看設計得很好,但有許多侵蝕和破壞的跡象。這所房子占地 444㎡,位於 947 ㎡的地塊中心。處於花園區域邊緣和陰影中。這所房子位於一個傾斜的地形上,其定居點水平的選擇,低於街道水平,導致了一個狹窄的花園周邊,大部分在陰涼處,因此黑暗和潮濕。
在建築師看來,房子的立麵太破爛、太醜了。麵向街道的立麵上的門窗連接在一起,失去了定義、重要性和層次結構。其餘的立麵有大量的開口,其尺寸和形狀難以證明。在街道和房子之間聳立著一個用混凝土建造的風景優美的結構,它定義了房子的接待空間,這對我們來說似乎是多餘的——對它做了拆除!
住宅內部有一個鼓舞人心的天花板高度可變性。內部空間也似乎不受控製,但潛力巨大。在用混凝土建造的結構中,有鐵製的懸掛結構,使布景失去了統一性。天花板上有負金字塔形式的方形燈籠。在廚房空間,有雙層高的天花板,有一個鐵結構支撐著牆麵,同時塑造了天花板——建築師拆除了它以保持空間純淨。現有的遊泳池缺乏清晰度,其陶瓷塗層不符合設計師將其簡化為必需品的意圖。
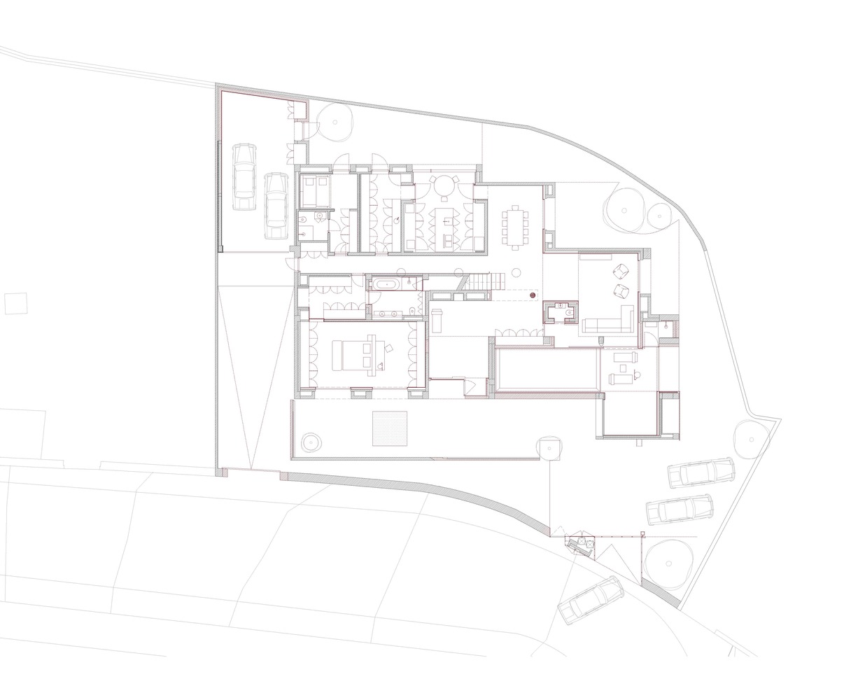
∇ 一層平麵圖
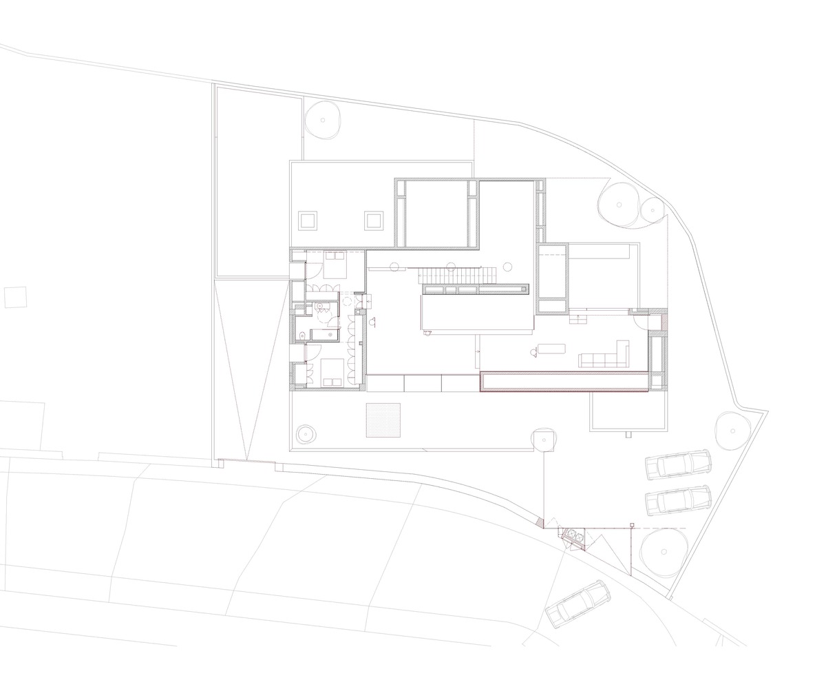
∇ 二層平麵圖
∇ 屋頂平麵圖
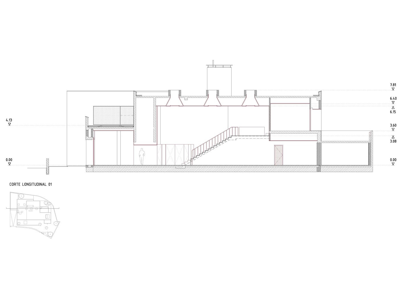
∇ 剖麵圖
版權聲明:本站所有文章除投稿授權發布外,其他文字內容均為原創,享有著作權保護,未經許可不得以任何形式進行轉載(包括且不限於:媒體、網站、公眾號等)。所有項目照片/設計圖形版權歸原作者所有。本站部分內容源自網絡公開資源或用戶分享,如若侵犯了原作者的合法權益,可聯係我們進行處理。







































