一個懸浮的空間,一個非那不勒斯的環境,讓客人有一種身處異國他鄉的感覺:這就是FADD Architects在那不勒斯設計的新餐廳Bisi的概念。曆時兩個月的翻新徹底改變了這個空間,從一個酒吧變成了一個精致和實驗性美食的殿堂,對調酒學有著特殊的眼光。
“該市的大部分物業都集中在那不勒斯的這個地區,市場範圍中等,但業主的意願是在這方麵插入卓越,並與其他鄰居一起提升它。” 設計師說。
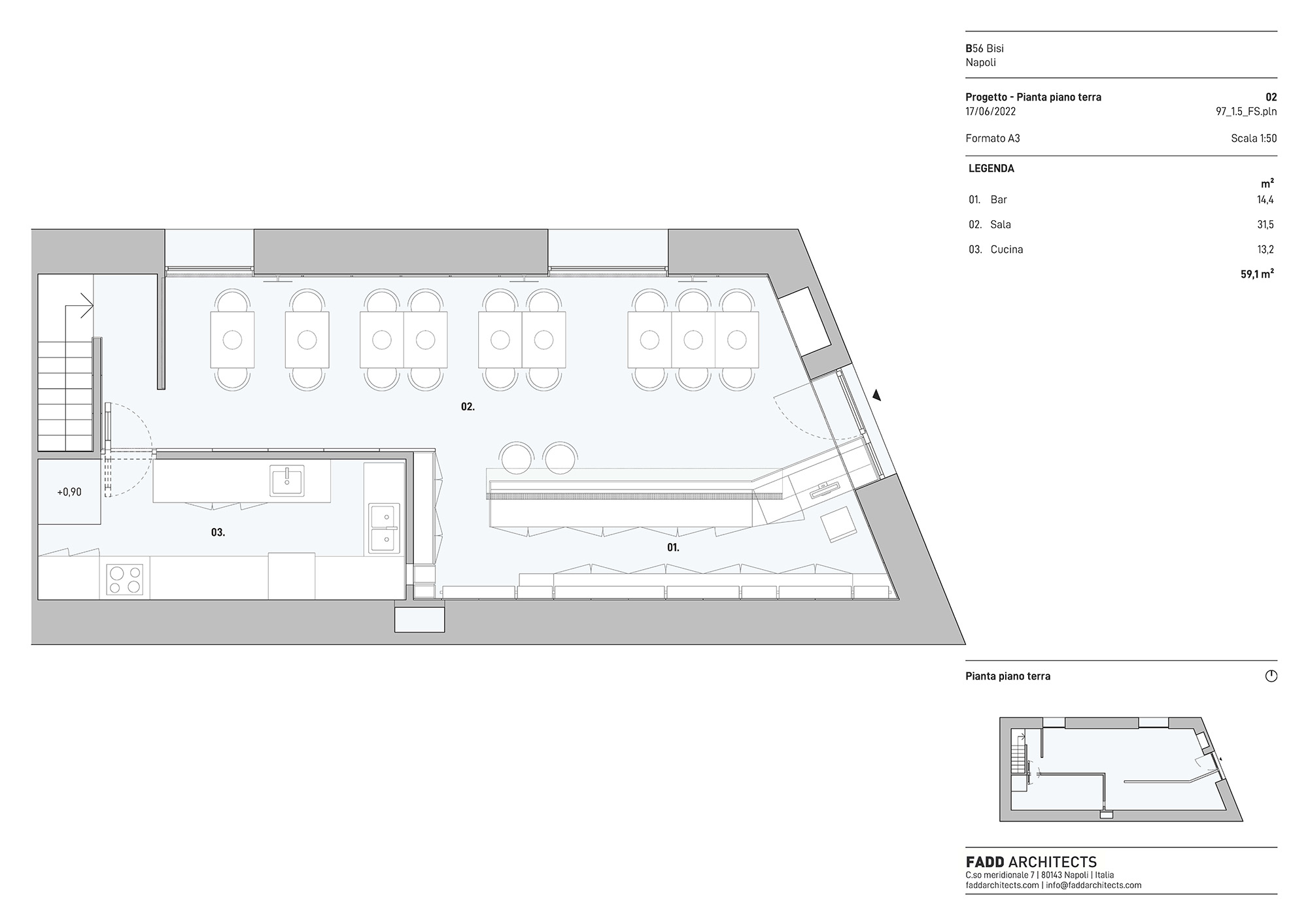
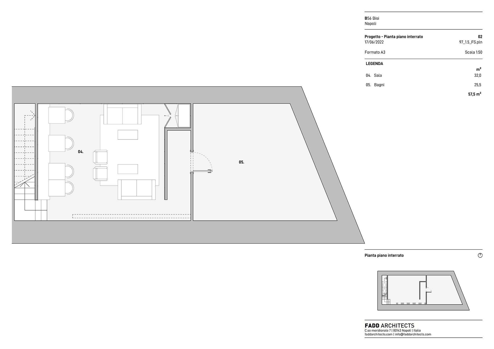
進入餐廳後,吧台位於左側,而房間則在房間的右側打開。櫃台後麵是塗漆金屬製成的瓶架。繼續在左側,會發現廚房被壓紙護壁板隱藏。隨後,一堵鋼製牆壁覆蓋了通往地下室的樓梯。這裏有一個更隨意的房間,環境更像是家庭沙龍而不是餐廳。
鋼製覆層的冰冷與暖色調的木質護壁板相得益彰,喚起複古品味,營造出溫馨而現代的環境。金屬和木材的光滑表麵與紙護壁板的粗糙度和手工鑿刻的石條台麵相得益彰。所有的細木工和鐵製家具都是由當地工匠按照建築師的設計製作。
∇ 平麵圖
版權聲明:本站所有文章除投稿授權發布外,其他文字內容均為原創,享有著作權保護,未經許可不得以任何形式進行轉載(包括且不限於:媒體、網站、公眾號等)。所有項目照片/設計圖形版權歸原作者所有。本站部分內容源自網絡公開資源或用戶分享,如若侵犯了原作者的合法權益,可聯係我們進行處理。




























